4 Wharf End, Trafford Park, Manchester, Lancashire, M17
By Everbest Properties
£ 260,000
Reviews
3 out of 5 stars
Everbest Properties says ..
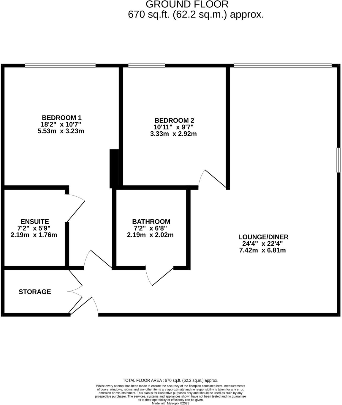
Stylish 2-Bedroom Apartment in No.1 Old Trafford, this modern property is not to be missed, contact us now for a viewing!
Property Oracle says ..
This property is a modern two-bedroom apartment located in Trafford Park, Manchester. The apartment is in excellent condition and benefits from a modern design and fixtures. The location is convenient, with nearby transportation links and schools. While the plot size is relatively small, the apartment itself is spacious. Compared to other properties in the area, the list price appears reasonable, especially considering its modern condition and desirable location.
Therefore, we give this property 7 / 10. *Disclaimer: This is our option and does constitute a recommendation or financial advice. Do your own research. *
- Price
- 7
- Condition
- 10
- Location
- 8
- Land
- 3
- Bedrooms
- 2
- Bathrooms
- 2
- Sqft (est)
- 910.00
- Lot (est)
- 670.00
The heatmap indicates the level of crime in the area. The color of the heatmap indicates the crime severity and recency.
Metrics Year-on-Year
- Average area value
- 227,821.00 £Decreased by 12.26 %
- Est sale value
- 340,340.00 £Increased by 21.04 %
- Average area rental value
- 1,322.00 £/moIncreased by 4.01 %
- Est letting value
- 1,820.00 £/moIncreased by 100.00 %
- Est rental Yield
- 6.96 %Increased by 18.57 %
- Crime Rate
- 20.00 %Unchanged by 0.00 %
Agent Activity
Everbest Properties created the listing.
Nearby Schools
| Name | Type | Ofsted | Distance |
|---|---|---|---|
| Trafford College Group | Further Education | 0.99 KM | |
| Oasis Academy Mediacityuk | Academy Sponsor Led | Good | 1.16 KM |
| Stretford High School | Foundation School | Good | 1.23 KM |
| Kings Road Primary School | Community School | Good | 1.36 KM |
| St Joseph'S Rc Primary School | Voluntary Aided School | Requires improvement | 1.41 KM |
Images
Nearby Streets
| Name | Average Price | Average Sqft | Distance |
|---|---|---|---|
| Wharfside Way | £ 0 | 0 | 0.00 KM |
| Trafford Road | £ 159,000 | 0 | 0.00 KM |
| Clippers Quay | £ 0 | 0 | 0.00 KM |
| Barlow Road | £ 0 | 0 | 0.00 KM |
| Hulton Street | £ 0 | 0 | 0.00 KM |
Nearby Transport
| Name | NLC | TLC | Distance |
|---|---|---|---|
| Manchester United Football Ground | 2996 | MUF | 0.62 KM |
| Salford Crescent | 2794 | SLD | 2.64 KM |
| Trafford Park | 2969 | TRA | 2.96 KM |
| Salford Central | 2798 | SFD | 3.98 KM |
| Deansgate | 2963 | DGT | 3.98 KM |
Nearby Listings
| Address | Price | Type | Score | Distance |
|---|---|---|---|---|
| 4 Wharf End, Trafford Park, Manchester, Lancashire, M17 | £ 260,000 | BUY | 7 / 10 | 0.00 KM |
| Apartment 10507, 4 Wharf End | £ 200,000 | BUY | 6 / 10 | 0.01 KM |
| NO. 1 OLD TRAFFORD, MANCHESTER | £ 214,950 | BUY | 6 / 10 | 0.01 KM |
| Apartment 10507, 4 Wharf End | £ 200,000 | BUY | 6 / 10 | 0.01 KM |
| Apartment, Trafford Park | £ 245,000 | BUY | 6 / 10 | 0.02 KM |
Nearby Properties
| Address | Price | Distance |
|---|---|---|
| 13 Merchants Quay | £ 215,000 | 0.40 KM |
| 33 Merchants Quay | £ 195,000 | 0.40 KM |
| 23 Merchants Quay | £ 175,000 | 0.40 KM |
| 63 Merchants Quay | £ 308,500 | 0.40 KM |
| 11 Merchants Quay | £ 210,000 | 0.40 KM |