NA
Bath Road, Woodchester
By Naylor Powell
£ 60,000
Naylor Powell says ..
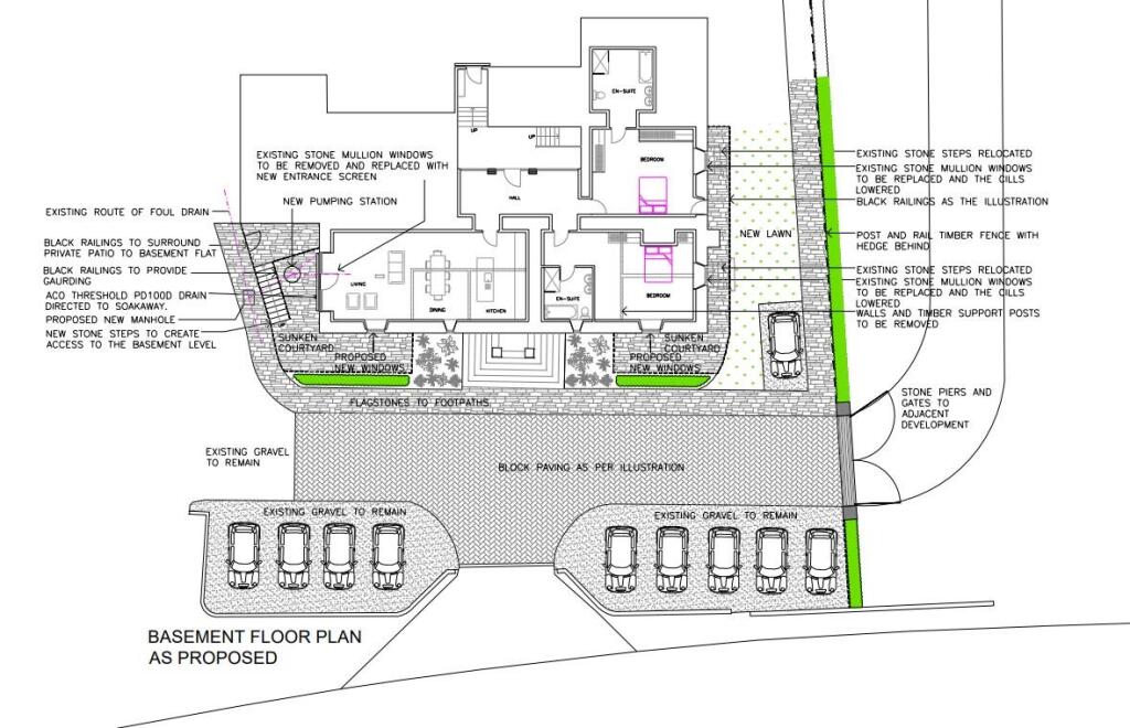
A rare chance to purchase a development opportunity within the sought after area of Woodchester. Planning permission has been granted for the basement in a Grade II listed building. The permission has been granted for a two bedroom apartment with two en-suite shower rooms, open plan living space,...
- Bedrooms
- 2
- Bathrooms
- 2
The heatmap indicates the level of crime in the area. The color of the heatmap indicates the crime severity and recency.
Metrics Year-on-Year
- Average area value
- 251,538.00 £Increased by 21.55 %
- Average area rental value
- 754.00 £/moDecreased by 18.22 %
- Est rental Yield
- 3.60 %Decreased by 32.71 %
- Crime Rate
- 10.00 %Unchanged by 0.00 %
from 206,948.00 £
from 922.00 £/mo
from 5.35 %
from 10.00 %
Agent Activity
Naylor Powell created the listing.
Nearby Schools
| Name | Type | Ofsted | Distance |
|---|---|---|---|
| Woodchester Endowed Church Of England Aided Primary School | Voluntary Aided School | Outstanding | 0.49 KM |
| Gastrells Community Primary School | Community School | Good | 0.93 KM |
| Amberley Parochial School | Voluntary Aided School | Good | 1.77 KM |
| Rodborough Community Primary School | Community School | Good | 2.13 KM |
| Stroud High School | Academy Converter | 2.67 KM |
Images
Nearby Streets
| Name | Average Price | Average Sqft | Distance |
|---|---|---|---|
| Beech Grove | £ 0 | 0 | 0.00 KM |
| Laggar Lane | £ 855,000 | 0 | 0.00 KM |
| St Chloe Mead | £ 887,500 | 0 | 0.00 KM |
| St Loes Pitch | £ 0 | 0 | 0.00 KM |
| Saint Chloe Mead | £ 1,150,000 | 0 | 0.00 KM |
Nearby Transport
| Name | NLC | TLC | Distance |
|---|---|---|---|
| Stroud (Gloucs) | 4771 | STD | 2.61 KM |
| Stonehouse | 4770 | SHU | 6.29 KM |
Nearby Listings
| Address | Price | Type | Score | Distance |
|---|---|---|---|---|
| Bath Road, Woodchester | £ 60,000 | BUY | Unknown | 0.00 KM |
| Manor Gardens, Woodchester, Stroud, GL5 | £ 499,950 | BUY | 7 / 10 | 0.13 KM |
| Manor Gardens, Woodchester, Stroud | £ 595,000 | BUY | 7 / 10 | 0.14 KM |
| Bath Road, Woodchester, Stroud, Gloucestershire, GL5 | £ 400,000 | BUY | 6 / 10 | 0.15 KM |
| Bath Road, Woodchester, Stroud | £ 775,000 | BUY | 7 / 10 | 0.16 KM |
Nearby Properties
| Address | Price | Distance |
|---|---|---|
| 4 Manor Gardens | £ 270,000 | 0.13 KM |
| 9 Manor Gardens | £ 520,000 | 0.13 KM |
| 11 Manor Gardens | £ 265,000 | 0.13 KM |
| 1 Manor Gardens | £ 340,000 | 0.13 KM |
| Pennhollow | £ 400,000 | 0.20 KM |