Fairclose,Whitchurch,RG28 7AN
By Brockenhurst Estate Agents
£ 150,000
Reviews
3 out of 5 stars
Brockenhurst Estate Agents says ..
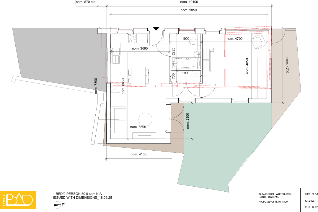
Located in the heart of Whitchurch, Hampshire, this property presents a rare opportunity for buyers seeking a property with great potential. Previously used as a pottery studio, however this property benefits from granted planning permission for conversion into a one-bedroom dwelling.
Property Oracle says ..
This property is a plot of land with a building that requires extensive renovation. It’s located in a convenient area of Whitchurch, close to schools and transportation. The price is considerably lower than average for the area, reflecting the work needed. It offers a good opportunity for someone looking to put their own stamp on a property.
Therefore, we give this property 6 / 10. *Disclaimer: This is our option and does constitute a recommendation or financial advice. Do your own research. *
- Price
- 8
- Condition
- 3
- Location
- 7
- Land
- 6
- Bedrooms
- 0
- Bathrooms
- 0
The heatmap indicates the level of crime in the area. The color of the heatmap indicates the crime severity and recency.
Metrics Year-on-Year
- Average area value
- 450,000.00 £Decreased by 2.93 %
- Average area rental value
- 1,675.00 £/moIncreased by 31.58 %
- Est rental Yield
- 4.47 %Increased by 35.45 %
- Crime Rate
- 38.00 %Unchanged by 0.00 %
Agent Activity
Brockenhurst Estate Agents created the listing.
Nearby Schools
| Name | Type | Ofsted | Distance |
|---|---|---|---|
| Testbourne Community School | Foundation School | Outstanding | 0.78 KM |
| Whitchurch Church Of England Primary School | Voluntary Controlled School | Good | 0.89 KM |
| Longparish Church Of England Primary School | Voluntary Aided School | Outstanding | 6.75 KM |
| Barton Stacey Church Of England Primary School | Voluntary Controlled School | Good | 7.17 KM |
| Poppies And Water Meadow Children'S Centre | Children's Centre | 7.28 KM |
Images
Nearby Streets
| Name | Average Price | Average Sqft | Distance |
|---|---|---|---|
| Queens Road | £ 0 | 0 | 0.00 KM |
Nearby Transport
| Name | NLC | TLC | Distance |
|---|---|---|---|
| Whitchurch (Hampshire) | 5527 | WCH | 1.03 KM |
| Overton | 5526 | OVR | 9.50 KM |
Nearby Listings
| Address | Price | Type | Score | Distance |
|---|---|---|---|---|
| Fairclose,Whitchurch,RG28 7AN | £ 150,000 | BUY | 6 / 10 | 0.00 KM |
| Fairclose Terrace, Whitchurch | £ 375,000 | BUY | 6 / 10 | 0.06 KM |
| Bell Street, Whitchurch, RG28 | £ 325,000 | BUY | 5 / 10 | 0.16 KM |
| Gardner Court, Whitchurch, RG28 | £ 146,000 | BUY | 6 / 10 | 0.16 KM |
| Bell Street, Whitchurch, RG28 7DD | £ 399,950 | BUY | 6 / 10 | 0.17 KM |
Nearby Properties
| Address | Price | Distance |
|---|---|---|
| 10 Fairclose | £ 800,000 | 0.00 KM |
| 4 Fairclose | £ 239,000 | 0.00 KM |
| 12 Fairclose | £ 315,000 | 0.01 KM |
| 3 Fairclose | £ 335,000 | 0.01 KM |
| 16 Church Street | £ 385,000 | 0.15 KM |