Homezone says ..
We are pleased to present this well-maintained, spacious three-bedroom semi-detached family home.
Property Oracle says ..
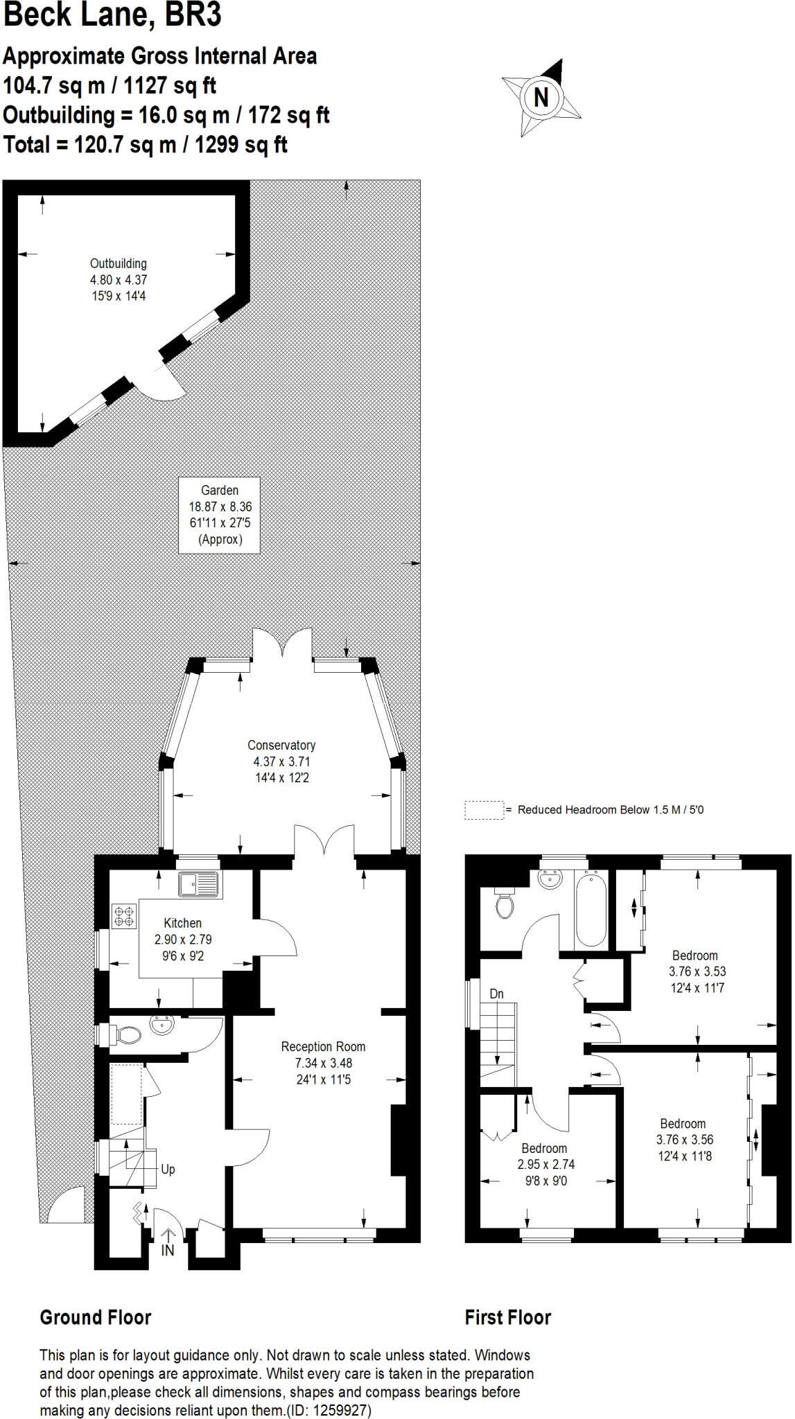
This is a 3-bedroom semi-detached house on Beck Lane, Bromley. The property offers a good amount of living space at 1,299 sqft and includes a garden. The location is convenient for transportation and schools. While some areas of the house have been updated, the kitchen and bathrooms would benefit from modernization. The asking price of £595,000 appears fair considering the size and location, but potential buyers should factor in renovation costs.
Therefore, we give this property 6 / 10. *Disclaimer: This is our option and does constitute a recommendation or financial advice. Do your own research. *
- Price
- 7
- Condition
- 6
- Location
- 7
- Land
- 7
- Bedrooms
- 3
- Bathrooms
- 2
- Sqft (est)
- 1,299.00
The heatmap indicates the level of crime in the area. The color of the heatmap indicates the crime severity and recency.
Metrics Year-on-Year
- Average area value
- 666,950.00 £Increased by 20.68 %
- Est sale value
- 920,991.00 £Increased by 27.98 %
- Average area rental value
- 1,565.00 £/moDecreased by 5.89 %
- Est letting value
- 1,299.00 £/moUnchanged by 0.00 %
- Est rental Yield
- 2.82 %Decreased by 21.88 %
- Crime Rate
- 2.00 %Unchanged by 0.00 %
Agent Activity
Homezone created the listing.
Nearby Schools
| Name | Type | Ofsted | Distance |
|---|---|---|---|
| Churchfields Primary School | Academy Converter | 0.62 KM | |
| Stewart Fleming Primary School | Academy Converter | Outstanding | 0.80 KM |
| Harris Primary Academy Kent House | Academy Sponsor Led | Outstanding | 1.09 KM |
| St Anthony'S Roman Catholic Primary School | Academy Converter | Good | 1.14 KM |
| Marian Vian Primary School | Academy Converter | Good | 1.15 KM |
Images
Nearby Streets
| Name | Average Price | Average Sqft | Distance |
|---|---|---|---|
| Garden Road | £ 750,000 | 0 | 0.00 KM |
| Grace Mews | £ 0 | 0 | 0.00 KM |
| Priory Close | £ 625,000 | 0 | 0.00 KM |
| Trinity Mews | £ 0 | 0 | 0.00 KM |
| Love Lane | £ 403,571 | 0 | 0.00 KM |
Nearby Transport
| Name | NLC | TLC | Distance |
|---|---|---|---|
| Birkbeck | 5401 | BIK | 0.47 KM |
| Elmers End | 5049 | ELE | 0.55 KM |
| Kent House | 5080 | KTH | 1.24 KM |
| Clock House | 5048 | CLK | 1.36 KM |
| Penge East | 5072 | PNE | 1.84 KM |
Nearby Listings
| Address | Price | Type | Score | Distance |
|---|---|---|---|---|
| Beck Lane, BR3 | £ 595,000 | BUY | 6 / 10 | 0.00 KM |
| Beck Lane, Beckenham, BR3 | £ 180,000 | BUY | 7 / 10 | 0.09 KM |
| Arrol Road, Beckenham, BR3 | £ 575,000 | BUY | 6 / 10 | 0.15 KM |
| Arrol Road, Beckenham, BR3 | £ 650,000 | BUY | 7 / 10 | 0.15 KM |
| Beck Court, Beckenham | £ 140,000 | BUY | 6 / 10 | 0.17 KM |
Nearby Properties
| Address | Price | Distance |
|---|---|---|
| 58 Beck Lane | £ 245,000 | 0.01 KM |
| 38 Beck Lane | £ 489,300 | 0.01 KM |
| 34 Beck Lane | £ 375,000 | 0.01 KM |
| 44 Beck Lane | £ 243,000 | 0.01 KM |
| 63 Beck Lane | £ 466,000 | 0.04 KM |