Coventry Road, Fillongley, CV7
By Bayzos Estate Agents
£ 430,000
Reviews
3 out of 5 stars
Bayzos Estate Agents says ..
Historic Building | Courtyard with Gates | Complete Renovation | New Kitchen | New Bathroom | EPC Rating: C, Potential B | Council Tax Band D | Character Property - Used to be the Village Post Office |
Property Oracle says ..
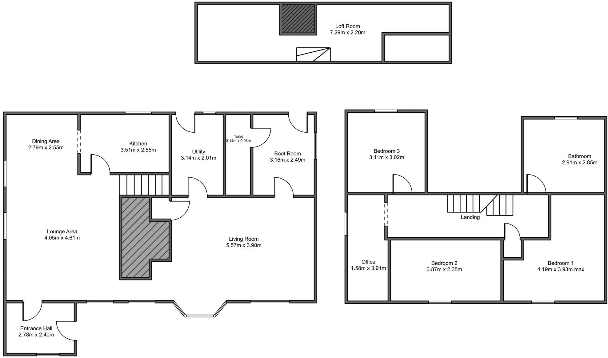
This is a 4-bedroom semi-detached property located on Church Lane, Fillongley. The property is listed for £430,000. The property is a period property that has been modernised. The kitchen and bathroom have been recently updated. The property is located near Bournebrook Cofe Primary School, which has a good Ofsted rating. Tile Hill train station is 9.63km away. The property has some land, but it is not a large plot. The square footage is significantly lower than the average at 516 sqft.
Therefore, we give this property 6 / 10. *Disclaimer: This is our option and does constitute a recommendation or financial advice. Do your own research. *
- Price
- 7
- Condition
- 7
- Location
- 7
- Land
- 4
- Bedrooms
- 4
- Bathrooms
- 1
- Sqft (est)
- 516.55
The heatmap indicates the level of crime in the area. The color of the heatmap indicates the crime severity and recency.
Metrics Year-on-Year
- Average area value
- 683,165.00 £Decreased by 33.92 %
- Est sale value
- 194,739.35 £Increased by 12.20 %
- Average area rental value
- 1,373.00 £/moDecreased by 34.56 %
- Est letting value
- 0.00 £/mo
- Est rental Yield
- 2.41 %Decreased by 1.23 %
- Crime Rate
- 76.00 %Unchanged by 0.00 %
Agent Activity
Bayzos Estate Agents created the listing.
Nearby Schools
| Name | Type | Ofsted | Distance |
|---|---|---|---|
| Bournebrook Cofe Primary School | Voluntary Controlled School | Good | 0.16 KM |
| Arley Primary School | Community School | Good | 3.41 KM |
| Corley Centre | Community Special School | Good | 3.54 KM |
| Arc School Old Arley | Other Independent Special School | Good | 3.72 KM |
| Arc School Ansley | Other Independent Special School | Good | 4.76 KM |
Images
Nearby Streets
| Name | Average Price | Average Sqft | Distance |
|---|---|---|---|
| St Mary's Road | £ 0 | 0 | 0.00 KM |
| The Oaks | £ 0 | 0 | 0.00 KM |
Nearby Transport
| Name | NLC | TLC | Distance |
|---|---|---|---|
| Tile Hill | 1035 | THL | 9.63 KM |
Nearby Listings
| Address | Price | Type | Score | Distance |
|---|---|---|---|---|
| Coventry Road, Fillongley, CV7 | £ 430,000 | BUY | 6 / 10 | 0.00 KM |
| Coventry Road, Fillongley, Coventry | £ 520,000 | BUY | 7 / 10 | 0.02 KM |
| Bourne Brook Close, Fillongley, CV7 | £ 400,000 | BUY | 7 / 10 | 0.07 KM |
| Castle View, Fillongley, Coventry, CV7 8ET | £ 150,000 | BUY | 6 / 10 | 0.07 KM |
| Coventry Road, Fillongley, CV7 | £ 400,000 | BUY | 7 / 10 | 0.11 KM |
Nearby Properties
| Address | Price | Distance |
|---|---|---|
| 4 Holbeche Crescent | £ 355,000 | 0.11 KM |
| 30 Holbeche Crescent | £ 345,000 | 0.11 KM |
| 7 Holbeche Crescent | £ 296,000 | 0.11 KM |
| 18 Holbeche Crescent | £ 235,000 | 0.11 KM |
| 34 Holbeche Crescent | £ 227,000 | 0.11 KM |