Dayfields says ..
Introducing this stunning four-bedroom extended semi-detached family home, located in a prime position near Bush Hill Park Station. This exquisite property is perfect for commuters with easy access to London Liverpool Street and A10/M25, making it an ideal choice for those who work in the city.
Property Oracle says ..
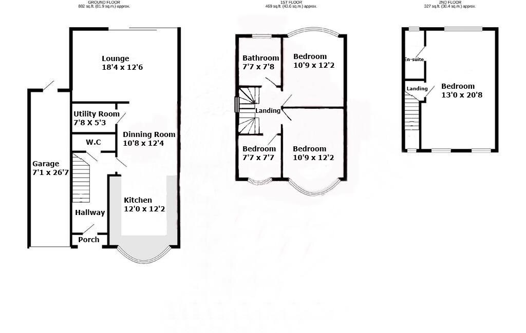
This four-bedroom semi-detached house in Bush Hill Park, Enfield, presents a compelling proposition for families seeking a blend of suburban living and convenient access to London. The property’s recent renovation is clearly evident in the modern kitchen, bathrooms, and overall aesthetic. The interior boasts a spacious and well-designed layout. The images suggest a generous garden space, adding to the property’s desirability. Its location is convenient, with good access to public transport links via Bush Hill Park station. Multiple well-regarded schools are also within a comfortable distance, making it a family-friendly option. The asking price is within the range of comparable properties in the area, although a precise price-per-square-foot analysis is hampered by the absence of complete data for neighbouring properties. Overall, this is a well-presented property with several attractive features which may appeal to many potential buyers. A full structural survey is advised before purchasing.
Therefore, we give this property 7 / 10. *Disclaimer: This is our option and does constitute a recommendation or financial advice. Do your own research. *
- Price
- 7
- Condition
- 8
- Location
- 7
- Land
- 6
- Bedrooms
- 4
- Bathrooms
- 0
- Sqft (est)
- 1,711.00
The heatmap indicates the level of crime in the area. The color of the heatmap indicates the crime severity and recency.
Metrics Year-on-Year
- Average area value
- 681,429.00 £Increased by 14.18 %
- Est sale value
- 1,156,636.00 £Increased by 59.81 %
- Average area rental value
- 1,986.00 £/moDecreased by 15.60 %
- Est letting value
- 1,711.00 £/moUnchanged by 0.00 %
- Est rental Yield
- 3.50 %Decreased by 26.00 %
- Crime Rate
- 5.00 %Unchanged by 0.00 %
Agent Activity
Dayfields created the listing.
Nearby Schools
| Name | Type | Ofsted | Distance |
|---|---|---|---|
| Edmonton County School | Academy Converter | Good | 0.50 KM |
| Firs Farm Primary School | Community School | Good | 1.04 KM |
| Starks Field Primary School | Community School | Good | 1.09 KM |
| Raglan Infant School | Community School | Good | 1.16 KM |
| West Lea School | Foundation Special School | Outstanding | 1.18 KM |
Images
Nearby Streets
| Name | Average Price | Average Sqft | Distance |
|---|---|---|---|
| York Road | £ 799,995 | 0 | 0.00 KM |
| Kent Road | £ 825,000 | 0 | 0.00 KM |
| Hyde Park Gardens | £ 775,000 | 0 | 0.00 KM |
| New River Path | £ 0 | 0 | 0.00 KM |
| Harington Terrace | £ 0 | 0 | 0.00 KM |
Nearby Transport
| Name | NLC | TLC | Distance |
|---|---|---|---|
| Bush Hill Park | 6913 | BHK | 1.74 KM |
| Grange Park | 6029 | GPK | 1.94 KM |
| Winchmore Hill | 6024 | WIH | 2.03 KM |
| Enfield Town | 6959 | ENF | 2.12 KM |
| Enfield Chase | 6010 | ENC | 2.40 KM |
Nearby Listings
| Address | Price | Type | Score | Distance |
|---|---|---|---|---|
| Rowantree Road, London, N21 | £ 739,000 | BUY | 7 / 10 | 0.00 KM |
| Winchmore Hill | £ 725,000 | BUY | 7 / 10 | 0.07 KM |
| Rowantree Road, London | £ 725,000 | BUY | 7 / 10 | 0.07 KM |
| 5 Rowantree Road, Winchmore Hill, London, N21 3ED | £ 540,000 | BUY | 7 / 10 | 0.07 KM |
| Church Street, London | £ 950,000 | BUY | 8 / 10 | 0.11 KM |
Nearby Properties
| Address | Price | Distance |
|---|---|---|
| 3 Rowantree Road | £ 680,000 | 0.00 KM |
| 10 Rowantree Road | £ 385,000 | 0.00 KM |
| 6 Rowantree Road | £ 553,000 | 0.00 KM |
| 1 Rowantree Road | £ 480,000 | 0.00 KM |
| 22 Rowantree Road | £ 310,000 | 0.00 KM |