5 Flat 4 East Pilton Farm Crescent, Pilton, Edinburgh, EH5 2GF
By Warners Solicitors
£ 175,000
Reviews
2 out of 5 stars
Warners Solicitors says ..
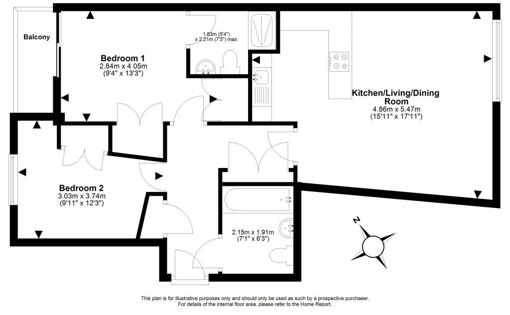
Warners are delighted to present this two-bedroom first-floor apartment, forming part of a sought-after modern development situated just a few miles from Edinburgh’s vibrant city centre. Combining modern fittings with excellent proportions, this impressive home will appeal to professionals, coupl...
Property Oracle says ..
The property is a two-bedroom flat located in Pilton, Edinburgh. It is located in a residential area with good access to transport links and schools. The property is in need of some renovation, but is reasonably priced.
Therefore, we give this property 5 / 10. *Disclaimer: This is our option and does constitute a recommendation or financial advice. Do your own research. *
- Price
- 7
- Condition
- 4
- Location
- 6
- Land
- 5
- Bedrooms
- 2
- Bathrooms
- 2
The heatmap indicates the level of crime in the area. The color of the heatmap indicates the crime severity and recency.
Metrics Year-on-Year
- Average area value
- 258,333.00 £Decreased by 4.20 %
- Average area rental value
- 1,458.00 £/moDecreased by 2.93 %
- Est rental Yield
- 6.77 %Increased by 1.35 %
- Crime Rate
- 0.00 %
Agent Activity
Warners Solicitors created the listing.
Nearby Schools
| Name | Type | Ofsted | Distance |
|---|---|---|---|
| Merchiston Castle School | Offshore Schools | 7.33 KM | |
| Cargilfield School | Offshore Schools | 8.24 KM |
Images
Nearby Streets
| Name | Average Price | Average Sqft | Distance |
|---|---|---|---|
| Pilton Farm Avenue | £ 231,667 | 0 | 0.00 KM |
| Boswall Place | £ 0 | 0 | 0.00 KM |
| Pilton Gardens | £ 175,000 | 0 | 0.00 KM |
| Wardieburn Terrace | £ 0 | 0 | 0.00 KM |
| Boswall Gardens | £ 240,000 | 0 | 0.00 KM |
Nearby Transport
| Name | NLC | TLC | Distance |
|---|---|---|---|
| Haymarket | 9419 | HYM | 3.00 KM |
| Edinburgh | 9328 | EDB | 4.67 KM |
| Slateford | 9236 | SLA | 5.39 KM |
| Kingsknowe | 9217 | KGE | 7.32 KM |
| South Gyle | 9318 | SGL | 9.06 KM |
Nearby Listings
| Address | Price | Type | Score | Distance |
|---|---|---|---|---|
| 5 Flat 4 East Pilton Farm Crescent, Pilton, Edinburgh, EH5 2GF | £ 175,000 | BUY | 5 / 10 | 0.00 KM |
| East Pilton Farm Crescent, Edinburgh, Midlothian, EH5 | £ 180,000 | BUY | Unknown | 0.02 KM |
| East Pilton Farm Crescent, Edinburgh, Midlothian, EH5 | £ 175,000 | BUY | 6 / 10 | 0.02 KM |
| 7/11 East Pilton Farm Crescent, Fettes, Edinburgh, EH5 2GF | £ 200,000 | BUY | 6 / 10 | 0.02 KM |
| East Pilton Farm Crescent, Edinburgh, Midlothian, EH5 | £ 160,000 | BUY | Unknown | 0.02 KM |