HA
Oakfield Gardens, London, SE19
By Hamptons Sales
£ 950,000
Reviews
3 out of 5 stars
Hamptons Sales says ..
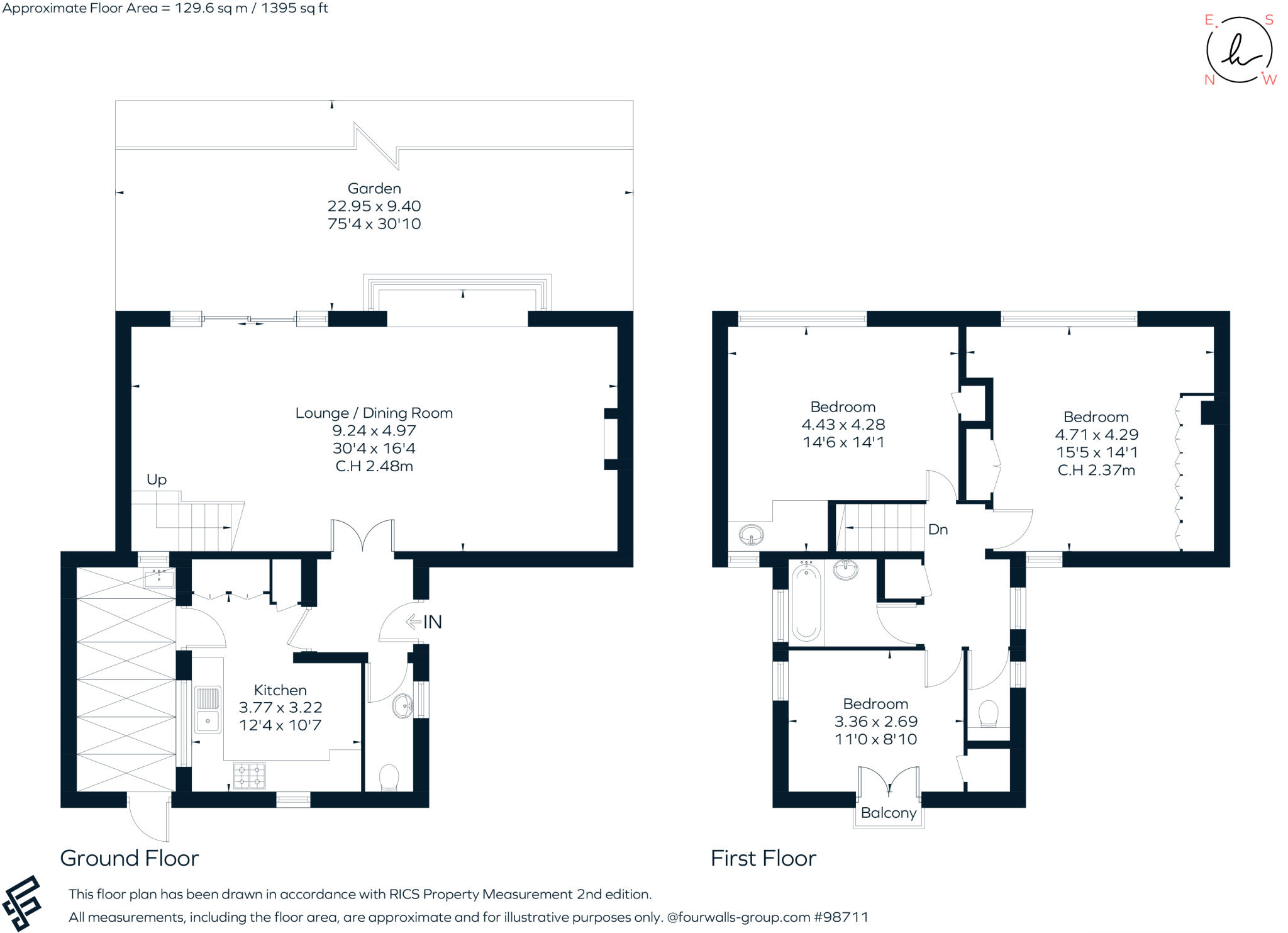
A 3 bedroom, mid-century, Wates built house with a secluded, south-facing garden and separate garage.
Property Oracle says ..
This is a three-bedroom house in Dulwich Wood, London. The property is in a good location, close to transportation and schools. The house has a garden. The property is in need of some modernisation, but it is structurally sound. The price is reasonable for the area.
Therefore, we give this property 6 / 10. *Disclaimer: This is our option and does constitute a recommendation or financial advice. Do your own research. *
- Price
- 6
- Condition
- 5
- Location
- 7
- Land
- 7
- Bedrooms
- 3
- Bathrooms
- 1
The heatmap indicates the level of crime in the area. The color of the heatmap indicates the crime severity and recency.
Metrics Year-on-Year
- Average area value
- 806,250.00 £Increased by 8.35 %
- Average area rental value
- 2,379.00 £/moIncreased by 1.23 %
- Est rental Yield
- 3.54 %Decreased by 6.60 %
- Crime Rate
- 1.00 %Unchanged by 0.00 %
from 744,150.00 £
from 2,350.00 £/mo
from 3.79 %
from 1.00 %
Agent Activity
Hamptons Sales created the listing.
Nearby Schools
| Name | Type | Ofsted | Distance |
|---|---|---|---|
| Paxton Primary School | Community School | Outstanding | 0.27 KM |
| Dulwich Wood Children'S Centre And Nursery School & Children'S Centre | Children's Centre | 0.67 KM | |
| Dulwich Wood Nursery School | Local Authority Nursery School | Good | 0.79 KM |
| Dulwich Wood Primary School | Community School | Good | 0.88 KM |
| Kingsdale Foundation School | Academy Converter | Outstanding | 1.01 KM |
Images
Nearby Streets
| Name | Average Price | Average Sqft | Distance |
|---|---|---|---|
| Forbes Court | £ 0 | 0 | 0.00 KM |
| Bowley Close | £ 0 | 0 | 0.00 KM |
| Woodland Road | £ 497,857 | 0 | 0.00 KM |
| Crystal Palace Parade | £ 650,000 | 0 | 0.00 KM |
| Hitherwood Court | £ 0 | 0 | 0.00 KM |
Nearby Transport
| Name | NLC | TLC | Distance |
|---|---|---|---|
| Gipsy Hill | 5363 | GIP | 0.36 KM |
| Sydenham Hill | 5085 | SYH | 0.93 KM |
| Crystal Palace | 5356 | CYP | 1.13 KM |
| Anerley | 5397 | ANZ | 2.12 KM |
| West Dulwich | 5086 | WDU | 2.17 KM |
Nearby Listings
| Address | Price | Type | Score | Distance |
|---|---|---|---|---|
| Oakfield Gardens, London, SE19 | £ 950,000 | BUY | 6 / 10 | 0.00 KM |
| Lowood Court, Farquhar Road, Gipsy Hill, SE19 1SW | £ 450,000 | BUY | 7 / 10 | 0.08 KM |
| Oakfield Gardens, London, SE19 | £ 1,100,000 | BUY | Unknown | 0.09 KM |
| Oakfield Gardens, Crystal Palace, London, SE19 | £ 950,000 | BUY | Unknown | 0.09 KM |
| Oakfield Gardens, London SE19 | £ 1,175,000 | BUY | 8 / 10 | 0.10 KM |
Nearby Properties
| Address | Price | Distance |
|---|---|---|
| 23 Dulwich Wood Avenue | £ 380,000 | 0.11 KM |
| 11 Dulwich Wood Avenue | £ 2,150,000 | 0.11 KM |
| 5 Dulwich Wood Avenue | £ 1,036,500 | 0.11 KM |
| 17 Dulwich Wood Avenue | £ 1,000,000 | 0.11 KM |
| 9 Dulwich Wood Avenue | £ 199,000 | 0.11 KM |