Sunbury-on-Thames, Surrey, TW16
By Chancellors
£ 475,000
Reviews
3 out of 5 stars
Chancellors says ..
A charming mid-terrace family home nestled in a peaceful cul-de-sac. The property offers an ideal blend of comfort, convenience and character.
Property Oracle says ..
This is a well-presented terraced house in a popular residential area. The property benefits from a modern interior, a good-sized garden, and off-street parking. The property is located close to local amenities, schools, and transportation links. The property is likely to appeal to families and first-time buyers.
Therefore, we give this property 7 / 10. *Disclaimer: This is our option and does constitute a recommendation or financial advice. Do your own research. *
- Price
- 7
- Condition
- 8
- Location
- 7
- Land
- 7
- Bedrooms
- 3
- Bathrooms
- 2
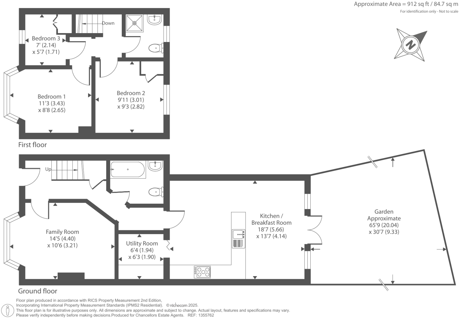
- Sqft (est)
- 912.00
- Lot (est)
- 2,019.42
The heatmap indicates the level of crime in the area. The color of the heatmap indicates the crime severity and recency.
Metrics Year-on-Year
- Average area value
- 395,321.00 £Decreased by 0.26 %
- Est sale value
- 483,360.00 £Increased by 17.78 %
- Average area rental value
- 1,491.00 £/moDecreased by 10.50 %
- Est letting value
- 1,824.00 £/moIncreased by 100.00 %
- Est rental Yield
- 4.53 %Decreased by 10.12 %
- Crime Rate
- 4.00 %Unchanged by 0.00 %
Agent Activity
Chancellors created the listing.
Nearby Schools
| Name | Type | Ofsted | Distance |
|---|---|---|---|
| Kenyngton Manor Primary School | Academy Sponsor Led | Good | 0.52 KM |
| Kenyngton Manor Primary School & Sure Start Children'S Centre | Children's Centre | 0.52 KM | |
| St Paul'S Catholic College | Voluntary Aided School | Outstanding | 1.18 KM |
| St Ignatius Catholic Primary School | Voluntary Aided School | Good | 1.24 KM |
| Sunbury Manor School | Academy Converter | Good | 1.44 KM |
Images
Nearby Streets
| Name | Average Price | Average Sqft | Distance |
|---|---|---|---|
| Orchard Road | £ 0 | 0 | 0.00 KM |
| Snakey Lane | £ 0 | 0 | 0.00 KM |
| Heath Grove | £ 0 | 0 | 0.00 KM |
| Grange Mews | £ 465,000 | 0 | 0.00 KM |
| Springfield Grove | £ 0 | 0 | 0.00 KM |
Nearby Transport
| Name | NLC | TLC | Distance |
|---|---|---|---|
| Kempton Park Racecourse | 5678 | KMP | 0.57 KM |
| Sunbury | 5608 | SUU | 0.91 KM |
| Upper Halliford | 5613 | UPH | 2.38 KM |
| Feltham | 5559 | FEL | 2.57 KM |
| Hampton | 5560 | HMP | 4.63 KM |
Nearby Listings
| Address | Price | Type | Score | Distance |
|---|---|---|---|---|
| Sunbury-on-Thames, Surrey, TW16 | £ 475,000 | BUY | 7 / 10 | 0.00 KM |
| Ashridge Way, Sunbury-on-Thames, Surrey, TW16 | £ 460,000 | BUY | 6 / 10 | 0.10 KM |
| Ashridge Way, Sunbury-on-Thames, Surrey, TW16 | £ 490,000 | BUY | 6 / 10 | 0.12 KM |
| Sunbury-on-Thames, Surrey, TW16 | £ 700,000 | BUY | 7 / 10 | 0.25 KM |
| Keywood Drive, Sunbury-on-thames, TW16 | £ 425,000 | BUY | Unknown | 0.30 KM |
Nearby Properties
| Address | Price | Distance |
|---|---|---|
| 168 Ashridge Way | £ 440,000 | 0.11 KM |
| 158 Ashridge Way | £ 390,000 | 0.11 KM |
| 222 Ashridge Way | £ 250,000 | 0.11 KM |
| 176 Ashridge Way | £ 510,000 | 0.11 KM |
| 162 Ashridge Way | £ 400,000 | 0.11 KM |