Buckley Street, Macclesfield
By Gascoigne Halman
£ 550,000
Reviews
4 out of 5 stars
Gascoigne Halman says ..
A very stylish and striking individual detached property, presented to very high standards with automated gated access, parking and beautifully landscaped. Great central location but charmingly tucked away. Viewing recommended.
Property Oracle says ..
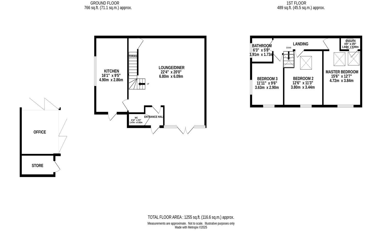
This property is a 3 bedroom, 2 bathroom detached house located in Macclesfield Central, Cheshire. The property has been recently renovated to a high standard and is presented in excellent condition throughout. The images show a modern, well-designed interior with high-quality fixtures and fittings. There is a good-sized garden with a patio area, a hot tub and a gym/studio. The location is convenient, with nearby schools and transport links. The property is listed at £550,000, which is above the average price for the area but considering the size, condition, and additional features, it could represent good value for money.
Therefore, we give this property 8 / 10. *Disclaimer: This is our option and does constitute a recommendation or financial advice. Do your own research. *
- Price
- 7
- Condition
- 10
- Location
- 8
- Land
- 7
- Bedrooms
- 3
- Bathrooms
- 2
- Sqft (est)
- 1,255.00
The heatmap indicates the level of crime in the area. The color of the heatmap indicates the crime severity and recency.
Metrics Year-on-Year
- Average area value
- 236,999.00 £Decreased by 1.19 %
- Est sale value
- 345,125.00 £Increased by 4.96 %
- Average area rental value
- 1,057.00 £/moIncreased by 6.66 %
- Est letting value
- 1,255.00 £/moUnchanged by 0.00 %
- Est rental Yield
- 5.35 %Increased by 7.86 %
- Crime Rate
- 6.00 %Unchanged by 0.00 %
Agent Activity
Gascoigne Halman created the listing.
Nearby Schools
| Name | Type | Ofsted | Distance |
|---|---|---|---|
| Parkroyal Community School | Academy Converter | Good | 0.76 KM |
| Christ The King Catholic And Church Of England Primary School | Academy Sponsor Led | 0.76 KM | |
| Ash Grove Academy | Academy Converter | 1.18 KM | |
| The Macclesfield Academy | Academy Sponsor Led | Requires improvement | 1.20 KM |
| Ash Grove Children'S Centre | Children's Centre | 1.20 KM |
Images
Nearby Streets
| Name | Average Price | Average Sqft | Distance |
|---|---|---|---|
| Saint John's Road | £ 0 | 0 | 0.00 KM |
| Holland Street | £ 0 | 0 | 0.00 KM |
| Thistleton Close | £ 0 | 0 | 0.00 KM |
| Grapes Street | £ 0 | 0 | 0.00 KM |
| Harpur Close | £ 0 | 0 | 0.00 KM |
Nearby Transport
| Name | NLC | TLC | Distance |
|---|---|---|---|
| Macclesfield | 2871 | MAC | 0.80 KM |
| Prestbury | 2875 | PRB | 4.76 KM |
| Adlington (Cheshire) | 2939 | ADC | 7.26 KM |
Nearby Listings
| Address | Price | Type | Score | Distance |
|---|---|---|---|---|
| Buckley Street, Macclesfield | £ 550,000 | BUY | 8 / 10 | 0.00 KM |
| Vincent Street, Macclesfield, SK11 6UJ | £ 280,000 | BUY | 6 / 10 | 0.03 KM |
| Hobson Street, Macclesfield, Cheshire, SK11 | £ 200,000 | BUY | 6 / 10 | 0.05 KM |
| Vincent Street, Macclesfield | £ 300,000 | BUY | 6 / 10 | 0.07 KM |
| Vincent Street, Macclesfield | £ 295,000 | BUY | 7 / 10 | 0.07 KM |
Nearby Properties
| Address | Price | Distance |
|---|---|---|
| 3 Hobson Street | £ 165,000 | 0.05 KM |
| 2 Hobson Street | £ 160,000 | 0.05 KM |
| 2 Nelson Street | £ 118,000 | 0.08 KM |
| 3 Nelson Street | £ 182,000 | 0.08 KM |
| 16 Nelson Street | £ 123,500 | 0.08 KM |