KN
Grovehurst Lane, Horsmonden, Tonbridge, Kent, TN12
By Knight Frank
£ 3,500,000
Reviews
4 out of 5 stars
Knight Frank says ..
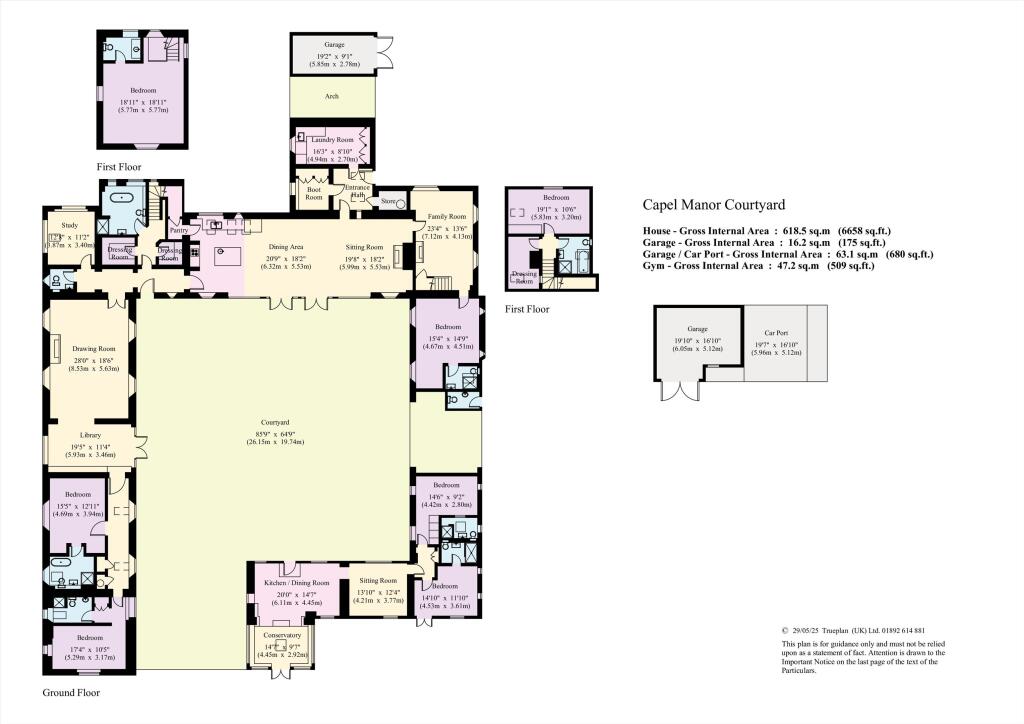
A beautifully presented seven bedroom country home with wonderful landscaped gardens stretching to two acres, nestled in the Kent village of Horsmonden. History Nestled in the heart of the Kent countryside in the village of Horsmonden, Capel Manor Courtyard is a beautifully presented seven-bedro...
Property Oracle says ..
Therefore, we give this property 8 / 10. *Disclaimer: This is our option and does constitute a recommendation or financial advice. Do your own research. *
- Price
- 7
- Condition
- 9
- Location
- 7
- Land
- 9
- Bedrooms
- 7
- Bathrooms
- 7
The heatmap indicates the level of crime in the area. The color of the heatmap indicates the crime severity and recency.
Metrics Year-on-Year
- Average area value
- 377,000.00 £Decreased by 3.35 %
- Average area rental value
- 664.00 £/moDecreased by 69.43 %
- Est rental Yield
- 2.11 %Decreased by 68.41 %
- Crime Rate
- 0.00 %
from 390,065.00 £
from 2,172.00 £/mo
from 6.68 %
from 0.00 %
Agent Activity
Knight Frank marked this listing as sold.
Knight Frank created the listing.
Nearby Schools
| Name | Type | Ofsted | Distance |
|---|---|---|---|
| Horsmonden Primary Academy | Academy Converter | 1.82 KM | |
| Goudhurst And Kilndown Church Of England Primary School | Voluntary Controlled School | Outstanding | 3.21 KM |
| Bethany School | Other Independent School | 4.14 KM | |
| St Margaret'S, Collier Street Church Of England Voluntary Controlled School | Voluntary Controlled School | Good | 6.05 KM |
| Marden Primary Academy | Academy Converter | 6.25 KM |
Images
Nearby Streets
| Name | Average Price | Average Sqft | Distance |
|---|---|---|---|
| Lewes Heath Cottages | £ 0 | 0 | 0.00 KM |
| Back Lane | £ 0 | 0 | 0.00 KM |
Nearby Transport
| Name | NLC | TLC | Distance |
|---|---|---|---|
| Marden (Kent) | 5223 | MRN | 6.82 KM |
| Paddock Wood | 5224 | PDW | 8.37 KM |
| Beltring | 5227 | BEG | 9.22 KM |
Nearby Listings
| Address | Price | Type | Score | Distance |
|---|---|---|---|---|
| Grovehurst Lane, Horsmonden, Tonbridge, Kent, TN12 | £ 3,500,000 | BUY | 8 / 10 | 0.00 KM |
| Grovehurst Lane, Horsmonden, Tonbridge, TN12 | £ 3,500,000 | BUY | Unknown | 0.12 KM |
| Grovehurst Lane, Horsmonden | £ 695,000 | BUY | 7 / 10 | 0.32 KM |
| Goudhurst Road, Horsmonden, Tonbridge, Kent, TN12 | £ 1,750,000 | BUY | Unknown | 0.38 KM |
| Brick Kiln Lane, Horsmonden | £ 625,000 | BUY | 7 / 10 | 0.44 KM |
Nearby Properties
| Address | Price | Distance |
|---|---|---|
| Spring Farm | £ 920,000 | 0.67 KM |
| Capel Oaks | £ 235,000 | 0.74 KM |
| Willow Barn | £ 1,325,000 | 0.83 KM |
| The Millers Cottage | £ 750,000 | 0.83 KM |
| Nevergood Oast | £ 860,000 | 0.83 KM |