Madison Brook says ..
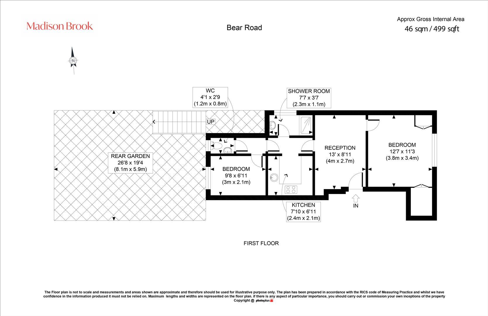
This well-presented two-bedroom first floor apartment offers excellent value for buyers seeking their first home or a smart investment opportunity. Finished to a modern standard throughout, the property features a sleek contemporary kitchen, bright reception room, stylish shower room, an...
Property Oracle says ..
This is a two-bedroom apartment on Bear Road in Hanworth. The interior is modern and appears to be in good condition. The property benefits from a garden, although it may require some maintenance. The location offers access to local schools and transportation. The asking price of £275,000 seems reasonable in the current market, although the price per square foot is above the local average. Overall, this property would likely appeal to first-time buyers or small families looking for a well-presented home with outdoor space.
Therefore, we give this property 6 / 10. *Disclaimer: This is our option and does constitute a recommendation or financial advice. Do your own research. *
- Price
- 7
- Condition
- 8
- Location
- 6
- Land
- 5
- Bedrooms
- 2
- Bathrooms
- 1
- Sqft (est)
- 495.14
The heatmap indicates the level of crime in the area. The color of the heatmap indicates the crime severity and recency.
Metrics Year-on-Year
- Average area value
- 496,490.00 £Increased by 20.13 %
- Est sale value
- 84,173.80 £Decreased by 55.15 %
- Average area rental value
- 2,027.00 £/moIncreased by 19.94 %
- Est letting value
- 0.00 £/moDecreased by 100.00 %
- Est rental Yield
- 4.90 %Decreased by 0.20 %
- Crime Rate
- 23.00 %Unchanged by 0.00 %
Agent Activity
Madison Brook created the listing.
Nearby Schools
| Name | Type | Ofsted | Distance |
|---|---|---|---|
| Oriel Academy West London | Academy Sponsor Led | Good | 0.53 KM |
| The St Michael Steiner School | Other Independent School | 0.58 KM | |
| St Richard'S Church Of England Primary School | Academy Converter | 0.58 KM | |
| Lindon Bennett School | Community Special School | Good | 0.61 KM |
| Crane Park Children'S Centre | Children's Centre | 1.52 KM |
Images
Nearby Streets
| Name | Average Price | Average Sqft | Distance |
|---|---|---|---|
| Katherine Court | £ 0 | 0 | 0.00 KM |
| Birch Road | £ 0 | 0 | 0.00 KM |
| Uxbridge Road | £ 0 | 0 | 0.00 KM |
| Vaughan Close | £ 0 | 0 | 0.00 KM |
| Maple Close | £ 0 | 0 | 0.00 KM |
Nearby Transport
| Name | NLC | TLC | Distance |
|---|---|---|---|
| Kempton Park Racecourse | 5678 | KMP | 2.34 KM |
| Feltham | 5559 | FEL | 2.67 KM |
| Hampton | 5560 | HMP | 2.81 KM |
| Sunbury | 5608 | SUU | 3.26 KM |
| Whitton | 5611 | WTN | 4.25 KM |
Nearby Listings
| Address | Price | Type | Score | Distance |
|---|---|---|---|---|
| Bear Road, Feltham, TW13 | £ 300,000 | BUY | 7 / 10 | 0.00 KM |
| Bear Road, Hanworth, TW13 | £ 275,000 | BUY | 6 / 10 | 0.00 KM |
| 40 Bear Road, Hanworth Village, Feltham, TW13 6RA | £ 350,000 | BUY | Unknown | 0.01 KM |
| Bear Road, Hanworth | £ 235,000 | BUY | Unknown | 0.05 KM |
| Henley Way, Feltham, Middlesex, TW13 | £ 425,000 | BUY | 7 / 10 | 0.09 KM |
Nearby Properties
| Address | Price | Distance |
|---|---|---|
| 24 Bear Road | £ 220,000 | 0.01 KM |
| 50 Bear Road | £ 415,000 | 0.01 KM |
| 30 Bear Road | £ 750,000 | 0.01 KM |
| 60 Bear Road | £ 135,000 | 0.01 KM |
| 32a Bear Road | £ 229,500 | 0.01 KM |