QU
Chilton Avenue, Sittingbourne, Kent, ME10
By Quealy & Co
£ 259,950
Reviews
3 out of 5 stars
Quealy & Co says ..
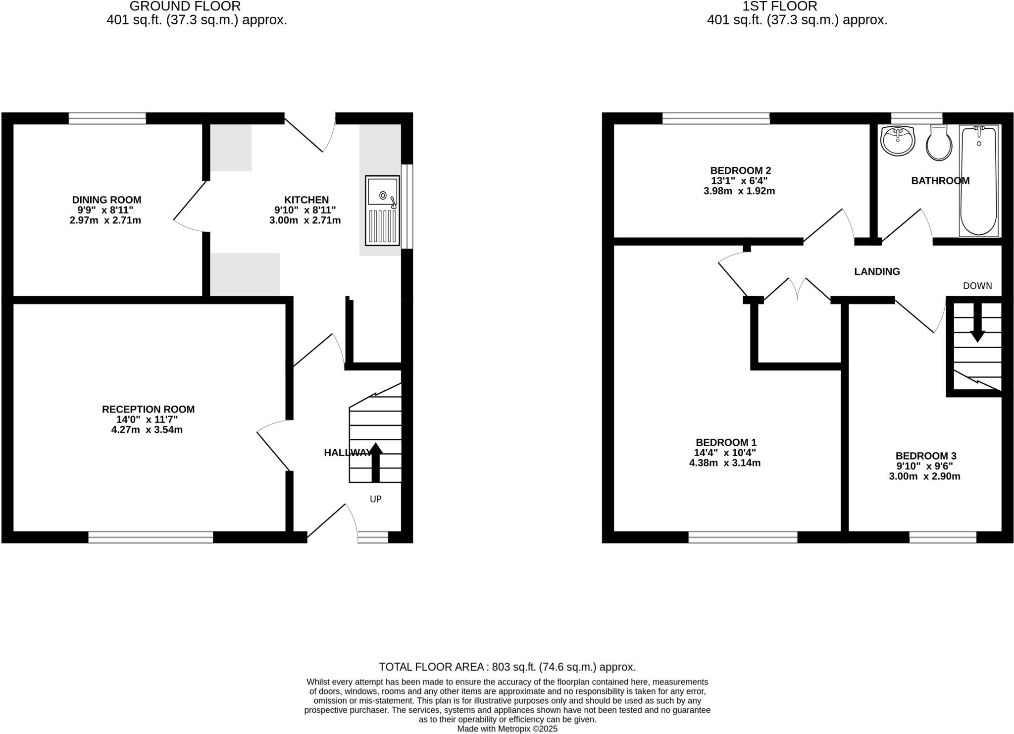
THREE BEDROOM HOUSE | Living Room | Separate Dining Room | END OF TERRACE HOUSE | Approx 803st ft | Upstairs Family Bathroom | Freehold | Off Road Parking | Rear Garden
Property Oracle says ..
Therefore, we give this property 6 / 10. *Disclaimer: This is our option and does constitute a recommendation or financial advice. Do your own research. *
- Price
- 6
- Condition
- 6
- Location
- 7
- Land
- 7
- Bedrooms
- 3
- Bathrooms
- 1
- Sqft (est)
- 662.21
The heatmap indicates the level of crime in the area. The color of the heatmap indicates the crime severity and recency.
Metrics Year-on-Year
- Average area value
- 197,000.00 £Decreased by 35.79 %
- Est sale value
- 205,947.31 £Increased by 0.65 %
- Average area rental value
- 1,400.00 £/moIncreased by 16.28 %
- Est letting value
- 1,324.42 £/moIncreased by 100.00 %
- Est rental Yield
- 8.53 %Increased by 81.10 %
- Crime Rate
- 17.00 %Unchanged by 0.00 %
from 306,819.00 £
from 204,622.89 £
from 1,204.00 £/mo
from 662.21 £/mo
from 4.71 %
from 17.00 %
Agent Activity
Quealy & Co created the listing.
Nearby Schools
| Name | Type | Ofsted | Distance |
|---|---|---|---|
| South Avenue Primary School | Academy Converter | Good | 0.20 KM |
| Vtc Independent School | Other Independent School | 0.30 KM | |
| Canterbury Road Primary School | Community School | Good | 0.56 KM |
| Highsted Grammar School | Academy Converter | 0.86 KM | |
| Fulston Manor School | Academy Converter | Good | 0.95 KM |
Images
Nearby Streets
| Name | Average Price | Average Sqft | Distance |
|---|---|---|---|
| Lavender Court | £ 235,000 | 0 | 0.00 KM |
| St. Michael's Road | £ 0 | 0 | 0.00 KM |
| Orchard Place | £ 0 | 0 | 0.00 KM |
| Osprey Court | £ 0 | 0 | 0.00 KM |
| Bell Road | £ 134,222 | 0 | 0.00 KM |
Nearby Transport
| Name | NLC | TLC | Distance |
|---|---|---|---|
| Sittingbourne | 5187 | SIT | 1.15 KM |
| Kemsley | 5205 | KML | 2.95 KM |
| Swale | 5249 | SWL | 5.78 KM |
| Teynham | 5193 | TEY | 7.02 KM |
| Newington | 5175 | NGT | 8.53 KM |
Nearby Listings
| Address | Price | Type | Score | Distance |
|---|---|---|---|---|
| Chilton Avenue, Sittingbourne, Kent, ME10 | £ 259,950 | BUY | 6 / 10 | 0.00 KM |
| Chilton Avenue, Sittingbourne, Kent, ME10 4TE | £ 259,950 | BUY | Unknown | 0.01 KM |
| Fairview Road, Sittingbourne, Kent | £ 160,000 | BUY | 6 / 10 | 0.06 KM |
| Fairview Road, Sittingbourne, Kent | £ 106,000 | BUY | 6 / 10 | 0.06 KM |
| Lavender Court, Sittingbourne, Kent, ME10 4TA | £ 260,000 | BUY | 6 / 10 | 0.08 KM |
Nearby Properties
| Address | Price | Distance |
|---|---|---|
| 41 Chilton Avenue | £ 215,500 | 0.05 KM |
| 38 Chilton Avenue | £ 290,000 | 0.05 KM |
| 65 Chilton Avenue | £ 210,000 | 0.05 KM |
| 49 Chilton Avenue | £ 250,000 | 0.05 KM |
| 54 Chilton Avenue | £ 305,000 | 0.07 KM |