Gladstone Street, Town Centre
By Primary Homes and Lettings
£ 210,000
Reviews
2 out of 5 stars
Primary Homes and Lettings says ..
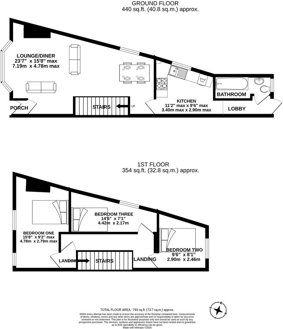
*** GUIDE PRICE £210,000 - £220,000 *** POTENTIAL LOFT CONVERSION *** We are delighted to offer this spacious three bedroom end terrace house being sold with NO ONWARD CHAIN. The accommodation briefly comprises of lounge/diner, kitchen, bathroom and three bedrooms. Property also benefits fro...
Property Oracle says ..
This end-of-terrace property on Gladstone Street, in Swindon’s Town Centre, offers three bedrooms and one bathroom within 793 sqft. While the interior appears to have been updated, the exterior and garden could benefit from some refurbishment. Its central location provides easy access to amenities and Swindon (Wilts) station, but the immediate area may lack green spaces. Nearby schools include Drove Children’s Centre and Holy Rood Catholic Primary School. Considering the condition and location, the asking price of £210,000 presents a reasonable opportunity for buyers willing to invest in some improvements.
Therefore, we give this property 5 / 10. *Disclaimer: This is our option and does constitute a recommendation or financial advice. Do your own research. *
- Price
- 7
- Condition
- 6
- Location
- 6
- Land
- 4
- Bedrooms
- 3
- Bathrooms
- 1
- Sqft (est)
- 793.00
The heatmap indicates the level of crime in the area. The color of the heatmap indicates the crime severity and recency.
Metrics Year-on-Year
- Average area value
- 487,124.00 £Increased by 94.35 %
- Est sale value
- 488,488.00 £Increased by 112.41 %
- Average area rental value
- 1,220.00 £/moIncreased by 6.46 %
- Est letting value
- 793.00 £/moUnchanged by 0.00 %
- Est rental Yield
- 3.01 %Decreased by 45.17 %
- Crime Rate
- 6.00 %Unchanged by 0.00 %
Agent Activity
Primary Homes and Lettings created the listing.
Nearby Schools
| Name | Type | Ofsted | Distance |
|---|---|---|---|
| Drove Children'S Centre | Children's Centre | 0.53 KM | |
| Holy Rood Catholic Primary School | Academy Converter | Requires improvement | 0.62 KM |
| Drove Primary School | Academy Converter | 0.72 KM | |
| Gorse Hill Children'S Centre | Children's Centre | 1.03 KM | |
| Gorse Hill Primary School | Academy Converter | Requires improvement | 1.10 KM |
Images
Nearby Streets
| Name | Average Price | Average Sqft | Distance |
|---|---|---|---|
| Gladstone Street | £ 0 | 0 | 0.00 KM |
| Newcastle Street | £ 0 | 0 | 0.00 KM |
| Spring Close | £ 0 | 0 | 0.00 KM |
| Ponting Street | £ 275,000 | 0 | 0.00 KM |
| County Ground Lane | £ 0 | 0 | 0.00 KM |
Nearby Transport
| Name | NLC | TLC | Distance |
|---|---|---|---|
| Swindon (Wilts) | 3333 | SWI | 0.89 KM |
Nearby Listings
| Address | Price | Type | Score | Distance |
|---|---|---|---|---|
| Gladstone Street, Town Centre | £ 210,000 | BUY | 5 / 10 | 0.00 KM |
| Gladstone Street, Town Centre, Swindon, SN1 | £ 255,000 | BUY | 6 / 10 | 0.04 KM |
| Gladstone Street, Swindon, Wiltshire | £ 220,000 | BUY | 6 / 10 | 0.04 KM |
| Broad Street, Town Centre, Swindon, SN1 | £ 310,000 | BUY | 7 / 10 | 0.09 KM |
| Medgbury Place, Swindon, SN1 | £ 235,000 | BUY | 6 / 10 | 0.10 KM |
Nearby Properties
| Address | Price | Distance |
|---|---|---|
| 69 Gladstone Street | £ 162,000 | 0.04 KM |
| 51 Gladstone Street | £ 195,000 | 0.04 KM |
| 49 Gladstone Street | £ 110,000 | 0.04 KM |
| 64 Gladstone Street | £ 130,000 | 0.04 KM |
| 58 Gladstone Street | £ 180,000 | 0.04 KM |