Devon Avenue, Hellesdon, Norwich, Norfolk, NR6
By Winkworth
£ 230,000
Reviews
3 out of 5 stars
Winkworth says ..
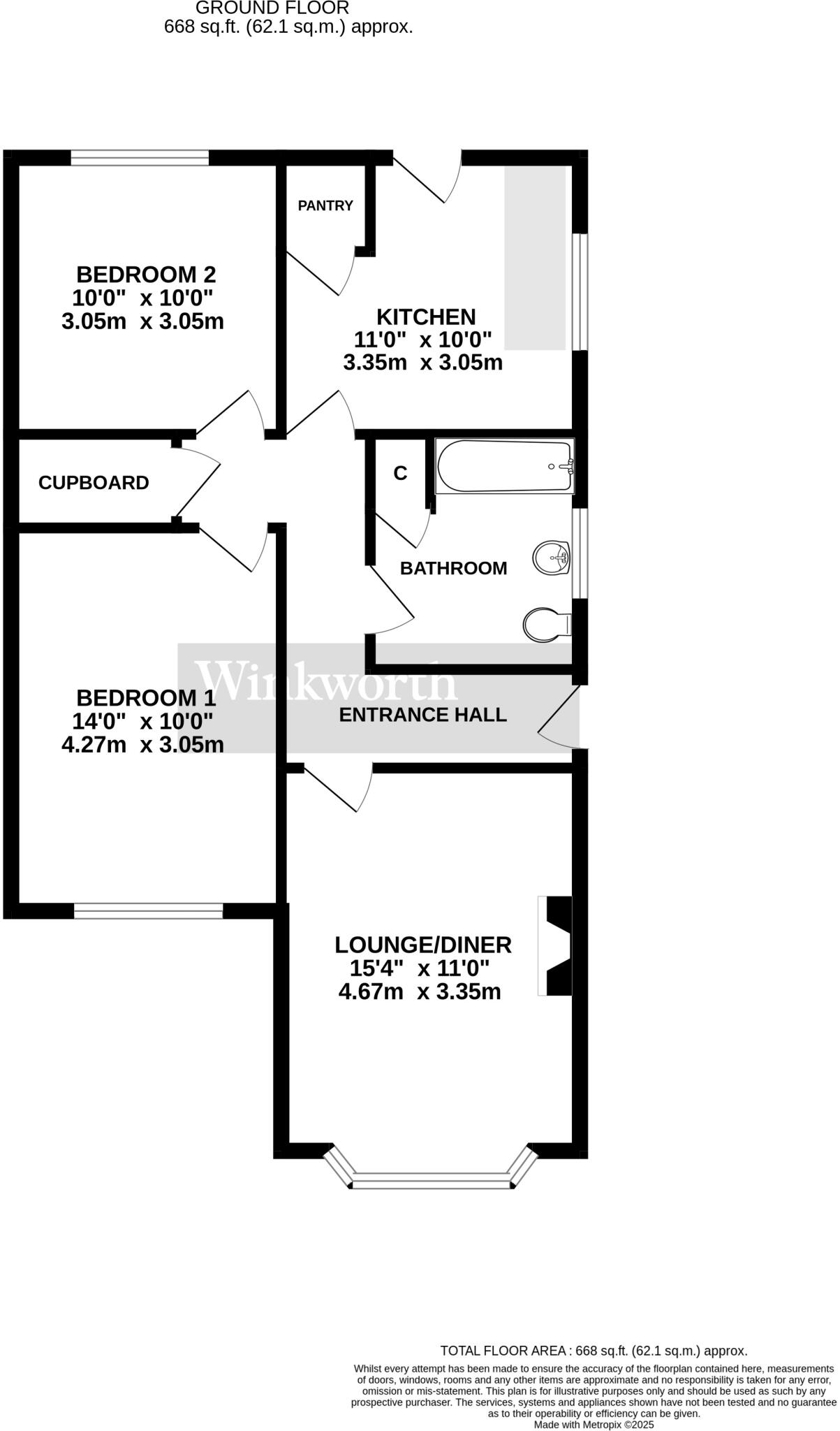
Be quick to view this two-bedroom semi-detached bungalow situated in one of Hellesdon’s most sought after locations. Offered with no onward chain this superb property is ideal for anyone looking for a project, and with an incredibly realistic guide price, we expect lots of interest from the...
Property Oracle says ..
This two-bedroom bungalow on Devon Avenue in Hellesdon, Norwich, presents a renovation opportunity. The property includes a garden with a shed and a garage, offering ample outdoor and storage space. While the interior is dated and requires updating, the location is convenient, with nearby schools and transportation links to Norwich city center. The asking price of £230,000 reflects the property’s condition and provides an opportunity for buyers to add value through refurbishment.
Therefore, we give this property 6 / 10. *Disclaimer: This is our option and does constitute a recommendation or financial advice. Do your own research. *
- Price
- 7
- Condition
- 4
- Location
- 7
- Land
- 7
- Bedrooms
- 2
- Bathrooms
- 1
- Sqft (est)
- 570.00
The heatmap indicates the level of crime in the area. The color of the heatmap indicates the crime severity and recency.
Metrics Year-on-Year
- Average area value
- 417,969.00 £Increased by 36.61 %
- Est sale value
- 213,180.00 £Increased by 1.91 %
- Average area rental value
- 1,251.00 £/moIncreased by 48.05 %
- Est letting value
- 570.00 £/moUnchanged by 0.00 %
- Est rental Yield
- 3.59 %Increased by 8.46 %
- Crime Rate
- 6.00 %Unchanged by 0.00 %
Agent Activity
Winkworth created the listing.
Nearby Schools
| Name | Type | Ofsted | Distance |
|---|---|---|---|
| Hellesdon High School | Academy Converter | Good | 0.28 KM |
| Kinsale Junior School | Academy Converter | 0.60 KM | |
| Kinsale Infant School | Community School | Good | 0.60 KM |
| Arden Grove Infant And Nursery School | Academy Converter | Outstanding | 1.13 KM |
| Firside Junior School | Academy Converter | Good | 1.89 KM |
Images
Nearby Streets
| Name | Average Price | Average Sqft | Distance |
|---|---|---|---|
| Pleasant Close | £ 240,000 | 0 | 0.00 KM |
| Beech Close | £ 0 | 0 | 0.00 KM |
| Oak Tree Lane | £ 0 | 0 | 0.00 KM |
| Saint Andrews Road | £ 335,000 | 0 | 0.00 KM |
| Shrub Lane | £ 290,000 | 0 | 0.00 KM |
Nearby Transport
| Name | NLC | TLC | Distance |
|---|---|---|---|
| Norwich | 7309 | NRW | 6.97 KM |
Nearby Listings
| Address | Price | Type | Score | Distance |
|---|---|---|---|---|
| Devon Avenue, Hellesdon, Norwich, Norfolk, NR6 | £ 230,000 | BUY | 6 / 10 | 0.00 KM |
| Devon Avenue, Norwich | £ 575,000 | BUY | 7 / 10 | 0.05 KM |
| Woodland Road, Norwich, NR6 | £ 280,000 | BUY | 7 / 10 | 0.12 KM |
| Woodland Road, Hellesdon | £ 300,000 | BUY | 7 / 10 | 0.18 KM |
| Ferndale Close, Norwich, Norfolk, NR6 | £ 300,000 | BUY | 7 / 10 | 0.21 KM |
Nearby Properties
| Address | Price | Distance |
|---|---|---|
| 10 Brandon Close | £ 278,000 | 0.07 KM |
| 5 Brandon Close | £ 215,000 | 0.07 KM |
| 7 Brandon Close | £ 180,000 | 0.07 KM |
| 4 Brandon Close | £ 159,000 | 0.07 KM |
| 12 Brandon Close | £ 220,000 | 0.07 KM |