Regent Street, Bletchley, MK2
By Urban & Rural Property Services
£ 180,000
Reviews
3 out of 5 stars
Urban & Rural Property Services says ..
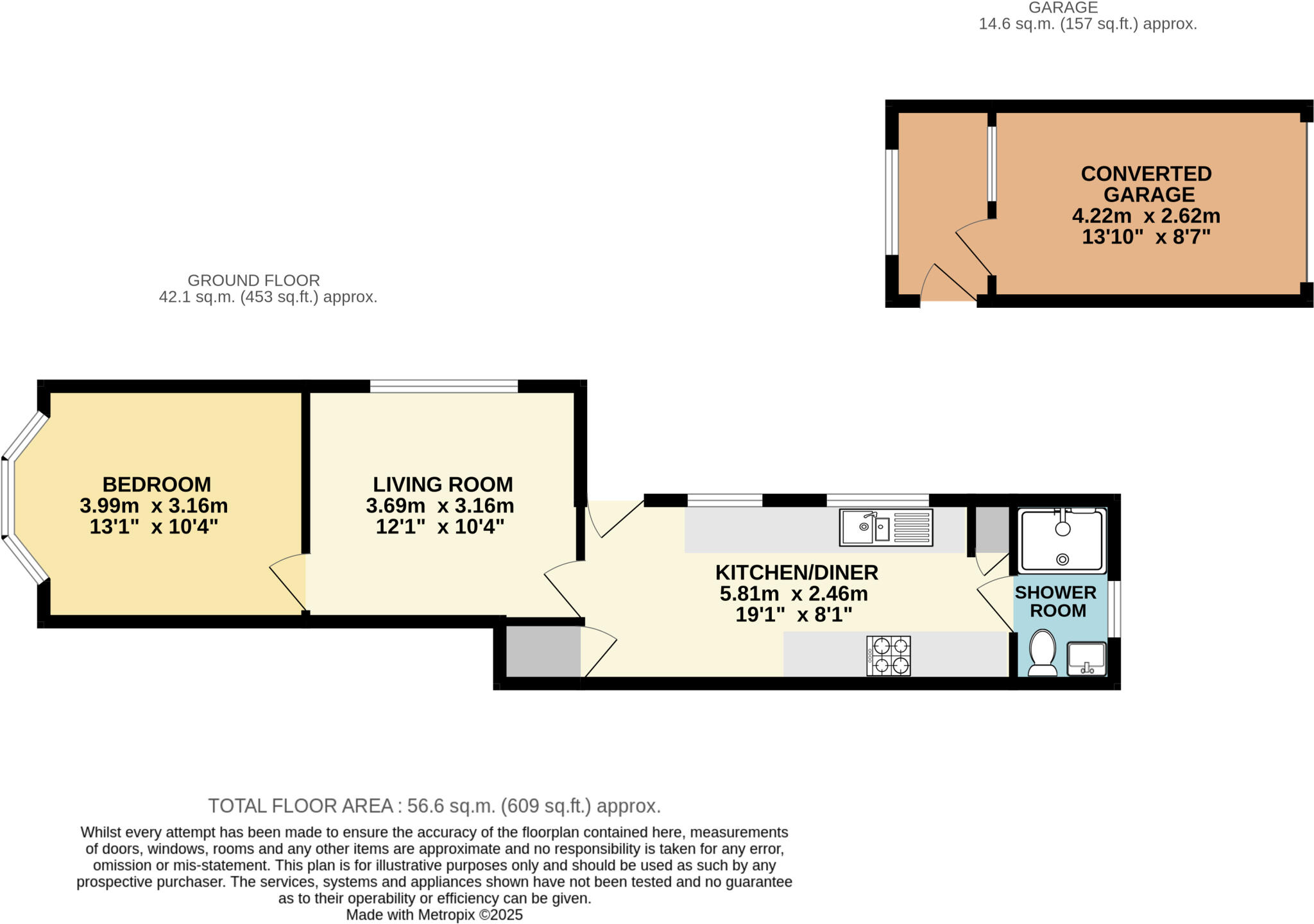
*** No Upper Chain - Private Garden - Garage - Ground Floor - Long Lease - Great Location - Close To Town Centre - Great First Time Buy Or Investment Property *** Regent Street is located in the heart of Bletchley offering excellent transport links, including Bletchley railway station...
Property Oracle says ..
This one bedroom apartment is located on Regent Street in Bletchley, Milton Keynes. The property benefits from being close to Bletchley train station, providing convenient access to Milton Keynes and London. There are also several schools within a reasonable distance, including Knowles Nursery School and The Premier Academy. The apartment itself is relatively small at 609.24 sqft, and while the images suggest it is in reasonable condition, there is potential for modernisation to increase its value. The presence of a small garden and a garage are positive features. However, the list price of £180,000 is higher than the average price per sqft for the area, suggesting it may not represent the best value for money compared to other properties in the vicinity. Further research into comparable properties in the immediate area would be beneficial to confirm this assessment.
Therefore, we give this property 6 / 10. *Disclaimer: This is our option and does constitute a recommendation or financial advice. Do your own research. *
- Price
- 6
- Condition
- 7
- Location
- 8
- Land
- 4
- Bedrooms
- 1
- Bathrooms
- 1
- Sqft (est)
- 609.24
The heatmap indicates the level of crime in the area. The color of the heatmap indicates the crime severity and recency.
Metrics Year-on-Year
- Average area value
- 448,500.00 £Increased by 31.07 %
- Est sale value
- 373,464.12 £Increased by 79.24 %
- Average area rental value
- 1,209.00 £/moDecreased by 8.41 %
- Est letting value
- 609.24 £/moUnchanged by 0.00 %
- Est rental Yield
- 3.23 %Decreased by 30.24 %
- Crime Rate
- 17.00 %Unchanged by 0.00 %
Agent Activity
Urban & Rural Property Services created the listing.
Nearby Schools
| Name | Type | Ofsted | Distance |
|---|---|---|---|
| Knowles Nursery School | Local Authority Nursery School | Good | 0.69 KM |
| Knowles Primary School | Academy Sponsor Led | Requires improvement | 0.69 KM |
| The Saplings Children'S Centre | Children's Centre | 1.05 KM | |
| The Premier Academy | Academy Converter | Outstanding | 1.16 KM |
| Bishop Parker Catholic School | Voluntary Aided School | Good | 1.17 KM |
Images
Nearby Streets
| Name | Average Price | Average Sqft | Distance |
|---|---|---|---|
| Barons Close | £ 0 | 0 | 0.00 KM |
| Cawkwell Way | £ 0 | 0 | 0.00 KM |
| St Martin's Street | £ 0 | 0 | 0.00 KM |
| Stanier Square | £ 0 | 0 | 0.00 KM |
| V7 Saxon Street | £ 0 | 0 | 0.00 KM |
Nearby Transport
| Name | NLC | TLC | Distance |
|---|---|---|---|
| Bletchley | 1360 | BLY | 0.55 KM |
| Fenny Stratford | 1377 | FEN | 1.76 KM |
| Bow Brickhill | 1381 | BWB | 4.01 KM |
| Milton Keynes Central | 1378 | MKC | 6.35 KM |
| Woburn Sands | 1539 | WOB | 8.90 KM |
Nearby Listings
| Address | Price | Type | Score | Distance |
|---|---|---|---|---|
| Regent Street, Bletchley, MK2 | £ 180,000 | BUY | 6 / 10 | 0.00 KM |
| Barons Close, Bletchley, Milton Keynes | £ 295,000 | BUY | 6 / 10 | 0.07 KM |
| Oxford Street, Bletchley, Milton Keynes, Bucks, MK2 | £ 230,000 | BUY | 5 / 10 | 0.09 KM |
| Albert Street, Bletchley, MILTON KEYNES | £ 290,000 | BUY | 5 / 10 | 0.14 KM |
| Mikern Close, Bletchley, Milton Keynes, MK2 | £ 190,000 | BUY | 7 / 10 | 0.14 KM |
Nearby Properties
| Address | Price | Distance |
|---|---|---|
| 5 Regent Street | £ 150,000 | 0.04 KM |
| 13a Regent Street | £ 262,500 | 0.04 KM |
| 17 Regent Street | £ 225,000 | 0.04 KM |
| 1 St Martins Street | £ 155,500 | 0.06 KM |
| 9 St Martins Street | £ 180,000 | 0.06 KM |