haart says ..
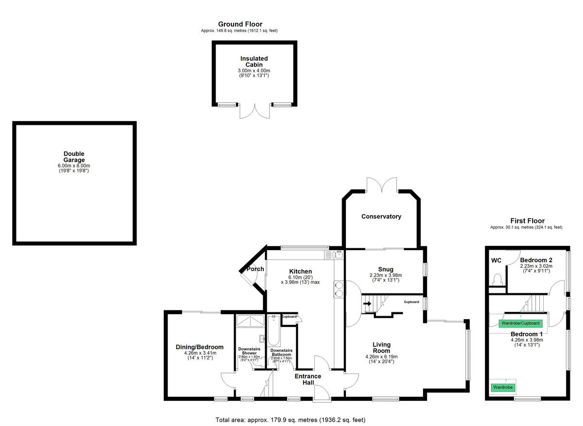
Detached three bedroom character property has come to the market after 48 years. Set in Brasted Chart backing in n to National Trust Woodland
Property Oracle says ..
Brasted Chart is a desirable village location in Kent, known for its peaceful atmosphere and proximity to Sevenoaks. The property benefits from being within reasonable distance of several primary schools, with Valence School (rated ‘Good’ by Ofsted) being the closest. Train links to London are also accessible via nearby stations such as Edenbridge and Sevenoaks, though this requires a short commute. The village itself offers a degree of local amenities, though for a wider selection of shops and services, Sevenoaks town centre would likely be the primary destination.
The property itself appears to be in good condition based on the provided photographs. The interior is presented in a clean and well-maintained state, with a recently updated kitchen being a notable feature. There is evidence of some cosmetic updates, suggesting that the property has been well cared for and is move-in ready.
The property includes a sizable garden, offering ample outdoor space. The garden appears well-established and provides a degree of privacy. The presence of a shed also adds to the practicality of the outdoor area.
Considering the property’s location in Brasted Chart, its good condition, and the inclusion of a garden, the list price of £850,000 seems slightly above the average price for the area (£748,309). However, the property’s size (1714.33 sqft) is larger than the average (1517 sqft) in the area and the price per sqft (£493.00) is in line with the average. The higher list price may be justified by the property’s condition, the desirability of the location, and the additional features such as the garden and potentially any other unlisted features. A full valuation would be needed to make a more definitive assessment.
Therefore, we give this property 7 / 10. *Disclaimer: This is our option and does constitute a recommendation or financial advice. Do your own research. *
- Price
- 7
- Condition
- 8
- Location
- 7
- Land
- 8
- Bedrooms
- 3
- Bathrooms
- 2
- Sqft (est)
- 1,714.33
- Lot (est)
- 1,936.20
The heatmap indicates the level of crime in the area. The color of the heatmap indicates the crime severity and recency.
Metrics Year-on-Year
- Average area value
- 1,056,667.00 £Increased by 9.22 %
- Est sale value
- 1,345,749.05 £Increased by 34.88 %
- Average area rental value
- 6,495.00 £/moIncreased by 171.98 %
- Est letting value
- 6,857.32 £/moIncreased by 300.00 %
- Est rental Yield
- 7.38 %Increased by 149.32 %
- Crime Rate
- 0.00 %
Agent Activity
haart created the listing.
Nearby Schools
| Name | Type | Ofsted | Distance |
|---|---|---|---|
| Valence School | Foundation Special School | Good | 1.84 KM |
| Ide Hill Church Of England Primary School | Voluntary Aided School | Good | 2.84 KM |
| Sundridge And Brasted Church Of England Voluntary Controlled Primary School | Voluntary Controlled School | Requires improvement | 3.38 KM |
| Radnor House Sevenoaks | Other Independent School | 3.63 KM | |
| Churchill Church Of England Voluntary Controlled Primary School | Voluntary Controlled School | Good | 4.05 KM |
Images
Nearby Streets
| Name | Average Price | Average Sqft | Distance |
|---|---|---|---|
| French Street | £ 0 | 0 | 0.00 KM |
Nearby Transport
| Name | NLC | TLC | Distance |
|---|---|---|---|
| Edenbridge(Kent) | 5473 | EBR | 7.06 KM |
| Edenbridge Town | 5359 | EBT | 7.39 KM |
| Hever | 5417 | HEV | 8.42 KM |
| Dunton Green | 5102 | DNG | 8.81 KM |
| Sevenoaks | 5124 | SEV | 9.08 KM |
Nearby Listings
| Address | Price | Type | Score | Distance |
|---|---|---|---|---|
| Chart Lane, Brasted Chart | £ 850,000 | BUY | 7 / 10 | 0.00 KM |
| Brasted Chart, Westerham, TN16 | £ 975,000 | BUY | 8 / 10 | 0.24 KM |
| Brasted Chart, Sevenoaks, TN16 | £ 750,000 | BUY | 8 / 10 | 0.26 KM |
| Brasted Chart, Westerham, Kent, TN16 | £ 1,650,000 | BUY | 8 / 10 | 0.28 KM |
| Chart Lane, Westerham, TN16 | £ 350,000 | BUY | 5 / 10 | 0.30 KM |
Nearby Properties
| Address | Price | Distance |
|---|---|---|
| 5 Pipers Green Road | £ 330,150 | 0.24 KM |
| 3 Pipers Green Road | £ 550,000 | 0.24 KM |
| Oakhurst | £ 905,000 | 0.37 KM |
| 2 Woodside Cottages | £ 565,000 | 0.40 KM |
| 2 Vine Place | £ 420,000 | 0.43 KM |