56 Hunterfield Terrace, Gorebridge, EH23 4BG
Warners Solicitors logo

56 Hunterfield Terrace, Gorebridge, EH23 4BG

By Warners Solicitors

£ 155,000

Reviews

3 out of 5 stars

Warners Solicitors says ..

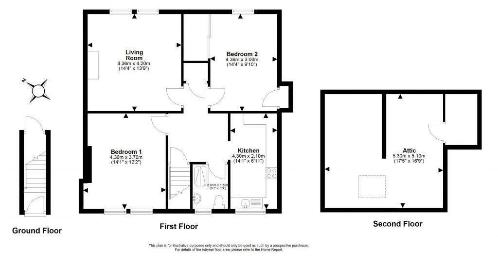
Beautifully presented and tastefully finished throughout, this impressive upper villa offers a perfect home for first-time buyers, couples, small families, or those looking to downsize in the popular Midlothian town of Gorebridge . The accommodation is generously proportioned, beginning with a w...

Property Oracle says ..

Therefore, we give this property 7 / 10. *Disclaimer: This is our option and does constitute a recommendation or financial advice. Do your own research. *

Price
9
Condition
8
Location
7
Land
5
Bedrooms
2
Bathrooms
1
Sqft (est)
897.30

The heatmap indicates the level of crime in the area. The color of the heatmap indicates the crime severity and recency.

Metrics Year-on-Year

Average area value
345,048.00 £
Increased by 34.37 %
from 256,780.00 £
Est sale value
454,931.10 £
Increased by 11.92 %
from 406,476.90 £
Average area rental value
803.00 £/mo
Decreased by 6.19 %
from 856.00 £/mo
Est letting value
897.30 £/mo
Unchanged by 0.00 %
from 897.30 £/mo
Est rental Yield
2.79 %
Decreased by 30.25 %
from 4.00 %
Crime Rate
0.00 %
from 0.00 %

Agent Activity

  • Warners Solicitors marked this listing as sold.

  • Warners Solicitors created the listing.

Images

Primary Property Image Property Image 2 Property Image 3 Property Image 4 Property Image 6 Property Image 9 Property Image 11 Property Image 13 Property Image 14 Property Image 16 Property Image 5 Property Image 7 Property Image 12 Property Image 17 Property Image 18 Property Image 19 Property Image 20 Property Image 21 Property Image 8 Property Image 10

Nearby Streets

NameAverage PriceAverage SqftDistance
Peastonhall Drive £ 246,00000.00 KM
Greenhall Road £ 000.00 KM
Hogarth Avenue £ 000.00 KM
Dundas Gardens £ 000.00 KM
Barleyknowe Place £ 000.00 KM

Nearby Transport

NameNLCTLCDistance
Gorebridge6391GBG1.61 KM
Newtongrange6929NEG2.31 KM
Eskbank3776EKB4.54 KM
Shawfair6963SFI8.12 KM
Musselburgh9304MUB9.45 KM

Nearby Listings

AddressPriceTypeScoreDistance
56 Hunterfield Terrace, Gorebridge, EH23 4BG £ 155,000BUY7 / 100.00 KM
45 Hunterfield Terrace, Gorebridge, EH23 £ 150,000BUYUnknown0.07 KM
Aspen Drive, Gorebridge, EH23 £ 259,000BUY7 / 100.11 KM
37 Aspen Drive, Gorebridge, EH23 £ 235,000BUYUnknown0.13 KM
30 Aspen Drive, Gorebridge, EH23 4PZ £ 180,000BUY7 / 100.16 KM