The Agency UK says ..
A rare opportunity, surrounded by trees and in a secluded position, this two double bedroom detached property in need of modernisation, comes to the market for the first time in 20 years! Ideal for the growing family
Property Oracle says ..
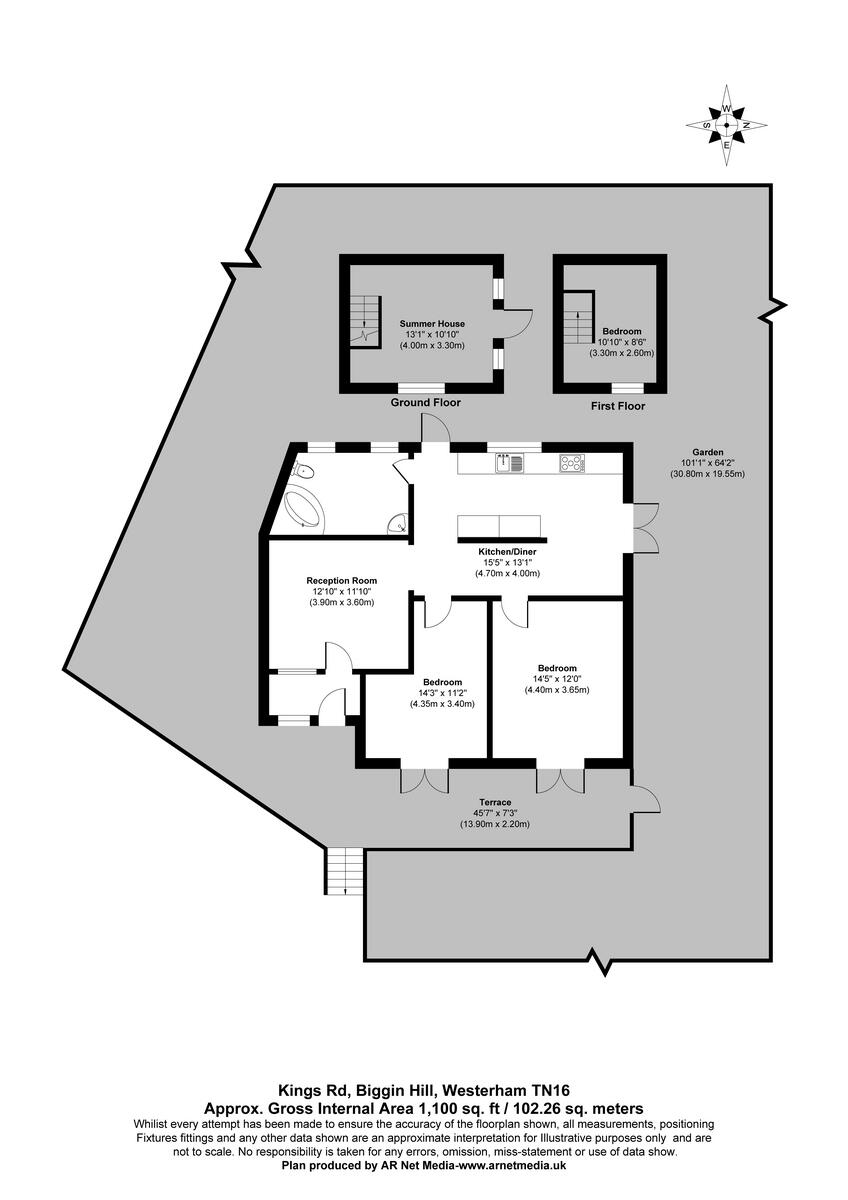
This is a detached bungalow located on Kings Road, Biggin Hill. The property offers two bedrooms and one bathroom, with a total square footage of 1,100.72 sqft. The listing price is £425,000. The property includes a garden and an outbuilding, which could serve as a study or office. While the kitchen appears relatively modern, other areas of the house, such as the bathroom, could benefit from renovation. The location is suburban, with access to local schools and transportation links. Considering the average price per square foot in the area and the property’s size, the price appears reasonable, making it a potentially good value for buyers willing to undertake some modernisation.
Therefore, we give this property 7 / 10. *Disclaimer: This is our option and does constitute a recommendation or financial advice. Do your own research. *
- Price
- 8
- Condition
- 6
- Location
- 7
- Land
- 7
- Bedrooms
- 2
- Bathrooms
- 1
- Sqft (est)
- 1,100.72
The heatmap indicates the level of crime in the area. The color of the heatmap indicates the crime severity and recency.
Metrics Year-on-Year
- Average area value
- 770,000.00 £Increased by 1.19 %
- Est sale value
- 779,309.76 £Increased by 35.89 %
- Average area rental value
- 1,713.00 £/moDecreased by 7.36 %
- Est letting value
- 1,100.72 £/moUnchanged by 0.00 %
- Est rental Yield
- 2.67 %Decreased by 8.56 %
- Crime Rate
- 31.00 %Unchanged by 0.00 %
Agent Activity
The Agency UK created the listing.
Nearby Schools
| Name | Type | Ofsted | Distance |
|---|---|---|---|
| Biggin Hill Children And Family Centre | Children's Centre | 0.28 KM | |
| Oaklands Primary Academy | Academy Converter | Good | 0.59 KM |
| Biggin Hill Primary School | Academy Converter | Good | 1.68 KM |
| Tatsfield Primary School | Academy Converter | 2.14 KM | |
| Charles Darwin School | Academy Converter | Good | 2.25 KM |
Images
Nearby Streets
| Name | Average Price | Average Sqft | Distance |
|---|---|---|---|
| Melrose Road | £ 650,000 | 0 | 0.00 KM |
| King George VI Avenue | £ 220,000 | 0 | 0.00 KM |
| Beech Avenue | £ 0 | 0 | 0.00 KM |
| Filey Close | £ 462,500 | 0 | 0.00 KM |
| Saltbox Hill | £ 737,500 | 0 | 0.00 KM |
Nearby Transport
| Name | NLC | TLC | Distance |
|---|---|---|---|
| Oxted | 5377 | OXT | 6.74 KM |
| Hayes | 5050 | HYS | 7.53 KM |
| Hurst Green | 5463 | HUR | 7.72 KM |
| Woldingham | 5440 | WOH | 8.86 KM |
| West Wickham | 5054 | WWI | 9.05 KM |
Nearby Listings
| Address | Price | Type | Score | Distance |
|---|---|---|---|---|
| Kings Road, Westerham, TN16 | £ 425,000 | BUY | 7 / 10 | 0.00 KM |
| Kings Road, Biggin Hill, Westerham | £ 500,000 | BUY | Unknown | 0.09 KM |
| Kings Road, Westerham, Kent | £ 500,000 | BUY | 6 / 10 | 0.09 KM |
| Kings Road, Westerham, TN16 | £ 550,000 | BUY | 7 / 10 | 0.09 KM |
| Kings Road, Biggin Hill | £ 600,000 | BUY | Unknown | 0.11 KM |
Nearby Properties
| Address | Price | Distance |
|---|---|---|
| 126 Kings Road | £ 295,000 | 0.09 KM |
| 102 Kings Road | £ 348,500 | 0.09 KM |
| 112 Kings Road | £ 269,000 | 0.09 KM |
| 99 Kings Road | £ 345,000 | 0.09 KM |
| 113 Kings Road | £ 370,000 | 0.09 KM |