FO
Ferndale Road, Tottenham, London, N15
By Foxtons
£ 850,000
Reviews
3 out of 5 stars
Foxtons says ..
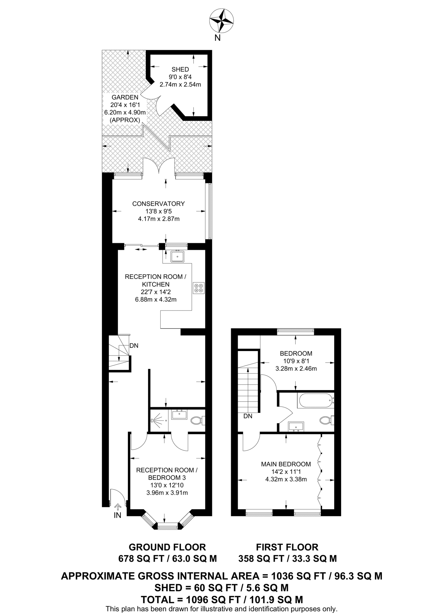
This brilliant 2 bedroom property spread over 2 floors is well presented throughout, featuring a large open plan kitchen and dining room, sunny conservatory, rear garden and well sized bedrooms.
Property Oracle says ..
Therefore, we give this property 7 / 10. *Disclaimer: This is our option and does constitute a recommendation or financial advice. Do your own research. *
- Price
- 9
- Condition
- 5
- Location
- 8
- Land
- 7
- Bedrooms
- 2
- Bathrooms
- 1
- Sqft (est)
- 1,260.88
The heatmap indicates the level of crime in the area. The color of the heatmap indicates the crime severity and recency.
Metrics Year-on-Year
- Average area value
- 789,000.00 £Increased by 13.27 %
- Est sale value
- 1,465,142.56 £Increased by 105.66 %
- Average area rental value
- 2,233.00 £/moIncreased by 4.05 %
- Est letting value
- 3,782.64 £/moIncreased by 200.00 %
- Est rental Yield
- 3.40 %Decreased by 8.11 %
- Crime Rate
- 5.00 %Unchanged by 0.00 %
from 696,574.00 £
from 712,397.20 £
from 2,146.00 £/mo
from 1,260.88 £/mo
from 3.70 %
from 5.00 %
Agent Activity
Foxtons created the listing.
Nearby Schools
| Name | Type | Ofsted | Distance |
|---|---|---|---|
| Crowland Primary School | Community School | Outstanding | 0.26 KM |
| Gladesmore Community School | Community School | Outstanding | 0.35 KM |
| Bnos Zion Of Bobov | Other Independent School | Requires improvement | 0.47 KM |
| Bnei Zion Community School | Other Independent School | Inadequate | 0.48 KM |
| Earlsmead Primary School | Community School | Good | 0.49 KM |
Images
Nearby Streets
| Name | Average Price | Average Sqft | Distance |
|---|---|---|---|
| Platinum Mews | £ 700,000 | 0 | 0.00 KM |
| Fairview Road | £ 0 | 0 | 0.00 KM |
| Barry Avenue | £ 0 | 0 | 0.00 KM |
| Olinda Road | £ 841,665 | 0 | 0.00 KM |
| A10 | £ 0 | 0 | 0.00 KM |
Nearby Transport
| Name | NLC | TLC | Distance |
|---|---|---|---|
| South Tottenham | 7404 | STO | 0.34 KM |
| Seven Sisters | 6931 | SVS | 0.74 KM |
| Stamford Hill | 6968 | SMH | 1.00 KM |
| Tottenham Hale | 6951 | TOM | 1.42 KM |
| Bruce Grove | 6958 | BCV | 1.61 KM |
Nearby Listings
| Address | Price | Type | Score | Distance |
|---|---|---|---|---|
| Ferndale Road, Tottenham, London, N15 | £ 850,000 | BUY | 7 / 10 | 0.00 KM |
| Ferndale Road, London | £ 810,000 | BUY | 6 / 10 | 0.07 KM |
| Ferndale Road, London, N15 | £ 950,000 | BUY | 7 / 10 | 0.07 KM |
| Crowland Road, London, N15 | £ 800,000 | BUY | 5 / 10 | 0.08 KM |
| Crowland Road, South Tottenham, London, N15 | £ 925,000 | BUY | 6 / 10 | 0.09 KM |
Nearby Properties
| Address | Price | Distance |
|---|---|---|
| 98 Ferndale Road | £ 430,000 | 0.02 KM |
| 96 Ferndale Road | £ 146,000 | 0.02 KM |
| 62 Ferndale Road | £ 230,000 | 0.02 KM |
| 94 Ferndale Road | £ 462,500 | 0.02 KM |
| 68 Ferndale Road | £ 215,000 | 0.02 KM |