Sears Property says ..
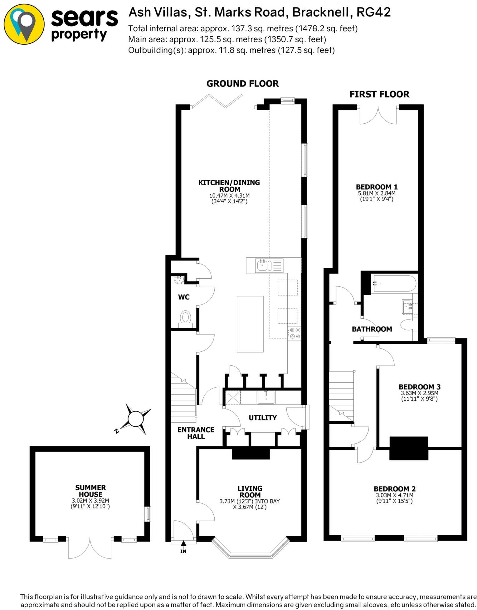
** A CHARMING & IMMACULATELY PRESENTED PERIOD HOME ** Nestled near the heart of the sought-after Binfield Village, this beautifully appointed three double bedroom semi-detached period home effortlessly combines timeless character with refined contemporary living. Brimming with charm and
Property Oracle says ..
The property is located on St Marks Road in Binfield, Bracknell Forest, Berkshire. The area benefits from good transport links and is close to several schools. The property appears to be in good condition, with a modern kitchen and bathroom. The property has a good-sized garden with a patio area and a summer house. The list price is £700,000, which is slightly above the average for the area but seems reasonable considering the condition and features of the property.
Therefore, we give this property 7 / 10. *Disclaimer: This is our option and does constitute a recommendation or financial advice. Do your own research. *
- Price
- 7
- Condition
- 9
- Location
- 8
- Land
- 7
- Bedrooms
- 3
- Bathrooms
- 1
- Sqft (est)
- 1,206.85
The heatmap indicates the level of crime in the area. The color of the heatmap indicates the crime severity and recency.
Metrics Year-on-Year
- Average area value
- 561,863.00 £Decreased by 2.75 %
- Est sale value
- 813,416.90 £Increased by 15.21 %
- Average area rental value
- 3,222.00 £/moIncreased by 22.09 %
- Est letting value
- 3,620.55 £/moIncreased by 50.00 %
- Est rental Yield
- 6.88 %Increased by 25.55 %
- Crime Rate
- 1.00 %Unchanged by 0.00 %
Agent Activity
Sears Property created the listing.
Nearby Schools
| Name | Type | Ofsted | Distance |
|---|---|---|---|
| Newbold School | Other Independent School | Good | 0.25 KM |
| Cressex Lodge School | Other Independent Special School | Good | 0.79 KM |
| King'S Academy Binfield | Free Schools | 0.94 KM | |
| Binfield Church Of England Primary School | Voluntary Aided School | Good | 1.10 KM |
| King'S Academy Oakwood | Free Schools | 1.20 KM |
Images
Nearby Streets
| Name | Average Price | Average Sqft | Distance |
|---|---|---|---|
| Kings Quarter Queens Quarter | £ 0 | 0 | 0.00 KM |
| Queens Quarter | £ 303,000 | 0 | 0.00 KM |
| Heythorp Park | £ 0 | 0 | 0.00 KM |
| Hankley Common | £ 0 | 0 | 0.00 KM |
| Hillside Drive | £ 0 | 0 | 0.00 KM |
Nearby Transport
| Name | NLC | TLC | Distance |
|---|---|---|---|
| Bracknell | 5693 | BCE | 3.92 KM |
| Wokingham | 5696 | WKM | 6.34 KM |
| Martins Heron | 5692 | MAO | 7.01 KM |
| Crowthorne | 5628 | CRN | 7.12 KM |
| Sandhurst (Berks) | 5646 | SND | 8.56 KM |
Nearby Listings
| Address | Price | Type | Score | Distance |
|---|---|---|---|---|
| St Marks Road, Binfield | £ 700,000 | BUY | 7 / 10 | 0.00 KM |
| St. Marks Road, Binfield, Bracknell, Berkshire, RG42 | £ 1,150,000 | BUY | 7 / 10 | 0.00 KM |
| Parkham Mead, Binfield, Bracknell, Berkshire, RG42 | £ 350,000 | BUY | 7 / 10 | 0.12 KM |
| Broomfield, Binfield, Bracknell | £ 375,000 | BUY | 7 / 10 | 0.15 KM |
| Lawton House, London Road, Binfield, RG42 | £ 575,000 | BUY | 7 / 10 | 0.24 KM |
Nearby Properties
| Address | Price | Distance |
|---|---|---|
| 18 Sampson Park | £ 717,500 | 0.05 KM |
| 4b St Marks Road | £ 600,000 | 0.06 KM |
| 4d St Marks Road | £ 550,000 | 0.06 KM |
| 4c St Marks Road | £ 600,000 | 0.06 KM |
| 4a St Marks Road | £ 545,000 | 0.06 KM |