Catherine Street, Whitehaven
By Grisdales Estates Agents
£ 90,000
Reviews
2 out of 5 stars
Grisdales Estates Agents says ..
***ONLINE VIEWING AVAILABLE*** A rare opportunity has arisen as this very well presented two bedroom apartment becomes available in Catherine Mill. With neutral and modern touches throughout, this home is ready for someone to put their own stamp on. With large open plan lounge diner leading i...
Property Oracle says ..
This two-bedroom flat in Catherine Street, Whitehaven, is located in a convenient central position. The property is within walking distance of local amenities and benefits from the proximity of good schools and a nearby train station. While the provided images suggest a functional and livable space, the interior decor appears dated and in need of modernisation. The kitchen and bathroom, in particular, exhibit signs of age, and new flooring would likely be desirable. The lack of outdoor space is a notable drawback, typical of a flat in a converted building, which could affect its appeal. The price is comparatively reasonable for the area given the limited land and the need for refurbishment. Overall, the property presents itself as a potential investment or starter home for those willing to undertake modernisation works, or for a rental property investment.
Therefore, we give this property 5 / 10. *Disclaimer: This is our option and does constitute a recommendation or financial advice. Do your own research. *
- Price
- 7
- Condition
- 5
- Location
- 7
- Land
- 1
- Bedrooms
- 2
- Bathrooms
- 1
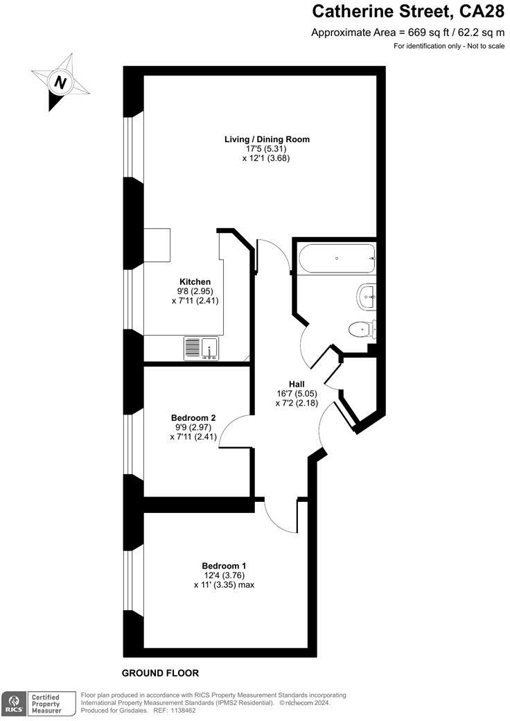
- Sqft (est)
- 669.52
The heatmap indicates the level of crime in the area. The color of the heatmap indicates the crime severity and recency.
Metrics Year-on-Year
- Average area value
- 436,667.00 £Increased by 9.99 %
- Est sale value
- 359,532.24 £Increased by 46.72 %
- Average area rental value
- 1,625.00 £/moIncreased by 11.23 %
- Est letting value
- 669.52 £/moUnchanged by 0.00 %
- Est rental Yield
- 4.47 %Increased by 1.13 %
- Crime Rate
- 10.00 %Unchanged by 0.00 %
Agent Activity
Grisdales Estates Agents created the listing.
Nearby Schools
| Name | Type | Ofsted | Distance |
|---|---|---|---|
| St Begh'S Catholic Junior School | Voluntary Aided School | Good | 0.55 KM |
| Monkwray Junior School | Community School | Good | 0.74 KM |
| St James' Cofe Infant And Nursery School | Voluntary Controlled School | Good | 0.76 KM |
| St James' Cofe Junior School | Voluntary Controlled School | Good | 0.91 KM |
| St Gregory And St Patrick'S Catholic Infant School | Voluntary Aided School | Good | 1.44 KM |
Images
Nearby Streets
| Name | Average Price | Average Sqft | Distance |
|---|---|---|---|
| Catherine Mews | £ 90,000 | 0 | 0.00 KM |
| Castle Meadows | £ 0 | 0 | 0.00 KM |
| John's Lane | £ 0 | 0 | 0.00 KM |
| Schoolhouse Lane | £ 0 | 0 | 0.00 KM |
| Senhouse Street | £ 0 | 0 | 0.00 KM |
Nearby Transport
| Name | NLC | TLC | Distance |
|---|---|---|---|
| Corkickle | 2049 | CKL | 0.75 KM |
| Whitehaven | 2048 | WTH | 0.91 KM |
| Parton | 2032 | PRN | 2.94 KM |
| St Bees | 2002 | SBS | 5.84 KM |
| Harrington | 2027 | HRR | 8.01 KM |
Nearby Listings
| Address | Price | Type | Score | Distance |
|---|---|---|---|---|
| Catherine Street, Whitehaven | £ 90,000 | BUY | 5 / 10 | 0.00 KM |
| Mill Street, Whitehaven, CA28 | £ 90,000 | BUY | Unknown | 0.07 KM |
| Mill Street, Whitehaven, CA28 | £ 110,000 | BUY | 6 / 10 | 0.11 KM |
| Mill Street, Whitehaven, CA28 | £ 139,950 | BUY | 6 / 10 | 0.11 KM |
| Mill Street, Whitehaven, CA28 | £ 145,000 | BUY | Unknown | 0.11 KM |
Nearby Properties
| Address | Price | Distance |
|---|---|---|
| 15 Mill Street | £ 96,000 | 0.09 KM |
| 23 Mill Street | £ 75,000 | 0.09 KM |
| 12 Mill Street | £ 61,500 | 0.09 KM |
| 10 Mill Street | £ 82,000 | 0.09 KM |
| 24 Mill Street | £ 98,000 | 0.09 KM |