50 Hammersley Road, London, E16
By Samuel King
£ 375,000
Reviews
3 out of 5 stars
Samuel King says ..
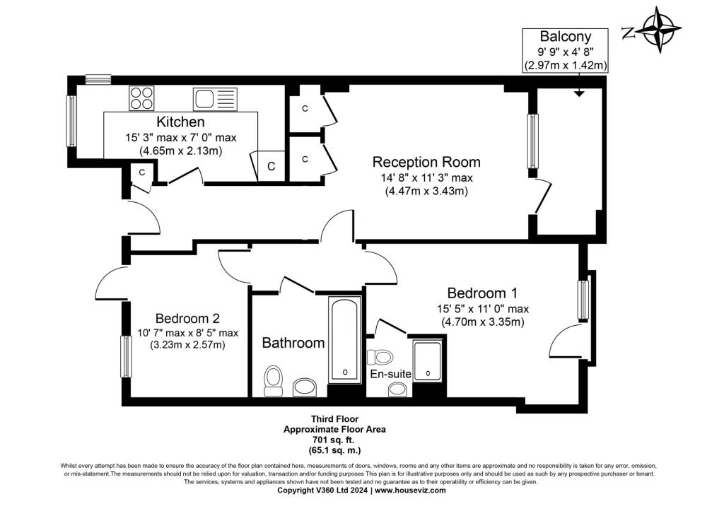
TWO BEDROOMS TWO BATHROOMS. Located in this in vogue and highly sought after Pioneer Court, we are pleased to bring to market this 3rd flr South facing apartment. With benefits to include, a bathroom and En-Suite, fitted kitchen and spacious, airy reception room leading to a balcony. CHAIN FREE.
Property Oracle says ..
This property is a 2-bedroom, 2-bathroom flat located in Canning Town South, Newham, London. The flat is part of a modern development, as seen in the provided images, and appears to be in excellent condition. It benefits from a good-sized living area and a modern kitchen and bathrooms. While the property itself does not have a private garden or outdoor space, the building offers communal outdoor areas. The location is convenient, with several schools and transportation links within a reasonable distance. The list price of £375,000 is slightly below the average price for the area (£491,316), and considering the modern condition and amenities of the flat, it could represent good value for money. However, further investigation into comparable properties in the immediate vicinity would be beneficial to confirm this assessment.
Therefore, we give this property 6 / 10. *Disclaimer: This is our option and does constitute a recommendation or financial advice. Do your own research. *
- Price
- 7
- Condition
- 9
- Location
- 8
- Land
- 3
- Bedrooms
- 2
- Bathrooms
- 2
- Sqft (est)
- 701.00
The heatmap indicates the level of crime in the area. The color of the heatmap indicates the crime severity and recency.
Metrics Year-on-Year
- Average area value
- 388,267.00 £Decreased by 11.51 %
- Est sale value
- 370,128.00 £Decreased by 4.00 %
- Average area rental value
- 2,387.00 £/moIncreased by 9.80 %
- Est letting value
- 2,103.00 £/moIncreased by 50.00 %
- Est rental Yield
- 7.38 %Increased by 24.03 %
- Crime Rate
- 5.00 %Unchanged by 0.00 %
Agent Activity
Samuel King created the listing.
Nearby Schools
| Name | Type | Ofsted | Distance |
|---|---|---|---|
| Keir Hardie Children'S Centre | Children's Centre | 0.08 KM | |
| Keir Hardie Primary School | Community School | Good | 0.13 KM |
| Rokeby School | Academy Converter | 0.43 KM | |
| Learningsure College | Other Independent School | 0.44 KM | |
| Hallsville Primary School | Academy Converter | 0.51 KM |
Images
Nearby Streets
| Name | Average Price | Average Sqft | Distance |
|---|---|---|---|
| Fisher Street | £ 0 | 0 | 0.00 KM |
| Beckton Road | £ 0 | 0 | 0.00 KM |
| Exeter Road | £ 475,000 | 0 | 0.00 KM |
| St John's Road | £ 0 | 0 | 0.00 KM |
| Braemar Road | £ 419,000 | 0 | 0.00 KM |
Nearby Transport
| Name | NLC | TLC | Distance |
|---|---|---|---|
| West Ham | 7474 | WEH | 1.99 KM |
| Maryland | 6970 | MYL | 3.56 KM |
| Charlton | 5144 | CTN | 3.61 KM |
| Westcombe Park | 5151 | WCB | 3.65 KM |
| Forest Gate | 6876 | FOG | 3.65 KM |
Nearby Listings
| Address | Price | Type | Score | Distance |
|---|---|---|---|---|
| Flat , Pioneer Court, Hammersley Road, London | £ 290,000 | BUY | 6 / 10 | 0.00 KM |
| Hammersley Road, London, E16 | £ 375,000 | BUY | 6 / 10 | 0.00 KM |
| Hammersley Road, London, E16 | £ 400,000 | BUY | Unknown | 0.00 KM |
| Pioneer Court, Custom House, E16 | £ 385,000 | BUY | 6 / 10 | 0.04 KM |
| Pioneer Court, Canning Town, E16 | £ 375,000 | BUY | 5 / 10 | 0.04 KM |
Nearby Properties
| Address | Price | Distance |
|---|---|---|
| 22 Kildare Road | £ 248,000 | 0.11 KM |
| 12 Kildare Road | £ 425,000 | 0.11 KM |
| 18 Kildare Road | £ 70,000 | 0.11 KM |
| 16 Kildare Road | £ 108,000 | 0.11 KM |
| 44 Kildare Road | £ 420,000 | 0.11 KM |