Darby Road, Grassendale, Liverpool, L19
By Move Residential
£ 795,000
Reviews
4 out of 5 stars
Move Residential says ..
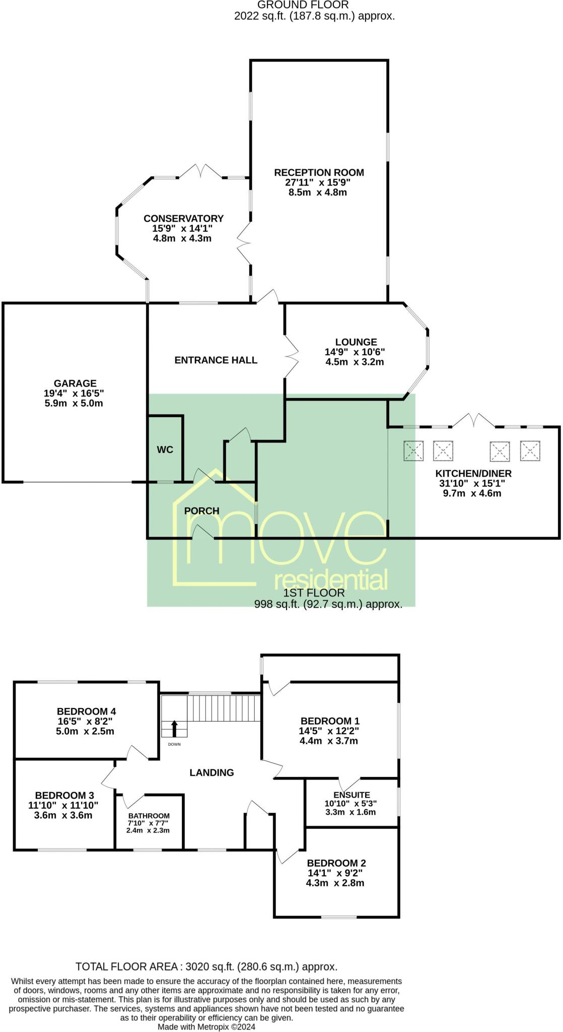
Far surpassing all expectations is this magnificent four bedroom detached residence, enjoying a generous and secluded corner plot on Darby Road in the highly favoured residential area of Grassendale, L19. The property boasts an impressive modern frontage and offers vast and impeccably presented l...
Property Oracle says ..
Therefore, we give this property 8 / 10. *Disclaimer: This is our option and does constitute a recommendation or financial advice. Do your own research. *
- Price
- 7
- Condition
- 8
- Location
- 9
- Land
- 8
- Bedrooms
- 4
- Bathrooms
- 2
- Sqft (est)
- 2,330.36
The heatmap indicates the level of crime in the area. The color of the heatmap indicates the crime severity and recency.
Metrics Year-on-Year
- Average area value
- 368,671.00 £Increased by 15.06 %
- Est sale value
- 829,608.16 £Increased by 94.54 %
- Average area rental value
- 1,089.00 £/moDecreased by 1.36 %
- Est letting value
- 2,330.36 £/mo
- Est rental Yield
- 3.54 %Decreased by 14.29 %
- Crime Rate
- 4.00 %Unchanged by 0.00 %
from 320,405.00 £
from 426,455.88 £
from 1,104.00 £/mo
from 0.00 £/mo
from 4.13 %
from 4.00 %
Agent Activity
Move Residential created the listing.
Nearby Schools
| Name | Type | Ofsted | Distance |
|---|---|---|---|
| St Austin'S Catholic Primary School | Voluntary Aided School | Good | 0.17 KM |
| Gilmour (Southbank) Infant School | Community School | Outstanding | 0.76 KM |
| Gilmour Junior School | Community School | Good | 0.80 KM |
| Prudentia Education | Other Independent School | 0.92 KM | |
| Booker Avenue Junior School | Community School | Good | 0.99 KM |
Images
Nearby Streets
| Name | Average Price | Average Sqft | Distance |
|---|---|---|---|
| Oldfield Road | £ 475,000 | 0 | 0.00 KM |
| Cooper Close | £ 458,333 | 0 | 0.00 KM |
| Fletcher Drive | £ 280,000 | 0 | 0.00 KM |
| Knowsley Road | £ 0 | 0 | 0.00 KM |
| Howard Drive | £ 350,000 | 0 | 0.00 KM |
Nearby Transport
| Name | NLC | TLC | Distance |
|---|---|---|---|
| Cressington | 2225 | CSG | 0.59 KM |
| West Allerton | 2266 | WSA | 0.77 KM |
| Aigburth | 2255 | AIG | 1.72 KM |
| Mossley Hill | 2171 | MSH | 1.72 KM |
| Liverpool South Parkway | 9709 | LPY | 2.58 KM |
Nearby Listings
| Address | Price | Type | Score | Distance |
|---|---|---|---|---|
| Darby Road, Grassendale, Liverpool, L19 | £ 795,000 | BUY | 8 / 10 | 0.00 KM |
| Darby Road, Liverpool, L19 | £ 550,000 | BUY | 7 / 10 | 0.00 KM |
| Darby Road, Grassendale, Liverpool | £ 625,000 | BUY | 7 / 10 | 0.00 KM |
| Darby Road, Grassendale, Liverpool. | £ 900,000 | BUY | 7 / 10 | 0.06 KM |
| Fairacre Road, Cressington, L19 | £ 400,000 | BUY | Unknown | 0.06 KM |
Nearby Properties
| Address | Price | Distance |
|---|---|---|
| 46 Darby Road | £ 180,000 | 0.01 KM |
| 54 Darby Road | £ 242,000 | 0.01 KM |
| 32 Darby Road | £ 340,000 | 0.01 KM |
| 24 Darby Road | £ 450,000 | 0.01 KM |
| 42 Darby Road | £ 302,500 | 0.01 KM |