Knights says ..
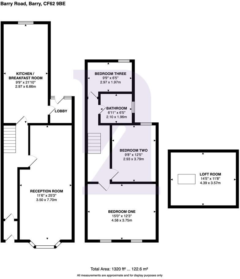
Located on Barry Road in Barry, this well presented mid terrace home offers an excellent blend of space, comfort, and convenience. Spanning approximately 1320 square feet, the property features two welcoming reception rooms, ideal for both relaxing and entertaining. The layout includes t...
Property Oracle says ..
Therefore, we give this property 7 / 10. *Disclaimer: This is our option and does constitute a recommendation or financial advice. Do your own research. *
- Price
- 9
- Condition
- 8
- Location
- 7
- Land
- 6
- Bedrooms
- 3
- Bathrooms
- 1
- Sqft (est)
- 1,087.42
The heatmap indicates the level of crime in the area. The color of the heatmap indicates the crime severity and recency.
Metrics Year-on-Year
- Average area value
- 252,500.00 £Increased by 8.93 %
- Est sale value
- 370,810.22 £Increased by 20.07 %
- Average area rental value
- 1,109.00 £/moIncreased by 3.16 %
- Est letting value
- 1,087.42 £/moUnchanged by 0.00 %
- Est rental Yield
- 5.27 %Decreased by 5.39 %
- Crime Rate
- 7.00 %Unchanged by 0.00 %
from 231,796.00 £
from 308,827.28 £
from 1,075.00 £/mo
from 1,087.42 £/mo
from 5.57 %
from 7.00 %
Agent Activity
Knights created the listing.
Nearby Schools
| Name | Type | Ofsted | Distance |
|---|---|---|---|
| Jenner Park Primary | Welsh Establishment | 0.31 KM | |
| Oakfield Primary School | Welsh Establishment | 0.56 KM | |
| Ysgol Gynradd Gwaun Y Nant | Welsh Establishment | 0.56 KM | |
| Holton Primary School | Welsh Establishment | 0.68 KM | |
| Gladstone Primary School | Welsh Establishment | 1.14 KM |
Images
Nearby Streets
| Name | Average Price | Average Sqft | Distance |
|---|---|---|---|
| Long Meadow Drive | £ 0 | 0 | 0.00 KM |
| Monmouth Way | £ 210,000 | 0 | 0.00 KM |
| Crossways Street | £ 0 | 0 | 0.00 KM |
| Cresswell Court | £ 179,000 | 0 | 0.00 KM |
| Chesterfield Street | £ 160,000 | 0 | 0.00 KM |
Nearby Transport
| Name | NLC | TLC | Distance |
|---|---|---|---|
| Barry Docks | 3806 | BYD | 1.21 KM |
| Cadoxton | 3811 | CAD | 1.85 KM |
| Barry Island | 3807 | BYI | 2.35 KM |
| Barry | 3805 | BRY | 2.73 KM |
| Dinas Powys | 3830 | DNS | 5.67 KM |
Nearby Listings
| Address | Price | Type | Score | Distance |
|---|---|---|---|---|
| Barry Road, Barry | £ 225,000 | BUY | 7 / 10 | 0.00 KM |
| Dyfan Road, Barry | £ 220,000 | BUY | 6 / 10 | 0.04 KM |
| Barry Road, Barry | £ 230,000 | BUY | 6 / 10 | 0.09 KM |
| The Rise, Barry, CF62 | £ 185,000 | BUY | Unknown | 0.12 KM |
| Hywel Crescent, Barry | £ 260,000 | BUY | 7 / 10 | 0.13 KM |
Nearby Properties
| Address | Price | Distance |
|---|---|---|
| 166 Barry Road | £ 120,000 | 0.09 KM |
| 200 Barry Road | £ 142,000 | 0.09 KM |
| 172 Barry Road | £ 116,000 | 0.11 KM |
| 174 Barry Road | £ 160,000 | 0.11 KM |
| 194 Barry Road | £ 30,000 | 0.11 KM |