Station Road, Tamerton Foliot, Plymouth, Devon, PL5 4LD
By Sensible Move
£ 750,000
Reviews
4 out of 5 stars
Sensible Move says ..
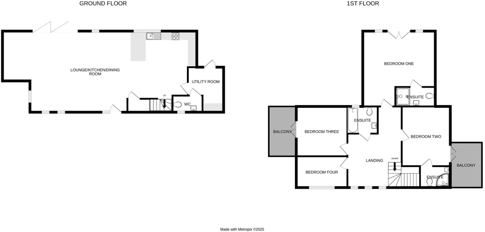
*NEW BUILD* ARCHITECT DESIGNED DETACHED FAMILY HOME WITH 4 BEDROOMS AND A LARGE GARDEN SITUATED IN A DESIRABLE VILLAGE LOCATION
Property Oracle says ..
The property is a detached house located in a convenient location with good nearby schools and transport links. The property is in excellent condition, recently renovated or newly built, with modern fixtures and fittings. It includes a well-maintained garden and appears to be of high quality. The list price may be justifiable considering the property’s condition and location, though a precise comparison to the average price per square foot is impossible without the property’s square footage. Nearby comparable properties range widely in price.
Therefore, we give this property 8 / 10. *Disclaimer: This is our option and does constitute a recommendation or financial advice. Do your own research. *
- Price
- 7
- Condition
- 10
- Location
- 8
- Land
- 8
- Bedrooms
- 4
- Bathrooms
- 3
The heatmap indicates the level of crime in the area. The color of the heatmap indicates the crime severity and recency.
Metrics Year-on-Year
- Average area value
- 292,494.00 £Increased by 16.53 %
- Average area rental value
- 1,200.00 £/moIncreased by 6.76 %
- Est rental Yield
- 4.92 %Decreased by 8.38 %
- Crime Rate
- 0.00 %
Agent Activity
Sensible Move created the listing.
Nearby Schools
| Name | Type | Ofsted | Distance |
|---|---|---|---|
| Mary Dean'S Cofe Primary School | Voluntary Controlled School | Good | 0.82 KM |
| St Peter'S Rc Primary School | Academy Converter | Good | 0.90 KM |
| Brook Green Centre For Learning | Community Special School | Outstanding | 1.25 KM |
| Woodfield Primary School | Academy Converter | Good | 1.31 KM |
| Whitleigh Children'S Centre | Children's Centre | 1.45 KM |
Images
Nearby Streets
| Name | Average Price | Average Sqft | Distance |
|---|---|---|---|
| Allern Lane | £ 290,000 | 0 | 0.00 KM |
| Carbis Close | £ 131,250 | 0 | 0.00 KM |
| Trowbridge Close | £ 105,000 | 0 | 0.00 KM |
| Marldon Close | £ 130,000 | 0 | 0.00 KM |
| Blackthorn Close | £ 0 | 0 | 0.00 KM |
Nearby Transport
| Name | NLC | TLC | Distance |
|---|---|---|---|
| Bere Ferrers | 3550 | BFE | 3.52 KM |
| St Budeaux Victoria Road | 3592 | SBV | 4.23 KM |
| St Budeaux Ferry Road | 3590 | SBF | 4.23 KM |
| Keyham | 3571 | KEY | 4.79 KM |
| Dockyard (Devonport) | 3588 | DOC | 5.42 KM |
Nearby Listings
| Address | Price | Type | Score | Distance |
|---|---|---|---|---|
| Station Road, Tamerton Foliot, Plymouth, Devon, PL5 4LD | £ 750,000 | BUY | 8 / 10 | 0.00 KM |
| Station Road, Tamerton Foliot, Plymouth, Devon, PL5 4LD | £ 750,000 | BUY | 8 / 10 | 0.00 KM |
| Tamerton Foliot, Plymouth | £ 799,950 | BUY | 8 / 10 | 0.13 KM |
| Tamerton Foliot, Plymouth | £ 500,000 | BUY | Unknown | 0.13 KM |
| Tamerton Foliot, Plymouth | £ 625,000 | BUY | 7 / 10 | 0.17 KM |
Nearby Properties
| Address | Price | Distance |
|---|---|---|
| The Old Railway Station | £ 750,000 | 0.09 KM |
| Manor Mill | £ 445,000 | 0.09 KM |
| Brook House | £ 505,000 | 0.09 KM |
| Kumara | £ 360,000 | 0.09 KM |
| 21 Station Road | £ 325,000 | 0.09 KM |