EX
Newbury Road, Lytham St. Annes, FY8 1DH
By eXp UK
£ 375,000
Reviews
3 out of 5 stars
eXp UK says ..
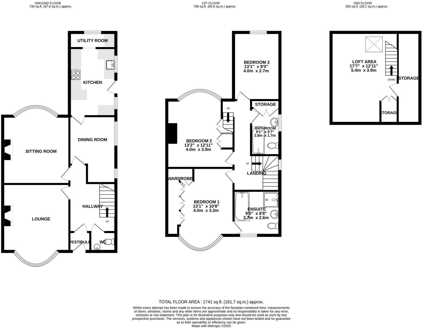
Incredible sized property offering 3 receptions, 3 double bedrooms, ground Floor WC and 2 bathrooms all within a stones throw of St. Annes sea front and amenities.
Property Oracle says ..
Therefore, we give this property 7 / 10. *Disclaimer: This is our option and does constitute a recommendation or financial advice. Do your own research. *
- Price
- 7
- Condition
- 7
- Location
- 8
- Land
- 7
- Bedrooms
- 3
- Bathrooms
- 2
The heatmap indicates the level of crime in the area. The color of the heatmap indicates the crime severity and recency.
Metrics Year-on-Year
- Average area value
- 150,833.00 £Decreased by 50.30 %
- Average area rental value
- 638.00 £/moDecreased by 21.91 %
- Est rental Yield
- 5.08 %Increased by 57.28 %
- Crime Rate
- 3.00 %Unchanged by 0.00 %
from 303,493.00 £
from 817.00 £/mo
from 3.23 %
from 3.00 %
Agent Activity
eXp UK created the listing.
Nearby Schools
| Name | Type | Ofsted | Distance |
|---|---|---|---|
| Aks Lytham | Other Independent School | 0.63 KM | |
| St Annes On Sea St Thomas' Church Of England Primary School | Voluntary Aided School | Good | 1.00 KM |
| Our Lady Star Of The Sea Catholic Primary School | Voluntary Aided School | Outstanding | 1.16 KM |
| Oak Tree Children'S Centre | Children's Centre | 1.48 KM | |
| The St Anne'S College Grammar School | Other Independent School | Good | 1.52 KM |
Images
Nearby Streets
| Name | Average Price | Average Sqft | Distance |
|---|---|---|---|
| Brown Street | £ 475,000 | 0 | 0.00 KM |
| The Royals | £ 346,238 | 0 | 0.00 KM |
| Bolton Street | £ 119,000 | 0 | 0.00 KM |
| Gleneagles | £ 280,000 | 0 | 0.00 KM |
| Leamington Road | £ 304,975 | 0 | 0.00 KM |
Nearby Transport
| Name | NLC | TLC | Distance |
|---|---|---|---|
| St Annes-On-The-Sea | 2672 | SAS | 1.90 KM |
| Ansdell And Fairhaven | 2662 | AFV | 2.49 KM |
| Squires Gate | 2666 | SQU | 5.45 KM |
| Lytham | 2670 | LTM | 5.70 KM |
| Blackpool Pleasure Beach | 2738 | BPB | 6.59 KM |
Nearby Listings
| Address | Price | Type | Score | Distance |
|---|---|---|---|---|
| Newbury Road, Lytham St. Annes, FY8 1DH | £ 375,000 | BUY | 7 / 10 | 0.00 KM |
| Newbury Road, Lytham St. Annes, FY8 | £ 495,000 | BUY | 7 / 10 | 0.05 KM |
| Newbury Road, Lytham St. Annes | £ 535,000 | BUY | Unknown | 0.06 KM |
| The Boulevard, Lytham St. Annes, FY8 | £ 385,000 | BUY | 5 / 10 | 0.07 KM |
| The Boulevard, Lytham St. Annes, Lancashire | £ 599,950 | BUY | 7 / 10 | 0.09 KM |
Nearby Properties
| Address | Price | Distance |
|---|---|---|
| 2 Denford Avenue | £ 360,000 | 0.05 KM |
| 54 Newbury Road | £ 250,000 | 0.07 KM |
| 55 Newbury Road | £ 200,000 | 0.07 KM |
| 35 Newbury Road | £ 280,000 | 0.07 KM |
| 46 Newbury Road | £ 360,000 | 0.07 KM |