BR
London Road, Langley, Hitchin
By Bryan Bishop & Partners
£ 1,750,000
Reviews
3 out of 5 stars
Bryan Bishop & Partners says ..
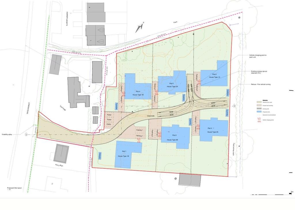
6 Unit Scheme - SOLD via our discreet marketing service, if you are thinking of buying or selling a similar prospect, make sure you register your interest with Bryan Bishop and Partners.
Property Oracle says ..
Therefore, we give this property 7 / 10. *Disclaimer: This is our option and does constitute a recommendation or financial advice. Do your own research. *
- Price
- 6
- Condition
- 0
- Location
- 7
- Land
- 8
- Bedrooms
- 3
- Bathrooms
- 2
The heatmap indicates the level of crime in the area. The color of the heatmap indicates the crime severity and recency.
Metrics Year-on-Year
- Average area value
- 507,692.00 £Decreased by 14.14 %
- Average area rental value
- 1,925.00 £/moDecreased by 6.28 %
- Est rental Yield
- 4.55 %Increased by 9.11 %
- Crime Rate
- 0.00 %
from 591,271.00 £
from 2,054.00 £/mo
from 4.17 %
from 0.00 %
Agent Activity
Bryan Bishop & Partners created the listing.
Nearby Schools
| Name | Type | Ofsted | Distance |
|---|---|---|---|
| S1 Bridge Road Family Centre | Children's Centre | 3.46 KM | |
| Woolenwick Junior School | Community School | Requires improvement | 3.50 KM |
| Woolenwick Infant And Nursery School | Community School | Outstanding | 3.50 KM |
| Codicote Church Of England Primary School | Voluntary Controlled School | Outstanding | 3.94 KM |
| North Hertfordshire College | Further Education | Good | 4.08 KM |
Images
Nearby Streets
| Name | Average Price | Average Sqft | Distance |
|---|---|---|---|
| Homefield Lane | £ 0 | 0 | 0.00 KM |
| Hitchin Lane | £ 0 | 0 | 0.00 KM |
Nearby Transport
| Name | NLC | TLC | Distance |
|---|---|---|---|
| Stevenage | 6092 | SVG | 3.60 KM |
| Knebworth | 6088 | KBW | 5.48 KM |
| Welwyn North | 6096 | WLW | 8.12 KM |
| Hitchin | 6086 | HIT | 8.44 KM |
| Welwyn Garden City | 6183 | WGC | 9.74 KM |
Nearby Listings
| Address | Price | Type | Score | Distance |
|---|---|---|---|---|
| London Road, Langley, Hitchin | £ 1,750,000 | BUY | 7 / 10 | 0.00 KM |
| Hall Farmhouse, Langley Village | £ 1,250,000 | BUY | 7 / 10 | 0.49 KM |
| Village Street Langley | £ 625,000 | BUY | Unknown | 0.52 KM |
| Langley Lane, Langley, Hitchin, SG4 | £ 1,100,000 | BUY | 8 / 10 | 0.52 KM |
| Langley Lane, Langley, Hitchin, Hertfordshire | £ 850,000 | BUY | 7 / 10 | 0.52 KM |
Nearby Properties
| Address | Price | Distance |
|---|---|---|
| Woodview | £ 893,000 | 0.48 KM |
| South Barn | £ 1,150,000 | 0.48 KM |
| West Barn | £ 1,000,000 | 0.48 KM |
| Holmefield House | £ 850,000 | 0.48 KM |
| Caberfeigh | £ 483,000 | 0.51 KM |