Ocean says ..
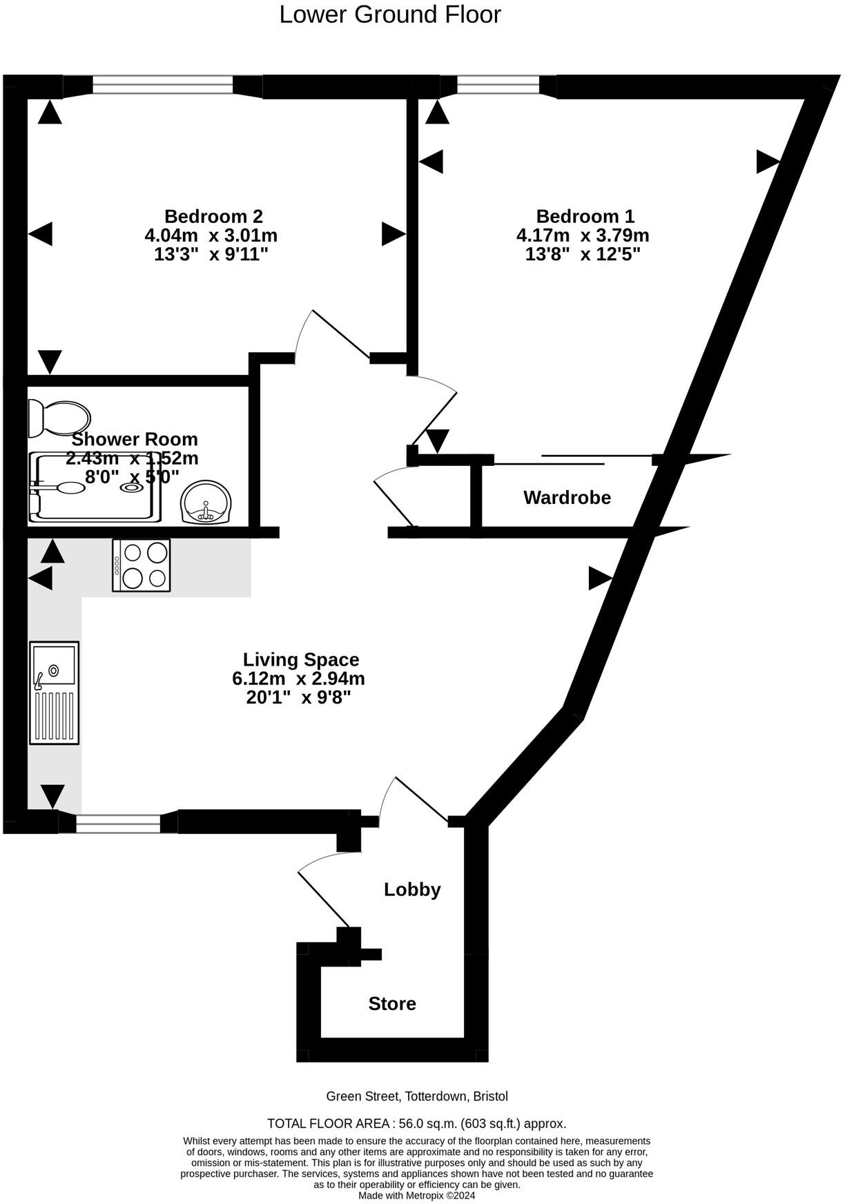
Occupying a spot in the heart of Totterdown, this two bedroom flat on Green Street is available to buy with the huge bonus of no onward chain!
Property Oracle says ..
The property is a 2-bedroom flat located in Totterdown, Bristol. It benefits from a convenient location with good transport links and access to amenities, including highly-rated schools. The flat appears to be in excellent condition with modern fixtures and fittings. The list price is significantly below the average for the area, potentially representing good value, however, the property’s size is unknown, preventing a conclusive assessment of its price.
Therefore, we give this property 6 / 10. *Disclaimer: This is our option and does constitute a recommendation or financial advice. Do your own research. *
- Price
- 8
- Condition
- 9
- Location
- 0
- Land
- 3
- Bedrooms
- 2
- Bathrooms
- 1
- Lot (est)
- 603.00
The heatmap indicates the level of crime in the area. The color of the heatmap indicates the crime severity and recency.
Metrics Year-on-Year
- Average area value
- 290,625.00 £Decreased by 26.53 %
- Average area rental value
- 1,590.00 £/moDecreased by 1.73 %
- Est rental Yield
- 6.57 %Increased by 33.81 %
- Crime Rate
- 6.00 %Unchanged by 0.00 %
Agent Activity
Ocean created the listing.
Nearby Schools
| Name | Type | Ofsted | Distance |
|---|---|---|---|
| Lpw Independent School | Other Independent School | Good | 0.94 KM |
| St Mary Redcliffe And Temple School | Voluntary Aided School | Outstanding | 0.96 KM |
| Hillcrest Primary School | Community School | Good | 0.97 KM |
| St Mary Redcliffe Church Of England Primary School | Academy Sponsor Led | 1.01 KM | |
| Redcliffe Children'S Centre And Maintained Nursery | Children's Centre | 1.04 KM |
Images
Nearby Streets
| Name | Average Price | Average Sqft | Distance |
|---|---|---|---|
| Bellevue Road | £ 39,500 | 0 | 0.00 KM |
| Vernon Street | £ 0 | 0 | 0.00 KM |
| Frederick Street | £ 470,000 | 0 | 0.00 KM |
| Clarence Road | £ 0 | 0 | 0.00 KM |
| Crowndale Road | £ 485,000 | 0 | 0.00 KM |
Nearby Transport
| Name | NLC | TLC | Distance |
|---|---|---|---|
| Bristol Temple Meads | 3231 | BRI | 0.70 KM |
| Bedminster | 3245 | BMT | 1.60 KM |
| Lawrence Hill | 3225 | LWH | 2.40 KM |
| Montpelier | 3203 | MTP | 2.98 KM |
| Stapleton Road | 3250 | SRD | 3.12 KM |
Nearby Listings
| Address | Price | Type | Score | Distance |
|---|---|---|---|---|
| Green Street, Totterdown, Bristol | £ 240,000 | BUY | 6 / 10 | 0.00 KM |
| Henry Street, Totterdown | £ 525,000 | BUY | 6 / 10 | 0.02 KM |
| Henry Street, Totterdown, Bristol | £ 475,000 | BUY | 7 / 10 | 0.03 KM |
| Henry Street, Totterdown | £ 219,995 | BUY | 5 / 10 | 0.03 KM |
| Henry Street, Totterdown | £ 435,000 | BUY | 7 / 10 | 0.04 KM |
Nearby Properties
| Address | Price | Distance |
|---|---|---|
| 19 Henry Street | £ 371,000 | 0.04 KM |
| 17 Henry Street | £ 215,000 | 0.04 KM |
| 20 Henry Street | £ 353,000 | 0.04 KM |
| 14 Henry Street | £ 460,000 | 0.04 KM |
| 10 Henry Street | £ 400,000 | 0.04 KM |