Sutton Field, Whitehill, Hampshire, GU35
By Bushnell Porter
£ 280,000
Reviews
2 out of 5 stars
Bushnell Porter says ..
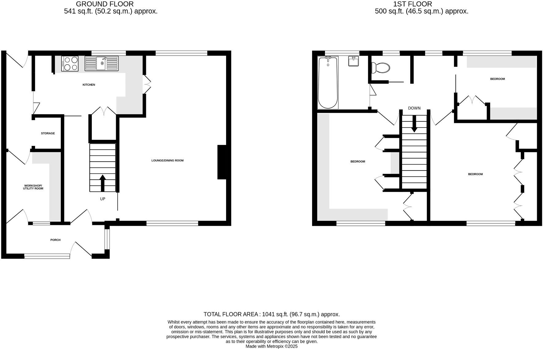
A three bedroom terraced house with a south-facing rear garden; situated in an established residential road and requiring total updating throughout. Early viewing highly recommended by the vendor's agents.
Property Oracle says ..
This three-bedroom terraced house located in Whitehill, Hampshire presents a mixed bag for potential buyers. The location scores positively; relatively close to well-regarded schools and train stations offering convenient access to commuting options. However, the property’s condition requires immediate attention. The photos show significant wear and tear, outdated fixtures, and carpets that clearly require replacing. The need for a full-scale renovation will be a critical factor in the purchase price justification. While the £280,000 price tag seems competitive when compared to similar properties in Sutton Field, prospective buyers must carefully budget for the substantial renovation costs to turn it into a comfortable modern home. The garden is present, but appears to be small and may require landscaping. Overall, this property will appeal to buyers willing and able to undertake a full refurbishment project and comfortable with the location.
Therefore, we give this property 5 / 10. *Disclaimer: This is our option and does constitute a recommendation or financial advice. Do your own research. *
- Price
- 7
- Condition
- 4
- Location
- 7
- Land
- 3
- Bedrooms
- 3
- Bathrooms
- 1
- Sqft (est)
- 1,041.00
The heatmap indicates the level of crime in the area. The color of the heatmap indicates the crime severity and recency.
Metrics Year-on-Year
- Average area value
- 496,325.00 £Increased by 31.41 %
- Est sale value
- 242,553.00 £Decreased by 39.64 %
- Average area rental value
- 1,738.00 £/moIncreased by 35.46 %
- Est letting value
- 0.00 £/moDecreased by 100.00 %
- Est rental Yield
- 4.20 %Increased by 2.94 %
- Crime Rate
- 21.00 %Unchanged by 0.00 %
Agent Activity
Bushnell Porter created the listing.
Nearby Schools
| Name | Type | Ofsted | Distance |
|---|---|---|---|
| Woodlea Primary School | Community School | Good | 1.18 KM |
| St Matthew'S Church Of England Aided Primary School | Voluntary Aided School | Good | 1.49 KM |
| Bordon Infant School | Community School | Good | 1.55 KM |
| Chase Children'S Centre | Children's Centre | 1.59 KM | |
| Bordon Junior School | Academy Converter | 1.63 KM |
Images
Nearby Streets
| Name | Average Price | Average Sqft | Distance |
|---|---|---|---|
| Lewis Close | £ 0 | 0 | 0.00 KM |
| Peel Close | £ 0 | 0 | 0.00 KM |
| The Maltings | £ 0 | 0 | 0.00 KM |
| Pelham Close | £ 0 | 0 | 0.00 KM |
| Wells Close | £ 265,000 | 0 | 0.00 KM |
Nearby Transport
| Name | NLC | TLC | Distance |
|---|---|---|---|
| Liss | 5635 | LIS | 7.03 KM |
| Liphook | 5634 | LIP | 8.52 KM |
| Bentley (Hampshire) | 5624 | BTY | 8.74 KM |
Nearby Listings
| Address | Price | Type | Score | Distance |
|---|---|---|---|---|
| Sutton Field, Whitehill, Hampshire, GU35 | £ 280,000 | BUY | 5 / 10 | 0.00 KM |
| SUTTON FIELD, WHITEHILL, BORDON, HAMPSHIRE, GU35 | £ 250,000 | BUY | 6 / 10 | 0.01 KM |
| Sutton Field, Bordon, GU35 | £ 240,000 | BUY | 7 / 10 | 0.01 KM |
| Sutton Field, Whitehill, Bordon, Hampshire | £ 180,000 | BUY | 5 / 10 | 0.05 KM |
| Sutton Field, Whitehill, Hampshire, GU35 | £ 285,000 | BUY | 6 / 10 | 0.05 KM |
Nearby Properties
| Address | Price | Distance |
|---|---|---|
| 17 Sutton Field | £ 220,000 | 0.01 KM |
| 8 Sutton Field | £ 198,500 | 0.01 KM |
| 14 Sutton Field | £ 277,500 | 0.01 KM |
| 9 Sutton Field | £ 161,000 | 0.01 KM |
| 12 Sutton Field | £ 239,950 | 0.01 KM |