Rampton Baseley says ..
A strikingly handsome five-bedroom, double fronted, detached family house set on this desirable tree-lined street, moments from Tooting Bec common.
Property Oracle says ..
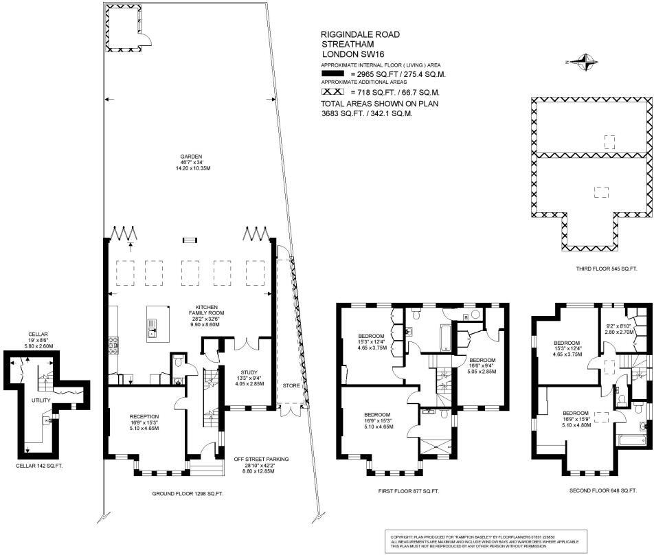
This is a substantial detached property located on Riggindale Road, in the St Leonard’s area of Lambeth, London. The house offers five bedrooms and three bathrooms, with a generous 3,683 sq ft of living space. The property is conveniently located near local schools and transportation links, including Streatham railway station. The interior of the house is modern and well-maintained, with a contemporary design. The property also benefits from a well-kept garden with a lawn and patio area. While the asking price is high for the area, the size, condition, and location of the property justify the price.
Therefore, we give this property 7 / 10. *Disclaimer: This is our option and does constitute a recommendation or financial advice. Do your own research. *
- Price
- 6
- Condition
- 9
- Location
- 8
- Land
- 7
- Bedrooms
- 5
- Bathrooms
- 3
- Sqft (est)
- 3,683.00
The heatmap indicates the level of crime in the area. The color of the heatmap indicates the crime severity and recency.
Metrics Year-on-Year
- Average area value
- 487,285.00 £Decreased by 7.65 %
- Est sale value
- 1,874,647.00 £Increased by 21.19 %
- Average area rental value
- 1,920.00 £/moIncreased by 13.27 %
- Est letting value
- 7,366.00 £/moIncreased by 100.00 %
- Est rental Yield
- 4.73 %Increased by 22.86 %
- Crime Rate
- 2.00 %Unchanged by 0.00 %
Agent Activity
Rampton Baseley created the listing.
Nearby Schools
| Name | Type | Ofsted | Distance |
|---|---|---|---|
| St Leonard'S Church Of England Primary School | Academy Converter | 0.27 KM | |
| Fayland Children'S Centre | Children's Centre | 0.57 KM | |
| Streatham & Clapham High School | Other Independent School | 0.74 KM | |
| Streatham Hub Children'S Centre | Children's Centre | 0.84 KM | |
| Goldfinch Primary School | Academy Sponsor Led | 0.88 KM |
Images
Nearby Streets
| Name | Average Price | Average Sqft | Distance |
|---|---|---|---|
| Tooting Bec Road | £ 400,000 | 0 | 0.00 KM |
| Tooting Bec Road | £ 371,429 | 0 | 0.00 KM |
| Bedford Hill | £ 1,600,000 | 0 | 0.00 KM |
| Barrow Road | £ 0 | 0 | 0.00 KM |
| Sunnyhill Road | £ 325,000 | 0 | 0.00 KM |
Nearby Transport
| Name | NLC | TLC | Distance |
|---|---|---|---|
| Streatham | 5383 | STE | 0.73 KM |
| Streatham Common | 5384 | SRC | 1.12 KM |
| Streatham Hill | 5435 | SRH | 1.56 KM |
| Balham | 5399 | BAL | 2.31 KM |
| Norbury | 5428 | NRB | 2.57 KM |
Nearby Listings
| Address | Price | Type | Score | Distance |
|---|---|---|---|---|
| Riggindale Road, SW16 | £ 2,250,000 | BUY | 7 / 10 | 0.00 KM |
| Riggindale Road, London, SW16 | £ 600,000 | BUY | 6 / 10 | 0.03 KM |
| Riggindale Road, Streatham | £ 395,000 | BUY | 6 / 10 | 0.05 KM |
| Riggindale Road, Streatham | £ 2,250,000 | BUY | 8 / 10 | 0.05 KM |
| Riggindale Road, Tooting | £ 375,000 | BUY | 5 / 10 | 0.06 KM |
Nearby Properties
| Address | Price | Distance |
|---|---|---|
| 1a Riggindale Road | £ 555,000 | 0.02 KM |
| 7a Riggindale Road | £ 102,000 | 0.02 KM |
| 5 Riggindale Road | £ 1,515,000 | 0.02 KM |
| 9 Riggindale Road | £ 595,000 | 0.02 KM |
| 7b Riggindale Road | £ 186,000 | 0.02 KM |