Falcon Court, Chain House Lane, PR4
By Moving Works
£ 230,000
Reviews
3 out of 5 stars
Moving Works says ..
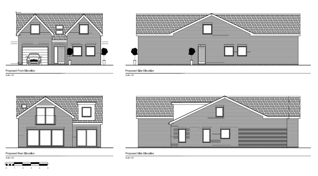
Have you been dreaming of completing your own self build? South facing plot with planning for 3,550 sq ft family home.
Property Oracle says ..
The property is a plot of land located on Chain House Lane in South Ribble, Lancashire. The average price per square foot in the area is £769. The listing price for this land is £230,000. Nearby listings for land on the same street are priced higher, at £300,000 and £340,000. The average house price in the area is £472,750. There are several schools located within a few kilometers of the property, including Kingsfold Primary School and Penwortham Broad Oak Primary School, both rated ‘Good’ by Ofsted. Lostock Hall train station is 3.17 KM away.
Therefore, we give this property 7 / 10. *Disclaimer: This is our option and does constitute a recommendation or financial advice. Do your own research. *
- Price
- 8
- Condition
- 0
- Location
- 7
- Land
- 6
- Bedrooms
- 0
- Bathrooms
- 0
- Sqft (est)
- 1,464.79
The heatmap indicates the level of crime in the area. The color of the heatmap indicates the crime severity and recency.
Metrics Year-on-Year
- Average area value
- 472,750.00 £Decreased by 21.88 %
- Est sale value
- 1,126,423.51 £Increased by 27.74 %
- Average area rental value
- 1,418.00 £/moDecreased by 35.04 %
- Est letting value
- 2,929.58 £/moUnchanged by 0.00 %
- Est rental Yield
- 3.60 %Decreased by 16.86 %
- Crime Rate
- 5.00 %Unchanged by 0.00 %
Agent Activity
Moving Works created the listing.
Nearby Schools
| Name | Type | Ofsted | Distance |
|---|---|---|---|
| Kingsfold Children'S Centre | Children's Centre | 1.38 KM | |
| Kingsfold Primary School | Community School | Good | 1.49 KM |
| Penwortham Broad Oak Primary School | Foundation School | Good | 1.74 KM |
| Farington Moss St. Paul'S C.E. Primary School | Voluntary Aided School | Good | 1.86 KM |
| Penwortham Middleforth Church Of England Primary School | Voluntary Controlled School | Good | 2.14 KM |
Images
Nearby Streets
| Name | Average Price | Average Sqft | Distance |
|---|---|---|---|
| Moss Lane | £ 950,000 | 0 | 0.00 KM |
| A582 | £ 296,995 | 0 | 0.00 KM |
| Goldcrest Avenue | £ 190,000 | 0 | 0.00 KM |
| Wood End | £ 0 | 0 | 0.00 KM |
| Oldfield | £ 200,000 | 0 | 0.00 KM |
Nearby Transport
| Name | NLC | TLC | Distance |
|---|---|---|---|
| Lostock Hall | 2689 | LOH | 3.17 KM |
| Preston (Lancs) | 2753 | PRE | 3.93 KM |
| Leyland | 2710 | LEY | 4.13 KM |
| Bamber Bridge | 2561 | BMB | 6.13 KM |
| Buckshaw Parkway | 7501 | BSV | 8.19 KM |
Nearby Listings
| Address | Price | Type | Score | Distance |
|---|---|---|---|---|
| Falcon Court, Chain House Lane, PR4 | £ 230,000 | BUY | 7 / 10 | 0.00 KM |
| Falcon Court, Chain House Lane, PR4 | £ 300,000 | BUY | Unknown | 0.00 KM |
| Falcon Court, Preston, Lancashire | £ 425,000 | BUY | Unknown | 0.04 KM |
| Chain House Lane, Whitestake, PR4 | £ 550,000 | BUY | 5 / 10 | 0.05 KM |
| Chain House Lane, Whitestake, Preston, PR4 | £ 183,000 | BUY | 6 / 10 | 0.10 KM |
Nearby Properties
| Address | Price | Distance |
|---|---|---|
| 51 Chain House Lane | £ 340,000 | 0.09 KM |
| 58 Chain House Lane | £ 230,000 | 0.09 KM |
| 42 Chain House Lane | £ 135,000 | 0.09 KM |
| 72 Chain House Lane | £ 250,000 | 0.09 KM |
| 59 Chain House Lane | £ 198,000 | 0.09 KM |