BidX1 says ..
N/A
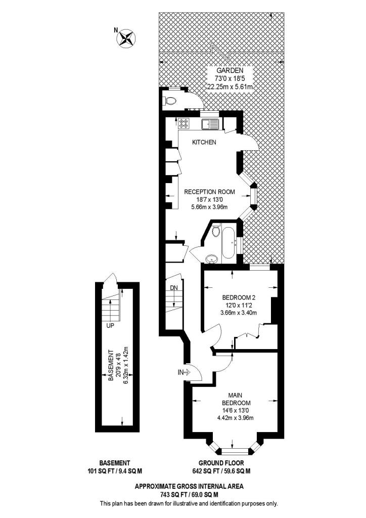
Property Oracle says ..
Therefore, we give this property 6 / 10. *Disclaimer: This is our option and does constitute a recommendation or financial advice. Do your own research. *
- Price
- 7
- Condition
- 6
- Location
- 7
- Land
- 7
- Bedrooms
- 2
- Bathrooms
- 1
The heatmap indicates the level of crime in the area. The color of the heatmap indicates the crime severity and recency.
Metrics Year-on-Year
- Average area value
- 1,268,750.00 £Increased by 29.81 %
- Average area rental value
- 2,317.00 £/moIncreased by 19.00 %
- Est rental Yield
- 2.19 %Decreased by 8.37 %
- Crime Rate
- 3.00 %Unchanged by 0.00 %
from 977,391.00 £
from 1,947.00 £/mo
from 2.39 %
from 3.00 %
Agent Activity
BidX1 created the listing.
Nearby Schools
| Name | Type | Ofsted | Distance |
|---|---|---|---|
| Paxton Academy Sports And Science | Free Schools | Serious Weaknesses | 0.43 KM |
| Gonville Academy | Academy Converter | Good | 0.47 KM |
| West Thornton Primary School | Academy Sponsor Led | 0.74 KM | |
| Winterbourne Boys' Academy | Academy Sponsor Led | Good | 0.80 KM |
| Winterbourne Children'S Centre | Children's Centre Linked Site | 0.80 KM |
Images
Nearby Streets
| Name | Average Price | Average Sqft | Distance |
|---|---|---|---|
| Malvern Road | £ 0 | 0 | 0.00 KM |
| Kingswood Avenue | £ 475,000 | 0 | 0.00 KM |
| Oaklands Avenue | £ 352,500 | 0 | 0.00 KM |
| York Road | £ 0 | 0 | 0.00 KM |
| St Christopher's Gardens | £ 0 | 0 | 0.00 KM |
Nearby Transport
| Name | NLC | TLC | Distance |
|---|---|---|---|
| Norbury | 5428 | NRB | 2.07 KM |
| Thornton Heath | 5388 | TTH | 2.11 KM |
| West Croydon | 5411 | WCY | 2.41 KM |
| Waddon | 5392 | WDO | 2.87 KM |
| Selhurst | 5434 | SRS | 3.35 KM |
Nearby Listings
| Address | Price | Type | Score | Distance |
|---|---|---|---|---|
| Gonville Road, Thornton Heath, CR7 | £ 250,000 | BUY | 6 / 10 | 0.00 KM |
| Trafford Road, Thornton Heath, CR7 | £ 500,000 | BUY | 6 / 10 | 0.04 KM |
| Trafford Road, Thornton Heath, CR7 | £ 250,000 | BUY | Unknown | 0.04 KM |
| Gonville Road, Thornton Heath, CR7 | £ 325,000 | BUY | 6 / 10 | 0.05 KM |
| Trafford Road, Thornton Heath, CR7 | £ 500,000 | BUY | 6 / 10 | 0.07 KM |
Nearby Properties
| Address | Price | Distance |
|---|---|---|
| 14 Gonville Road | £ 107,000 | 0.05 KM |
| 12 Gonville Road | £ 247,950 | 0.05 KM |
| 18 Gonville Road | £ 442,500 | 0.05 KM |
| 30b Gonville Road | £ 101,000 | 0.05 KM |
| 17 Gonville Road | £ 61,500 | 0.07 KM |