Allen Heritage says ..
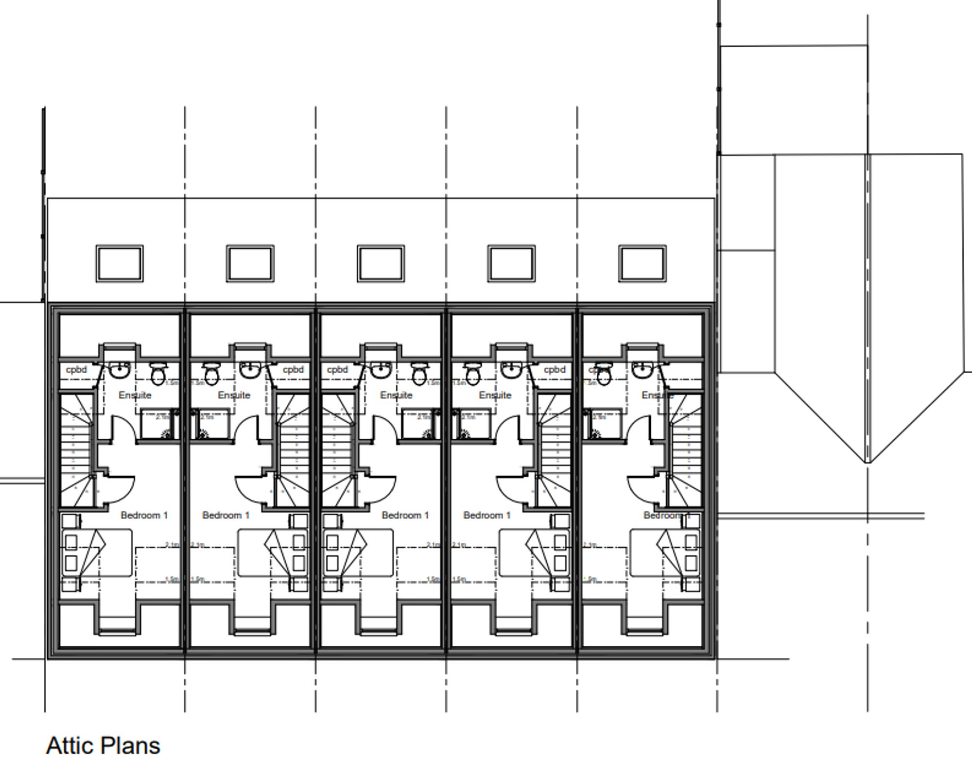
Outline and Reserved Matters permission has been granted for the demolition of the existing building and the construction of five terraced dwellings, each arranged over three storeys.
Property Oracle says ..
Therefore, we give this property 4 / 10. *Disclaimer: This is our option and does constitute a recommendation or financial advice. Do your own research. *
- Price
- 2
- Condition
- 2
- Location
- 7
- Land
- 5
- Bedrooms
- 0
- Bathrooms
- 0
- Sqft (est)
- 392.92
The heatmap indicates the level of crime in the area. The color of the heatmap indicates the crime severity and recency.
Metrics Year-on-Year
- Average area value
- 467,833.00 £Increased by 3.56 %
- Est sale value
- 288,796.20 £Increased by 86.55 %
- Average area rental value
- 1,383.00 £/moIncreased by 4.30 %
- Est letting value
- 785.84 £/moIncreased by 100.00 %
- Est rental Yield
- 3.55 %Increased by 0.85 %
- Crime Rate
- 20.00 %Unchanged by 0.00 %
from 451,737.00 £
from 154,810.48 £
from 1,326.00 £/mo
from 392.92 £/mo
from 3.52 %
from 20.00 %
Agent Activity
Allen Heritage created the listing.
Nearby Schools
| Name | Type | Ofsted | Distance |
|---|---|---|---|
| Whitstable Junior School | Foundation School | Good | 0.40 KM |
| St Alphege Church Of England Infant School | Voluntary Controlled School | Good | 0.44 KM |
| Whitstable And Seasalter Endowed Church Of England Junior School | Voluntary Aided School | Outstanding | 0.66 KM |
| Isp Polar Re Start Centre | Other Independent Special School | 0.87 KM | |
| Joy Lane Children'S Centre | Children's Centre | 0.94 KM |
Images
Nearby Streets
| Name | Average Price | Average Sqft | Distance |
|---|---|---|---|
| Orchard Grove | £ 550,000 | 0 | 0.00 KM |
| Portway | £ 600,000 | 0 | 0.00 KM |
| Freeman's Yard | £ 0 | 0 | 0.00 KM |
| Alexandra Road (CW54A) | £ 837,500 | 0 | 0.00 KM |
| Old Millfield Works | £ 0 | 0 | 0.00 KM |
Nearby Transport
| Name | NLC | TLC | Distance |
|---|---|---|---|
| Whitstable | 5196 | WHI | 1.08 KM |
| Chestfield And Swalecliffe | 5200 | CSW | 4.71 KM |
| Canterbury West | 5007 | CBW | 9.40 KM |
Nearby Listings
| Address | Price | Type | Score | Distance |
|---|---|---|---|---|
| Whitstable | £ 950,000 | BUY | 4 / 10 | 0.00 KM |
| Essex Street, Whitstable, CT5 | £ 499,995 | BUY | 7 / 10 | 0.00 KM |
| Essex Street, Whitstable, CT5 | £ 499,995 | BUY | 6 / 10 | 0.00 KM |
| Essex Street, Whitstable, CT5 | £ 499,995 | BUY | 7 / 10 | 0.00 KM |
| Essex Street, Whitstable, CT5 | £ 499,995 | BUY | 7 / 10 | 0.00 KM |
Nearby Properties
| Address | Price | Distance |
|---|---|---|
| 21 Essex Street | £ 196,000 | 0.01 KM |
| 71 Essex Street | £ 237,500 | 0.01 KM |
| 23 Essex Street | £ 373,200 | 0.01 KM |
| 24 Essex Street | £ 205,000 | 0.01 KM |
| 63 Essex Street | £ 183,000 | 0.01 KM |