Christian Reid says ..
3 Bedroom Family Home | Large Kitchen/Breakfast Room | Living Room Opening Directly into The Rear Garden | Downstairs WC | Pretty Low Maintenance Garden With Rear Access Gate | Family Bathroom | Good Decorative Order Throughout | Small Quiet Cul De Sac Just Off From The High Street | Direct Ac...
Property Oracle says ..
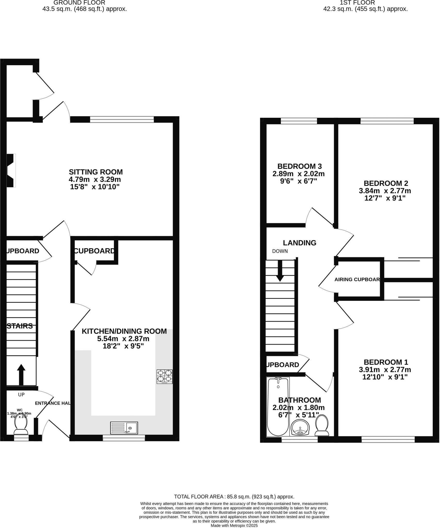
This property is a 3-bedroom house located in Bramley, Guildford, Surrey. The area benefits from being close to several schools, including Arun Court School (Good Ofsted rating) and Bramley Cofe Aided Infant School and Nursery (Outstanding Ofsted rating). Transportation links are also convenient, with Shalford (Surrey) train station being approximately 2.58km away. The property itself appears well-maintained from the provided images, with a neat garden. The kitchen and living areas seem spacious and in good condition. While the list price is below the average price for the area, it is important to note that the average property size in the area is significantly larger (1450 sqft vs 923.54 sqft). The lack of plot size information makes it difficult to accurately assess the land value. Considering the property’s condition, location, and size, the list price may be reasonable, but further investigation into comparable properties of similar size in the immediate vicinity would be beneficial.
Therefore, we give this property 6 / 10. *Disclaimer: This is our option and does constitute a recommendation or financial advice. Do your own research. *
- Price
- 6
- Condition
- 8
- Location
- 7
- Land
- 6
- Bedrooms
- 3
- Bathrooms
- 1
- Sqft (est)
- 923.54
The heatmap indicates the level of crime in the area. The color of the heatmap indicates the crime severity and recency.
Metrics Year-on-Year
- Average area value
- 708,738.00 £Decreased by 18.22 %
- Est sale value
- 442,375.66 £Decreased by 9.96 %
- Average area rental value
- 3,723.00 £/moIncreased by 55.19 %
- Est letting value
- 1,847.08 £/moIncreased by 100.00 %
- Est rental Yield
- 6.30 %Increased by 89.76 %
- Crime Rate
- 42.00 %Unchanged by 0.00 %
Agent Activity
Christian Reid created the listing.
Nearby Schools
| Name | Type | Ofsted | Distance |
|---|---|---|---|
| Arun Court | Other Independent Special School | Good | 0.11 KM |
| St Catherine'S School | Other Independent School | 0.32 KM | |
| Bramley Cofe Aided Infant School And Nursery | Voluntary Aided School | Outstanding | 0.44 KM |
| Gosden House School | Community Special School | Outstanding | 1.31 KM |
| Bramley Oak Academy | Academy Special Sponsor Led | 1.75 KM |
Images
Nearby Streets
| Name | Average Price | Average Sqft | Distance |
|---|---|---|---|
| Tannery Lane | £ 1,275,000 | 0 | 0.00 KM |
| The Close | £ 0 | 0 | 0.00 KM |
| The Common | £ 0 | 0 | 0.00 KM |
Nearby Transport
| Name | NLC | TLC | Distance |
|---|---|---|---|
| Shalford (Surrey) | 5638 | SFR | 2.58 KM |
| Chilworth | 5296 | CHL | 4.20 KM |
| London Road (Guildford) | 5632 | LRD | 5.32 KM |
| Farncombe | 5643 | FNC | 5.37 KM |
| Guildford | 5631 | GLD | 5.51 KM |
Nearby Listings
| Address | Price | Type | Score | Distance |
|---|---|---|---|---|
| Windrush Close, Guildford | £ 425,000 | BUY | 6 / 10 | 0.00 KM |
| Windrush Close, Bramley, Guildford, Surrey, GU5 | £ 450,000 | BUY | Unknown | 0.00 KM |
| Brambles Park, Bramley, Guildford, GU5 0BA | £ 950,000 | BUY | 8 / 10 | 0.11 KM |
| Windrush Close, Bramley, GU5 | £ 475,000 | BUY | 7 / 10 | 0.11 KM |
| Rectory Close, Bramley | £ 425,000 | BUY | 7 / 10 | 0.14 KM |
Nearby Properties
| Address | Price | Distance |
|---|---|---|
| 17 Windrush Close | £ 410,000 | 0.01 KM |
| 12 Windrush Close | £ 520,000 | 0.01 KM |
| 28 Windrush Close | £ 225,000 | 0.01 KM |
| 16 Windrush Close | £ 350,000 | 0.01 KM |
| 29 Windrush Close | £ 244,000 | 0.01 KM |