Cheam Mansions, Station Way, Cheam, Sutton, SM3
By Winkworth
£ 375,000
Reviews
2 out of 5 stars
Winkworth says ..
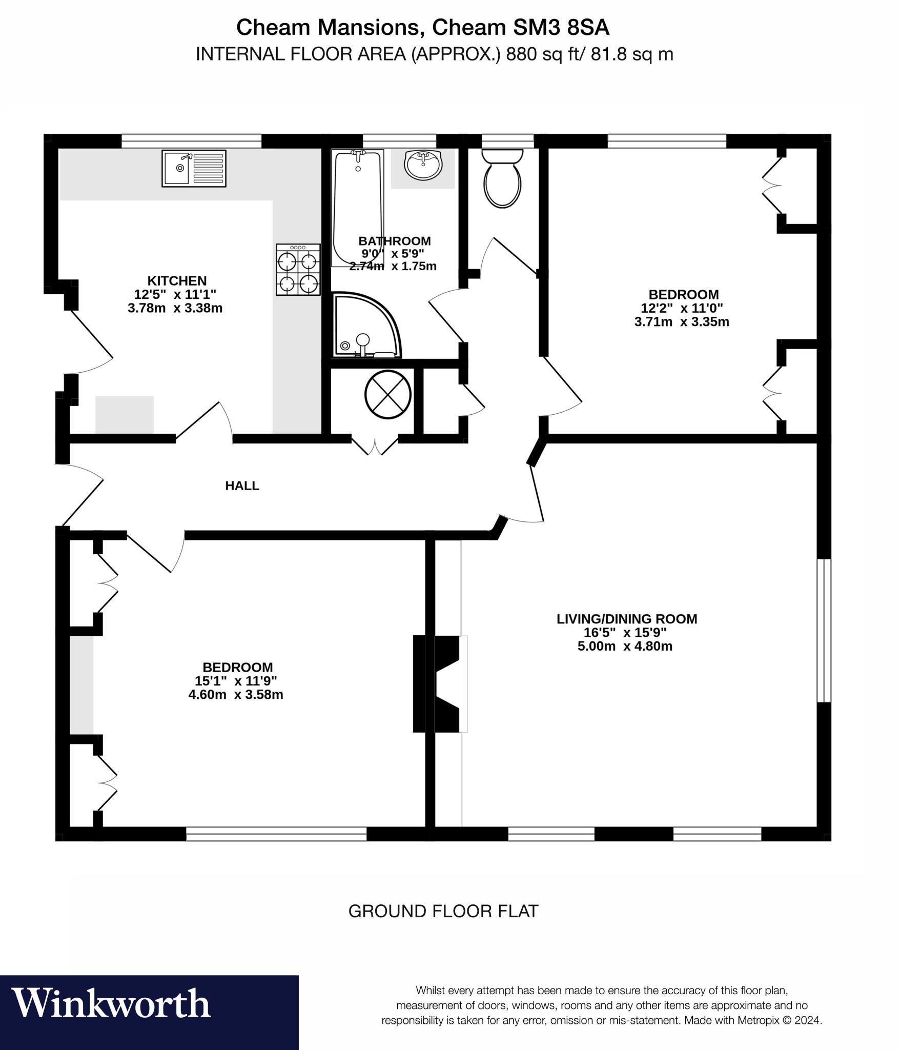
A spacious two double bedroom ground floor flat located just a few moments from Cheam Village high street and Cheam railway station which provides commuter services into London Victoria and London Bridge. The property offers lots of potential and is set over 880sq ft within one of the area&rsquo...
Property Oracle says ..
This two-bedroom, second-floor apartment at Cheam Mansions in Cheam, Sutton, presents a mixed bag of advantages and disadvantages. Its key strength lies in its location, boasting proximity to Cheam station for easy commutes to central London, and the amenities and good schools of Cheam Village. The apartment’s size at approximately 880 sq ft is a significant plus, offering spacious accommodation for a two-bedroom flat. However, the property’s condition requires some attention. While structurally sound, cosmetic updates are needed to update the kitchen, bathroom, and flooring, possibly driving up purchase costs. The lack of a private garden is another aspect worth considering. The price, while reasonable given the size and location, does not represent outstanding value relative to other comparable properties in Cheam, potentially depending on condition and specific location within Cheam Mansions. Potential buyers must weigh the costs of necessary renovations against the advantages of the location and size. The communal outside space with grass is a bonus.
Therefore, we give this property 5 / 10. *Disclaimer: This is our option and does constitute a recommendation or financial advice. Do your own research. *
- Price
- 7
- Condition
- 5
- Location
- 7
- Land
- 1
- Bedrooms
- 2
- Bathrooms
- 1
- Sqft (est)
- 880.49
The heatmap indicates the level of crime in the area. The color of the heatmap indicates the crime severity and recency.
Metrics Year-on-Year
- Average area value
- 783,500.00 £Decreased by 0.05 %
- Est sale value
- 547,664.78 £Increased by 5.78 %
- Average area rental value
- 2,348.00 £/moIncreased by 2.67 %
- Est letting value
- 880.49 £/moUnchanged by 0.00 %
- Est rental Yield
- 3.60 %Increased by 2.86 %
- Crime Rate
- 33.00 %Unchanged by 0.00 %
Agent Activity
Winkworth marked this listing as sold.
Winkworth created the listing.
Nearby Schools
| Name | Type | Ofsted | Distance |
|---|---|---|---|
| St Dunstan'S Cheam Cofe Primary School | Voluntary Aided School | Good | 0.44 KM |
| Cuddington Croft Primary School | Academy Converter | Good | 0.76 KM |
| Nonsuch High School For Girls | Academy Converter | Good | 0.97 KM |
| Cheam Fields Primary Academy | Academy Converter | Good | 1.00 KM |
| Cheam High School | Academy Converter | Outstanding | 1.09 KM |
Images
Nearby Streets
| Name | Average Price | Average Sqft | Distance |
|---|---|---|---|
| Stafford Close | £ 900,000 | 0 | 0.00 KM |
| Church Farm Road | £ 0 | 0 | 0.00 KM |
| Cheam Park Way | £ 0 | 0 | 0.00 KM |
| Hillside Road | £ 0 | 0 | 0.00 KM |
| Nonsuch Walk | £ 0 | 0 | 0.00 KM |
Nearby Transport
| Name | NLC | TLC | Distance |
|---|---|---|---|
| Cheam | 5352 | CHE | 0.20 KM |
| West Sutton | 5293 | WSU | 1.49 KM |
| Belmont | 5350 | BLM | 2.33 KM |
| Sutton | 5385 | SUO | 2.67 KM |
| Sutton Common | 5436 | SUC | 2.89 KM |
Nearby Listings
| Address | Price | Type | Score | Distance |
|---|---|---|---|---|
| Cheam Mansions, Station Way, Cheam, Sutton, SM3 | £ 375,000 | BUY | 6 / 10 | 0.00 KM |
| Station Way, Cheam | £ 230,000 | BUY | Unknown | 0.08 KM |
| Station Way, Cheam Village, Surrey, SM3 | £ 220,000 | BUY | 6 / 10 | 0.09 KM |
| Century House, Station Way, Cheam Village, Surrey, SM3 | £ 450,000 | BUY | 6 / 10 | 0.09 KM |
| Scotsdale Close, Cheam, Sutton, SM3 | £ 450,000 | BUY | 6 / 10 | 0.12 KM |
Nearby Properties
| Address | Price | Distance |
|---|---|---|
| 14 Tabor Gardens | £ 615,000 | 0.07 KM |
| 20 Tabor Gardens | £ 675,000 | 0.07 KM |
| 69 Station Way | £ 500,000 | 0.09 KM |
| 45a Station Way | £ 295,000 | 0.09 KM |
| 59 Station Way | £ 495,000 | 0.09 KM |