Staunton Road, Cantley, Doncaster, DN4
By The Property Hive
£ 155,000
Reviews
3 out of 5 stars
The Property Hive says ..
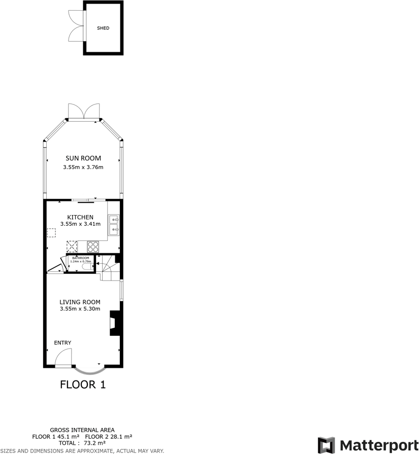
Welcome to this delightful two-bedroom end terrace home, ideally situated on the sought-after Staunton Road in Cantley. Perfectly suited for first-time buyers, small families, or those looking to downsize, this property offers a well-balanced mix of comfort, space, and convenience. Step inside...
Property Oracle says ..
The property is a 2 bedroom, 2 bathroom end of terrace house located on Staunton Road, Cantley, Doncaster. The property benefits from a garden with a shed and greenhouse. The property appears to be well maintained and presented, with a modern kitchen and conservatory. The location is in a residential area with nearby schools and transportation links. The proximity to schools such as St Wilfrid’s Academy (rated ‘Good’ by Ofsted) is a positive aspect for families. The distance to Doncaster and Kirk Sandall train stations provides convenient access to public transportation. While the average house price in the area is significantly higher (333,800) than the listed price of this property (155,000), the lower price may be justified by the smaller size of the property compared to the average. The lack of square footage information for this property and the nearby properties makes a precise price per square foot comparison impossible. However, considering the average price per sqft in the area is 245.00, and the property appears to be in good condition and has a garden, the listed price could be considered reasonable, particularly when compared to similar properties in the area listed for 140,000 and 160,000.
Therefore, we give this property 7 / 10. *Disclaimer: This is our option and does constitute a recommendation or financial advice. Do your own research. *
- Price
- 7
- Condition
- 8
- Location
- 7
- Land
- 7
- Bedrooms
- 2
- Bathrooms
- 2
- Sqft (est)
- 302.47
The heatmap indicates the level of crime in the area. The color of the heatmap indicates the crime severity and recency.
Metrics Year-on-Year
- Average area value
- 301,786.00 £Decreased by 1.95 %
- Est sale value
- 101,024.98 £Increased by 25.56 %
- Average area rental value
- 1,172.00 £/moIncreased by 19.71 %
- Est letting value
- 302.47 £/mo
- Est rental Yield
- 4.66 %Increased by 21.99 %
- Crime Rate
- 9.00 %Unchanged by 0.00 %
Agent Activity
The Property Hive created the listing.
Nearby Schools
| Name | Type | Ofsted | Distance |
|---|---|---|---|
| The Mcauley Catholic High School | Academy Converter | Requires improvement | 0.29 KM |
| Hatchell Wood Primary Academy | Academy Converter | 0.85 KM | |
| St Wilfrid'S Academy, Doncaster | Free Schools Alternative Provision | Good | 1.79 KM |
| Hawthorn Primary School | Academy Converter | 1.85 KM | |
| Branton St Wilfrid'S Church Of England Primary School | Voluntary Aided School | Good | 2.53 KM |
Images
Nearby Streets
| Name | Average Price | Average Sqft | Distance |
|---|---|---|---|
| Cantley Lane | £ 0 | 0 | 0.00 KM |
| The Bramblings | £ 132,000 | 0 | 0.00 KM |
| Birkdale Close | £ 0 | 0 | 0.00 KM |
| Saxon Court | £ 450,000 | 0 | 0.00 KM |
| Hatchell Wood View | £ 465,000 | 0 | 0.00 KM |
Nearby Transport
| Name | NLC | TLC | Distance |
|---|---|---|---|
| Kirk Sandall | 6527 | KKS | 6.58 KM |
| Doncaster | 6417 | DON | 8.84 KM |
Nearby Listings
| Address | Price | Type | Score | Distance |
|---|---|---|---|---|
| Staunton Road, Cantley, Doncaster, DN4 | £ 155,000 | BUY | 7 / 10 | 0.00 KM |
| Stretton Close, Doncaster | £ 150,000 | BUY | 7 / 10 | 0.07 KM |
| Goodison Boulevard, Cantley, Doncaster, South Yorkshire, DN4 | £ 200,000 | BUY | 6 / 10 | 0.07 KM |
| Goodison Boulevard, Cantley, Doncaster, DN4 | £ 295,000 | BUY | 7 / 10 | 0.08 KM |
| Goodison Boulevard, Doncaster | £ 335,000 | BUY | 6 / 10 | 0.08 KM |
Nearby Properties
| Address | Price | Distance |
|---|---|---|
| 371 Goodison Boulevard | £ 220,000 | 0.10 KM |
| 393 Goodison Boulevard | £ 130,000 | 0.10 KM |
| 353 Goodison Boulevard | £ 85,000 | 0.10 KM |
| 375 Goodison Boulevard | £ 225,500 | 0.10 KM |
| 379b Goodison Boulevard | £ 172,500 | 0.10 KM |