Dunster Close, Berkeley Beverborne, Worcester, WR4
By Shelton & Lines
£ 375,000
Reviews
3 out of 5 stars
Shelton & Lines says ..
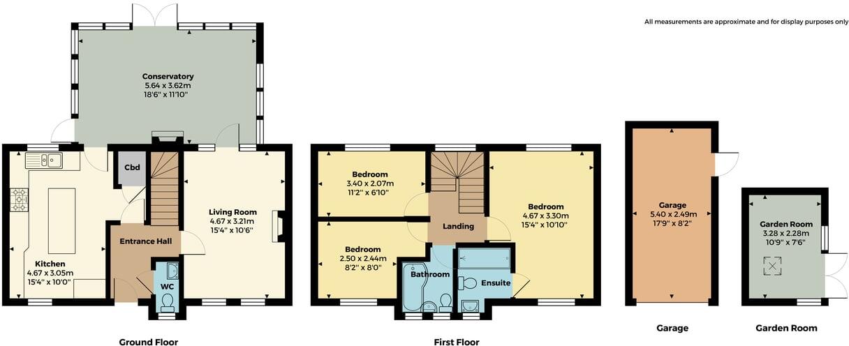
An immaculately presented double-fronted house set within a cul de sac location in the Berkeleys, Warndon Villages.The home is offered for sale with no onward chain & comprises; reception hallway with stairs rising to the first floor landing & access into the W.C, living room &a...
Property Oracle says ..
Location: The property is located in Dunster Close, Berkeley Beverborne, Worcester. This area benefits from being close to several primary schools, including St Joseph’s Catholic Primary School and Oasis Academy Warndon, both rated ‘Good’ by Ofsted. The proximity to Worcester Shrub Hill train station (3.99km) provides convenient access to public transport. While specific shop and amenity details are not provided, the presence of nearby streets suggests a developed residential area with likely access to local services.
Condition: Based on the provided images, the property appears to be in generally good condition. The interior shows a modern kitchen and updated bathrooms. While some rooms feature dated wallpaper and carpets, these are cosmetic issues and do not suggest significant structural problems. The exterior is well-maintained, and the property benefits from a conservatory and garden.
Land: The property includes a garden with a patio, decking area, shed, and gazebo. While the precise plot size is not specified (0.00 sqft), the images clearly show a sizable outdoor space, suggesting a relatively generous garden for a property of this type in the UK.
Price: The list price is £375,000. The average price for properties in the area is £279,719, and the average price per sqft is £303. The property’s size of 1069.07 sqft, at the list price, equates to approximately £350 per sqft. Considering the property’s modern kitchen and bathrooms, the presence of a conservatory and garden, and its location near schools and transport links, the list price appears to be at the higher end of the market value, but not unreasonable given these factors. The lack of sqft data for nearby properties makes a precise comparison difficult, but some nearby properties are significantly more expensive, suggesting this property may be competitively priced within its immediate vicinity. Further analysis of comparable properties with similar features and sizes would provide a more definitive assessment.
Therefore, we give this property 7 / 10. *Disclaimer: This is our option and does constitute a recommendation or financial advice. Do your own research. *
- Price
- 7
- Condition
- 8
- Location
- 7
- Land
- 7
- Bedrooms
- 3
- Bathrooms
- 2
- Sqft (est)
- 1,069.07
The heatmap indicates the level of crime in the area. The color of the heatmap indicates the crime severity and recency.
Metrics Year-on-Year
- Average area value
- 425,000.00 £Increased by 32.78 %
- Est sale value
- 346,378.68 £Increased by 4.52 %
- Average area rental value
- 985.00 £/moDecreased by 2.48 %
- Est letting value
- 0.00 £/mo
- Est rental Yield
- 2.78 %Decreased by 26.65 %
- Crime Rate
- 10.00 %Unchanged by 0.00 %
Agent Activity
Shelton & Lines created the listing.
Nearby Schools
| Name | Type | Ofsted | Distance |
|---|---|---|---|
| St Joseph'S Catholic Primary School | Voluntary Aided School | Good | 0.59 KM |
| Lavender Children'S Centre | Children's Centre | 0.88 KM | |
| Oasis Academy Warndon | Academy Sponsor Led | Good | 0.90 KM |
| The Lyppard Grange Primary School | Academy Converter | 1.32 KM | |
| Cranham Primary School | Academy Converter | Good | 1.60 KM |
Images
Nearby Streets
| Name | Average Price | Average Sqft | Distance |
|---|---|---|---|
| Brindley Road | £ 0 | 0 | 0.00 KM |
| Woodgreen Drive | £ 0 | 0 | 0.00 KM |
| Broadfield Garden | £ 0 | 0 | 0.00 KM |
| Tolladine Road | £ 260,000 | 0 | 0.00 KM |
| Lord's Heath | £ 0 | 0 | 0.00 KM |
Nearby Transport
| Name | NLC | TLC | Distance |
|---|---|---|---|
| Worcester Shrub Hill | 4891 | WOS | 3.99 KM |
| Worcester Foregate Street | 4893 | WOF | 5.19 KM |
| Worcestershire Parkway | 6580 | WOP | 6.55 KM |
| Droitwich Spa | 4878 | DTW | 6.60 KM |
Nearby Listings
| Address | Price | Type | Score | Distance |
|---|---|---|---|---|
| Dunster Close, Berkeley Beverborne, Worcester, WR4 | £ 375,000 | BUY | 7 / 10 | 0.00 KM |
| Amroth Gardens, Worcester | £ 240,000 | BUY | 7 / 10 | 0.11 KM |
| Chepstow Avenue, Berkeley Beverborne, Worcester, Worcestershire, WR4 | £ 280,000 | BUY | 7 / 10 | 0.15 KM |
| Blair Close, Berkeley Beverborne, Worcester, Worcestershire, WR4 | £ 525,000 | BUY | 7 / 10 | 0.16 KM |
| Chepstow Avenue, Berkeley Beverborne, Worcester | £ 265,000 | BUY | 7 / 10 | 0.17 KM |
Nearby Properties
| Address | Price | Distance |
|---|---|---|
| 14 Dunster Close | £ 238,500 | 0.05 KM |
| 2 Dunster Close | £ 280,000 | 0.05 KM |
| 12 Dunster Close | £ 187,000 | 0.05 KM |
| 1 Dunster Close | £ 331,000 | 0.05 KM |
| 6 Dunster Close | £ 205,000 | 0.05 KM |