HO
Mountfield Road, Huddersfield, HD5
By Home & Manor
£ 190,000
Reviews
3 out of 5 stars
Home & Manor says ..
This property presents an excellent renovation opportunity for buyers seeking to add value and personalise their next home.
Property Oracle says ..
Therefore, we give this property 6 / 10. *Disclaimer: This is our option and does constitute a recommendation or financial advice. Do your own research. *
- Price
- 8
- Condition
- 5
- Location
- 7
- Land
- 7
- Bedrooms
- 3
- Bathrooms
- 1
The heatmap indicates the level of crime in the area. The color of the heatmap indicates the crime severity and recency.
Metrics Year-on-Year
- Average area value
- 267,583.00 £Decreased by 12.45 %
- Average area rental value
- 1,292.00 £/moIncreased by 62.31 %
- Est rental Yield
- 5.79 %Increased by 84.98 %
- Crime Rate
- 7.00 %Unchanged by 0.00 %
from 305,642.00 £
from 796.00 £/mo
from 3.13 %
from 7.00 %
Agent Activity
Home & Manor created the listing.
Nearby Schools
| Name | Type | Ofsted | Distance |
|---|---|---|---|
| Southgate School | Community Special School | Good | 0.87 KM |
| Hill View Academy | Academy Sponsor Led | 0.89 KM | |
| Almondbury Children'S Centre | Children's Centre Linked Site | 1.24 KM | |
| Dalton School | Community School | Good | 1.29 KM |
| St Joseph'S Catholic Primary Academy | Academy Converter | 1.53 KM |
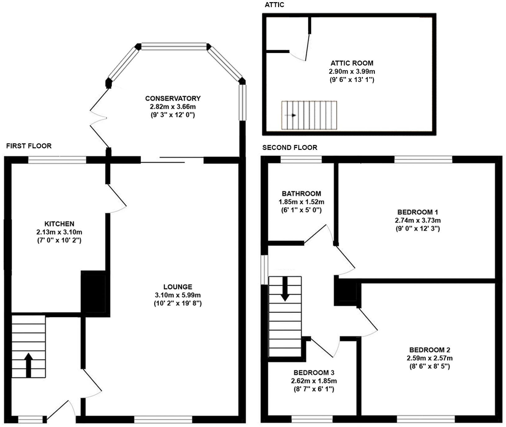
Images
Nearby Streets
| Name | Average Price | Average Sqft | Distance |
|---|---|---|---|
| Quarry Hill | £ 0 | 0 | 0.00 KM |
| Fleming Court | £ 0 | 0 | 0.00 KM |
| Albany Road | £ 165,000 | 0 | 0.00 KM |
| The Courtyard | £ 292,500 | 0 | 0.00 KM |
| Cold Royd Lane | £ 0 | 0 | 0.00 KM |
Nearby Transport
| Name | NLC | TLC | Distance |
|---|---|---|---|
| Deighton | 8441 | DHN | 3.51 KM |
| Stocksmoor | 8451 | SSM | 5.44 KM |
| Huddersfield | 8437 | HUD | 5.49 KM |
| Mirfield | 8518 | MIR | 5.81 KM |
| Brockholes | 8429 | BHS | 6.22 KM |
Nearby Listings
| Address | Price | Type | Score | Distance |
|---|---|---|---|---|
| Mountfield Road, Huddersfield, HD5 | £ 190,000 | BUY | 6 / 10 | 0.00 KM |
| Mountfield Road, Waterloo, Huddersfield, West Yorkshire, HD5 | £ 225,000 | BUY | 7 / 10 | 0.03 KM |
| Mountfield Road, Waterloo, Huddersfield, HD5 8RA | £ 200,000 | BUY | 7 / 10 | 0.07 KM |
| Mountfield Road, Huddersfield, HD5 | £ 210,000 | BUY | 6 / 10 | 0.08 KM |
| Mountfield Road, Huddersfield, HD5 | £ 275,000 | BUY | 7 / 10 | 0.16 KM |
Nearby Properties
| Address | Price | Distance |
|---|---|---|
| 24 Mountfield Road | £ 130,000 | 0.03 KM |
| 36 Mountfield Road | £ 123,950 | 0.03 KM |
| 56 Mountfield Road | £ 170,000 | 0.03 KM |
| 38 Mountfield Road | £ 189,000 | 0.03 KM |
| 48 Mountfield Road | £ 142,000 | 0.03 KM |