KH
Epsom Close, West Malling
By KHP Country Homes
£ 585,000
Reviews
3 out of 5 stars
KHP Country Homes says ..
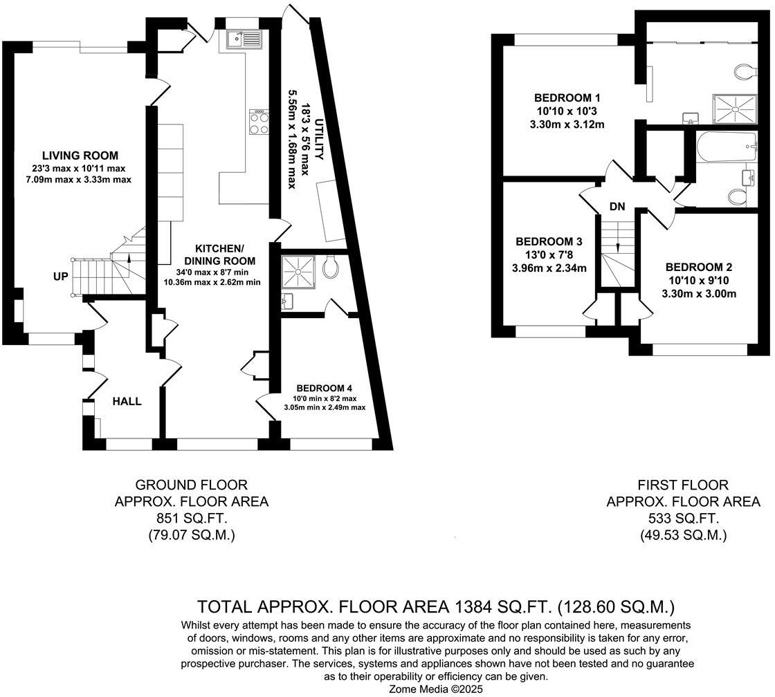
Nestled in the charming central area of West Malling, this delightful detached house offers a perfect blend of comfort and modern living. With its spacious layout, the property boasts two inviting reception rooms, ideal for both relaxation and entertaining guests. The open plan kitchen diner is a...
Property Oracle says ..
Therefore, we give this property 7 / 10. *Disclaimer: This is our option and does constitute a recommendation or financial advice. Do your own research. *
- Price
- 6
- Condition
- 8
- Location
- 8
- Land
- 7
- Bedrooms
- 4
- Bathrooms
- 3
- Sqft (est)
- 1,045.62
The heatmap indicates the level of crime in the area. The color of the heatmap indicates the crime severity and recency.
Metrics Year-on-Year
- Average area value
- 438,857.00 £Decreased by 17.59 %
- Est sale value
- 520,718.76 £Decreased by 6.92 %
- Average area rental value
- 1,383.00 £/moDecreased by 5.08 %
- Est letting value
- 1,045.62 £/moUnchanged by 0.00 %
- Est rental Yield
- 3.78 %Increased by 15.24 %
- Crime Rate
- 63.00 %Unchanged by 0.00 %
from 532,499.00 £
from 559,406.70 £
from 1,457.00 £/mo
from 1,045.62 £/mo
from 3.28 %
from 63.00 %
Agent Activity
KHP Country Homes created the listing.
Nearby Schools
| Name | Type | Ofsted | Distance |
|---|---|---|---|
| West Malling Church Of England Primary School And Mcginty Speech And Language Centre | Academy Converter | Good | 0.68 KM |
| The Rosewood School | Pupil Referral Unit | Requires improvement | 1.36 KM |
| Valley Invicta Primary School At Leybourne Chase | Academy Sponsor Led | Good | 1.39 KM |
| More Park Catholic Primary School | Academy Converter | Good | 1.89 KM |
| Ryarsh Primary School | Community School | Outstanding | 2.19 KM |
Images
Nearby Streets
| Name | Average Price | Average Sqft | Distance |
|---|---|---|---|
| Water Lane | £ 556,400 | 0 | 0.00 KM |
| Cascade Close | £ 0 | 0 | 0.00 KM |
| Ernest Road | £ 0 | 0 | 0.00 KM |
| Jubilee Way | £ 0 | 0 | 0.00 KM |
| Ashton Way | £ 1,065,000 | 0 | 0.00 KM |
Nearby Transport
| Name | NLC | TLC | Distance |
|---|---|---|---|
| West Malling | 5129 | WMA | 1.96 KM |
| East Malling | 5134 | EML | 4.33 KM |
| Wateringbury | 5241 | WTR | 5.54 KM |
| New Hythe | 5238 | NHE | 6.28 KM |
| Snodland | 5189 | SDA | 6.53 KM |
Nearby Listings
| Address | Price | Type | Score | Distance |
|---|---|---|---|---|
| Epsom Close, West Malling | £ 585,000 | BUY | 7 / 10 | 0.00 KM |
| Epsom Close, West Malling | £ 475,000 | BUY | 6 / 10 | 0.03 KM |
| Epsom Close, West Malling | £ 600,000 | BUY | 7 / 10 | 0.04 KM |
| Epsom Close, West Malling, Kent | £ 475,000 | BUY | Unknown | 0.07 KM |
| Norman Road, West Malling | £ 550,000 | BUY | 7 / 10 | 0.11 KM |
Nearby Properties
| Address | Price | Distance |
|---|---|---|
| 26 Epsom Close | £ 320,000 | 0.03 KM |
| 4 Epsom Close | £ 400,000 | 0.03 KM |
| 35 Epsom Close | £ 300,000 | 0.03 KM |
| 39 Epsom Close | £ 360,000 | 0.03 KM |
| 12 Epsom Close | £ 418,000 | 0.03 KM |