Blackbear says ..
The PropertyBlackbear x Chandler Rogers are delighted to showcase this immaculately presented elevated mid terrace house is perfectly located to reach the town centre, amenities and popular beaches.
Property Oracle says ..
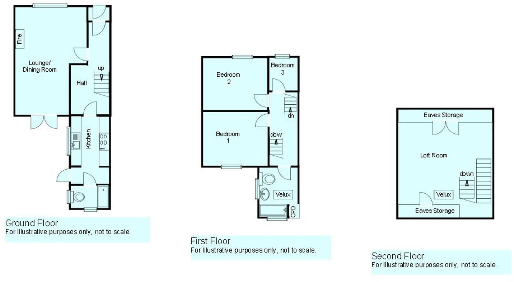
This terraced property on Park Place in Tenby offers a blend of modern and traditional features. The interior is well-presented, with a modern kitchen and bathrooms. The property benefits from a garden with a patio area, providing outdoor space. Its location in Tenby, close to the town center and beach, makes it a desirable residence. While the price is slightly above the average price per square foot for the area, the property’s condition and location justify the asking price.
Therefore, we give this property 7 / 10. *Disclaimer: This is our option and does constitute a recommendation or financial advice. Do your own research. *
- Price
- 6
- Condition
- 8
- Location
- 7
- Land
- 7
- Bedrooms
- 0
- Bathrooms
- 0
- Sqft (est)
- 740.00
The heatmap indicates the level of crime in the area. The color of the heatmap indicates the crime severity and recency.
Metrics Year-on-Year
- Average area value
- 158,000.00 £Decreased by 55.99 %
- Est sale value
- 170,200.00 £Decreased by 40.72 %
- Average area rental value
- 650.00 £/moDecreased by 36.59 %
- Est letting value
- 0.00 £/moDecreased by 100.00 %
- Est rental Yield
- 4.94 %Increased by 44.02 %
- Crime Rate
- 37.00 %Unchanged by 0.00 %
Agent Activity
Blackbear created the listing.
Nearby Schools
| Name | Type | Ofsted | Distance |
|---|---|---|---|
| St Teilos V.R.C. School | Welsh Establishment | 0.36 KM | |
| The Greenhill School | Welsh Establishment | 0.84 KM | |
| Saundersfoot C.P. School | Welsh Establishment | 4.74 KM | |
| Stepaside C.P. School | Welsh Establishment | 6.83 KM | |
| St Florence V.C. School | Welsh Establishment | 7.89 KM |
Images
Nearby Streets
| Name | Average Price | Average Sqft | Distance |
|---|---|---|---|
| Penally Road | £ 0 | 0 | 0.00 KM |
| Weston Terrace | £ 0 | 0 | 0.00 KM |
| Wallsfield Lane | £ 0 | 0 | 0.00 KM |
| North Beach Mews | £ 0 | 0 | 0.00 KM |
| Rectory Court | £ 287,500 | 0 | 0.00 KM |
Nearby Transport
| Name | NLC | TLC | Distance |
|---|---|---|---|
| Tenby | 4110 | TEN | 0.21 KM |
| Penally | 4129 | PNA | 2.25 KM |
| Saundersfoot | 4108 | SDF | 5.77 KM |
| Kilgetty | 4083 | KGT | 6.83 KM |
| Manorbier | 4094 | MRB | 9.58 KM |
Nearby Listings
| Address | Price | Type | Score | Distance |
|---|---|---|---|---|
| Park Place, Tenby, SA70 | £ 399,950 | BUY | 7 / 10 | 0.00 KM |
| 13 Park Place, Tenby | £ 350,000 | BUY | Unknown | 0.02 KM |
| Park Place, Tenby, SA70 | £ 350,000 | BUY | 7 / 10 | 0.03 KM |
| Park Place, Tenby, Pembrokeshire, SA70 7NB | £ 445,000 | BUY | Unknown | 0.03 KM |
| 9 Park Terrace, Tenby | £ 425,000 | BUY | Unknown | 0.04 KM |
Nearby Properties
| Address | Price | Distance |
|---|---|---|
| 14 Park Place | £ 280,000 | 0.03 KM |
| 3 Park Place | £ 325,000 | 0.03 KM |
| 7 Park Place | £ 239,950 | 0.03 KM |
| 13 Park Place | £ 320,000 | 0.03 KM |
| Newlyn | £ 231,000 | 0.03 KM |