Building plot adjacent to , 41 Pool Road, Bristol, South Gloucestershire BS15 1XN
By City & Rural Property Auction
£ 125,000
Reviews
3 out of 5 stars
City & Rural Property Auction says ..
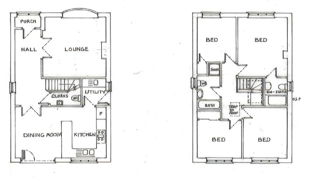
SOLD BY AUCTION - CORNER PLOTS UREGENTLY REQUIRED! A level building plot with planning permission for a 4 bedroom detached house of 127 sqm. For sale via Traditional Auction 16th May 2023
Property Oracle says ..
This property is a building plot located in New Cheltenham, Bristol, listed for sale at £125,000. The listing includes planning permission for a four-bedroom detached house. The plot’s size is significant enough for the proposed development, although aerial and ground photos indicate the presence of significant overgrowth and debris that will require clearing before construction can begin. The location is advantageous, with several schools and railway stations located within a reasonable distance. Nearby properties command substantially higher prices, suggesting strong demand in the area. While the plot itself needs preparation, the asking price appears reasonable given the potential to build a four-bedroom property in a desirable Bristol location. Buyers should factor in additional costs for clearing and preparing the land and building costs in their evaluation of overall value.
Therefore, we give this property 6 / 10. *Disclaimer: This is our option and does constitute a recommendation or financial advice. Do your own research. *
- Price
- 7
- Condition
- 4
- Location
- 7
- Land
- 6
- Bedrooms
- 4
- Bathrooms
- 2
The heatmap indicates the level of crime in the area. The color of the heatmap indicates the crime severity and recency.
Metrics Year-on-Year
- Average area value
- 314,500.00 £Decreased by 0.87 %
- Average area rental value
- 1,250.00 £/moDecreased by 2.95 %
- Est rental Yield
- 4.77 %Decreased by 2.05 %
- Crime Rate
- 3.00 %Unchanged by 0.00 %
Agent Activity
City & Rural Property Auction marked this listing as sold.
City & Rural Property Auction created the listing.
Nearby Schools
| Name | Type | Ofsted | Distance |
|---|---|---|---|
| The Tynings School | Community School | Requires improvement | 0.47 KM |
| St Stephen'S Infant School | Community School | Good | 0.65 KM |
| St Stephen'S Church Of England Junior School, Soundwell | Voluntary Controlled School | Outstanding | 0.69 KM |
| New Horizons Learning Centre | Community Special School | Good | 0.98 KM |
| Kings' Forest Primary School | Community School | Good | 1.06 KM |
Images
Nearby Streets
| Name | Average Price | Average Sqft | Distance |
|---|---|---|---|
| Pool Road | £ 385,544 | 0 | 0.00 KM |
| Deerhurst | £ 372,500 | 0 | 0.00 KM |
| Church Road | £ 432,500 | 0 | 0.00 KM |
| Larch Road | £ 365,000 | 0 | 0.00 KM |
| St Stephens Close | £ 0 | 0 | 0.00 KM |
Nearby Transport
| Name | NLC | TLC | Distance |
|---|---|---|---|
| Keynsham | 3237 | KYN | 6.23 KM |
| Bristol Parkway | 3230 | BPW | 6.42 KM |
| Lawrence Hill | 3225 | LWH | 7.31 KM |
| Stapleton Road | 3250 | SRD | 7.33 KM |
| Filton Abbey Wood | 3235 | FIT | 7.70 KM |
Nearby Listings
| Address | Price | Type | Score | Distance |
|---|---|---|---|---|
| Building plot adjacent to , 41 Pool Road, Bristol, South Gloucestershire BS15 1XN | £ 125,000 | BUY | 6 / 10 | 0.00 KM |
| Deerhurst, Bristol | £ 375,000 | BUY | 6 / 10 | 0.10 KM |
| Pool Road, Kingswood, Bristol | £ 399,950 | BUY | 7 / 10 | 0.12 KM |
| Pool Road, Kingswood, Bristol | £ 399,950 | BUY | 6 / 10 | 0.12 KM |
| Pool Road, Kingswood, Bristol, BS15 | £ 375,000 | BUY | 7 / 10 | 0.12 KM |
Nearby Properties
| Address | Price | Distance |
|---|---|---|
| 53 Pool Road | £ 200,000 | 0.05 KM |
| 28 Pool Road | £ 185,000 | 0.05 KM |
| 42 Pool Road | £ 265,000 | 0.05 KM |
| 49 Pool Road | £ 174,000 | 0.05 KM |
| 36 Pool Road | £ 170,000 | 0.05 KM |