Chester Road, Wimbledon Common, SW19
By Robert Holmes & Co
£ 1,300,000
Reviews
3 out of 5 stars
Robert Holmes & Co says ..
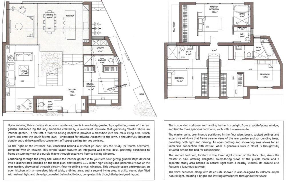
A semi-detached house in a quiet location moments from Cannizaro Park and the Common with planning permission for significant extensions and alteration (Ref 24/P1959) to increase the size of the house to 185.1 sq m(1,992 sq ft) including the garden room (images are computer generated)
Property Oracle says ..
Therefore, we give this property 7 / 10. *Disclaimer: This is our option and does constitute a recommendation or financial advice. Do your own research. *
- Price
- 6
- Condition
- 9
- Location
- 8
- Land
- 7
- Bedrooms
- 2
- Bathrooms
- 1
- Sqft (est)
- 888.00
- Lot (est)
- 1,742.71
The heatmap indicates the level of crime in the area. The color of the heatmap indicates the crime severity and recency.
Metrics Year-on-Year
- Average area value
- 516,545.00 £Decreased by 47.34 %
- Est sale value
- 513,264.00 £Decreased by 13.99 %
- Average area rental value
- 3,946.00 £/moDecreased by 6.85 %
- Est letting value
- 3,552.00 £/moIncreased by 100.00 %
- Est rental Yield
- 9.17 %Increased by 77.03 %
- Crime Rate
- 2.00 %Unchanged by 0.00 %
from 980,853.00 £
from 596,736.00 £
from 4,236.00 £/mo
from 1,776.00 £/mo
from 5.18 %
from 2.00 %
Agent Activity
Robert Holmes & Co created the listing.
Nearby Schools
| Name | Type | Ofsted | Distance |
|---|---|---|---|
| King'S College School | Other Independent School | 0.41 KM | |
| The Study Preparatory School | Other Independent School | 0.46 KM | |
| Wimbledon Common Preparatory School | Other Independent School | 0.78 KM | |
| Norwegian School In London | Other Independent School | Good | 0.81 KM |
| The Norwegian Kindergarten In London | Other Independent School | Good | 0.81 KM |
Images
Nearby Streets
| Name | Average Price | Average Sqft | Distance |
|---|---|---|---|
| Peregrine Way | £ 2,350,000 | 0 | 0.00 KM |
| Prospect Place | £ 2,495,000 | 0 | 0.00 KM |
| Orchard Grove | £ 2,125,000 | 0 | 0.00 KM |
| Orchard Lane | £ 2,200,000 | 0 | 0.00 KM |
| St Annes Mews | £ 2,500,000 | 0 | 0.00 KM |
Nearby Transport
| Name | NLC | TLC | Distance |
|---|---|---|---|
| Raynes Park | 5569 | RAY | 1.49 KM |
| Wimbledon Chase | 5612 | WBO | 2.25 KM |
| Wimbledon | 5578 | WIM | 2.57 KM |
| Motspur Park | 5645 | MOT | 3.24 KM |
| South Merton | 5292 | SMO | 3.47 KM |
Nearby Listings
| Address | Price | Type | Score | Distance |
|---|---|---|---|---|
| Chester Road, Wimbledon Common, SW19 | £ 1,300,000 | BUY | 7 / 10 | 0.00 KM |
| Chester Road, Wimbledon, SW19 | £ 5,500,000 | BUY | Unknown | 0.01 KM |
| Chester Road, Wimbledon Common, SW19 | £ 1,675,000 | BUY | 9 / 10 | 0.03 KM |
| Sycamore Road, Wimbledon | £ 545,000 | BUY | 6 / 10 | 0.06 KM |
| Sycamore Road, Wimbledon Village | £ 410,000 | BUY | 7 / 10 | 0.08 KM |
Nearby Properties
| Address | Price | Distance |
|---|---|---|
| 20 Chester Road | £ 585,000 | 0.01 KM |
| 22 Chester Road | £ 1,320,000 | 0.01 KM |
| 14 Chester Road | £ 780,000 | 0.01 KM |
| 8 Chester Road | £ 1,800,000 | 0.01 KM |
| 18 Chester Road | £ 865,000 | 0.01 KM |