GA
Field Side Close, Mobberley, Knutsford
By Gascoigne Halman
£ 350,000
Reviews
3 out of 5 stars
Gascoigne Halman says ..
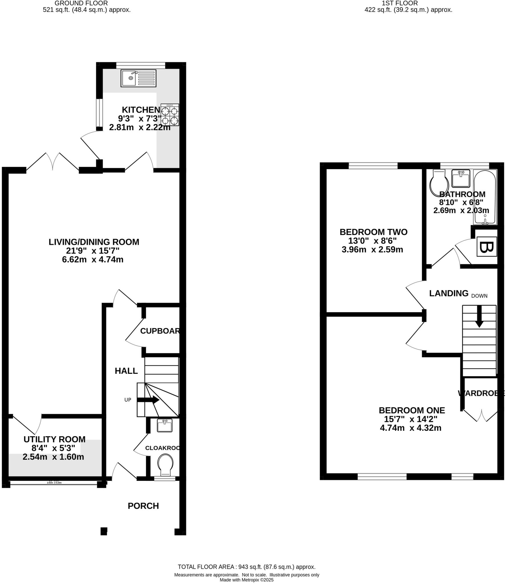
A well-presented two-bedroom mid-mews property, ideally positioned on a quiet cul-de-sac on the edge of the Conservation Area in Mobberley village, enjoying open field views to the front and a private garden to the rear.
Property Oracle says ..
Therefore, we give this property 7 / 10. *Disclaimer: This is our option and does constitute a recommendation or financial advice. Do your own research. *
- Price
- 7
- Condition
- 8
- Location
- 8
- Land
- 7
- Bedrooms
- 2
- Bathrooms
- 1
- Sqft (est)
- 845.02
The heatmap indicates the level of crime in the area. The color of the heatmap indicates the crime severity and recency.
Metrics Year-on-Year
- Average area value
- 607,999.00 £Decreased by 19.74 %
- Est sale value
- 359,978.52 £Decreased by 8.58 %
- Average area rental value
- 1,708.00 £/moDecreased by 59.57 %
- Est letting value
- 845.02 £/moDecreased by 50.00 %
- Est rental Yield
- 3.37 %Decreased by 49.63 %
- Crime Rate
- 71.00 %Unchanged by 0.00 %
from 757,542.00 £
from 393,779.32 £
from 4,225.00 £/mo
from 1,690.04 £/mo
from 6.69 %
from 71.00 %
Agent Activity
Gascoigne Halman created the listing.
Nearby Schools
| Name | Type | Ofsted | Distance |
|---|---|---|---|
| Mobberley Cofe Primary School | Voluntary Controlled School | Outstanding | 1.49 KM |
| Adelaide Heath Academy | Academy Special Sponsor Led | 2.88 KM | |
| Knutsford Children'S Centre | Children's Centre | 3.67 KM | |
| Manor Park Primary School And Nursery | Academy Converter | 3.69 KM | |
| St Vincent'S Catholic Primary School | Voluntary Aided School | Good | 3.78 KM |
Images
Nearby Streets
| Name | Average Price | Average Sqft | Distance |
|---|---|---|---|
| Summerfield Road | £ 0 | 0 | 0.00 KM |
| Beech Avenue | £ 0 | 0 | 0.00 KM |
Nearby Transport
| Name | NLC | TLC | Distance |
|---|---|---|---|
| Mobberley | 2849 | MOB | 1.94 KM |
| Ashley | 2850 | ASY | 5.02 KM |
| Knutsford | 2848 | KNF | 5.09 KM |
| Chelford (Cheshire) | 2764 | CEL | 7.00 KM |
| Hale (Manchester) | 2845 | HAL | 7.65 KM |
Nearby Listings
| Address | Price | Type | Score | Distance |
|---|---|---|---|---|
| Field Side Close, Mobberley, Knutsford | £ 350,000 | BUY | 7 / 10 | 0.00 KM |
| Field Side Close, Mobberley | £ 385,000 | BUY | 7 / 10 | 0.01 KM |
| Town Lane, Mobberley, WA16 | £ 1,295,000 | BUY | Unknown | 0.05 KM |
| Badgers Croft, Mobberley, Knutsford | £ 295,000 | BUY | 7 / 10 | 0.07 KM |
| Appleby Crescent, Knutsford, WA16 | £ 575,000 | BUY | Unknown | 0.10 KM |
Nearby Properties
| Address | Price | Distance |
|---|---|---|
| 22 Field Side Close | £ 205,000 | 0.01 KM |
| 16 Field Side Close | £ 315,000 | 0.01 KM |
| 2 Field Side Close | £ 355,000 | 0.01 KM |
| 6 Field Side Close | £ 238,500 | 0.01 KM |
| 4 Field Side Close | £ 310,000 | 0.01 KM |