Sutton Wood, Shifnal, Shropshire
By Nock Deighton, Land and New Homes
£ 325,000
Reviews
3 out of 5 stars
Nock Deighton, Land and New Homes says ..
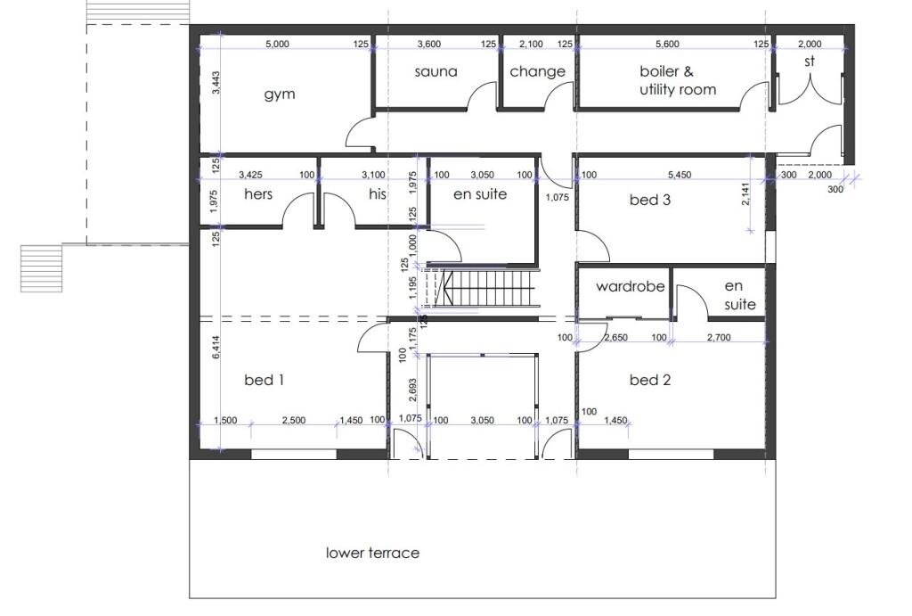
A genuinely unique building plot in a superb location with extensive grounds and views benefitting from full planning for the erection of an eco-home. With the build location at the top of the hill within the plot, the finished home, terraces and balcony with take in elevated views towards Coalpo...
Property Oracle says ..
This is a plot of land with planning permission for a modern dwelling in a desirable semi-rural location in Shropshire. The generous plot size offers significant potential for creating a bespoke home with ample outdoor space. The location provides a balance between countryside living and accessibility to nearby towns and transport links. The asking price appears reasonable considering the land size and potential.
Therefore, we give this property 7 / 10. *Disclaimer: This is our option and does constitute a recommendation or financial advice. Do your own research. *
- Price
- 7
- Condition
- 8
- Location
- 7
- Land
- 9
- Bedrooms
- 0
- Bathrooms
- 0
- Sqft (est)
- 322.92
- Lot (est)
- 86,111.29
The heatmap indicates the level of crime in the area. The color of the heatmap indicates the crime severity and recency.
Metrics Year-on-Year
- Average area value
- 243,278.00 £Decreased by 3.15 %
- Est sale value
- 101,073.96 £Increased by 28.81 %
- Average area rental value
- 1,186.00 £/moIncreased by 12.42 %
- Est letting value
- 322.92 £/moUnchanged by 0.00 %
- Est rental Yield
- 5.85 %Increased by 16.07 %
- Crime Rate
- 0.00 %
Agent Activity
Nock Deighton, Land and New Homes created the listing.
Nearby Schools
| Name | Type | Ofsted | Distance |
|---|---|---|---|
| Sir Alexander Fleming Primary School | Community School | Good | 1.60 KM |
| Sutton Hill Children Centre - Strengthening Families | Children's Centre | 1.70 KM | |
| John Randall Primary School | Community School | Requires improvement | 2.32 KM |
| Haughton School | Community Special School | Good | 2.35 KM |
| John Fletcher Of Madeley Primary School | Voluntary Controlled School | Good | 2.80 KM |
Images
Nearby Streets
| Name | Average Price | Average Sqft | Distance |
|---|---|---|---|
| Monarch's Way | £ 616,667 | 0 | 0.00 KM |
| Coalport Bridge | £ 295,000 | 0 | 0.00 KM |
| Station Yd | £ 0 | 0 | 0.00 KM |
| Sheridan Way | £ 195,000 | 0 | 0.00 KM |
| Meadow Close | £ 0 | 0 | 0.00 KM |
Nearby Transport
| Name | NLC | TLC | Distance |
|---|---|---|---|
| Telford Central | 4691 | TFC | 7.33 KM |
| Oakengates | 4689 | OKN | 8.82 KM |
| Shifnal | 4619 | SFN | 9.03 KM |
Nearby Listings
| Address | Price | Type | Score | Distance |
|---|---|---|---|---|
| Sutton Wood, Shifnal, Shropshire | £ 325,000 | BUY | 7 / 10 | 0.00 KM |
| Sutton Bank, Coalport, Telford, TF8 7JB | £ 450,000 | BUY | 6 / 10 | 0.48 KM |
| Coalport, Telford | £ 475,000 | BUY | 7 / 10 | 0.66 KM |
| Broseley Road, Coalport | £ 565,000 | BUY | 7 / 10 | 0.92 KM |
| Sandringham House, Henrietta Way | £ 635,000 | BUY | Unknown | 0.94 KM |
Nearby Properties
| Address | Price | Distance |
|---|---|---|
| Coalport House | £ 177,000 | 0.77 KM |
| 16 Stretton Close | £ 168,000 | 1.16 KM |
| 12 Stretton Close | £ 245,000 | 1.16 KM |
| 8 Stretton Close | £ 350,000 | 1.16 KM |
| 19 Stretton Close | £ 182,500 | 1.16 KM |