The Geldings, Bouts Lane, Holberrow Green, Worcestershire, B96 6JX
By FreeAgent247.com HQ
£ 1,300,000
Reviews
3 out of 5 stars
FreeAgent247.com HQ says ..
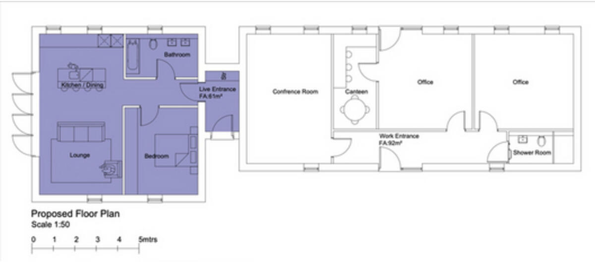
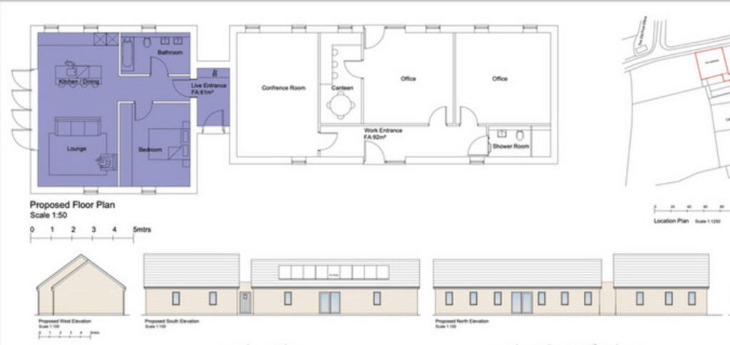
Expansive modern home built in 2023 offering 3622sq.ft accommodation with outbuildings & planning for live/work unit in circa 2 acres
Property Oracle says ..
This detached property on Bouts Lane in Holberrow Green, Worcestershire, presents a unique opportunity for buyers seeking a modern home with substantial land. Marketed by FreeAgent247.com HQ, the property features 1 bedroom and 2 bathrooms. The interior boasts a contemporary design with large windows that offer panoramic views of the surrounding countryside. The property includes a garden, ample parking, and additional land, making it ideal for families or those with equestrian interests. While the list price is higher than the local average, the property’s unique features and extensive land may justify the investment for the right buyer.
Therefore, we give this property 7 / 10. *Disclaimer: This is our option and does constitute a recommendation or financial advice. Do your own research. *
- Price
- 5
- Condition
- 8
- Location
- 7
- Land
- 9
- Bedrooms
- 1
- Bathrooms
- 2
The heatmap indicates the level of crime in the area. The color of the heatmap indicates the crime severity and recency.
Metrics Year-on-Year
- Average area value
- 490,000.00 £Decreased by 5.86 %
- Average area rental value
- 1,975.00 £/moIncreased by 83.72 %
- Est rental Yield
- 4.84 %Increased by 95.16 %
- Crime Rate
- 45.00 %Unchanged by 0.00 %
Agent Activity
FreeAgent247.com HQ created the listing.
Nearby Schools
| Name | Type | Ofsted | Distance |
|---|---|---|---|
| Ridgeway Secondary School | Academy Converter | Requires improvement | 2.95 KM |
| Inkberrow Primary School | Academy Converter | 2.97 KM | |
| Feckenham Cofe Primary School | Academy Converter | 3.52 KM | |
| Astwood Bank Primary School | Academy Converter | 3.87 KM | |
| St Augustine'S Catholic High School | Academy Converter | Outstanding | 4.76 KM |
Images
Nearby Transport
| Name | NLC | TLC | Distance |
|---|---|---|---|
| Redditch | 1208 | RDC | 8.08 KM |
Nearby Listings
| Address | Price | Type | Score | Distance |
|---|---|---|---|---|
| The Geldings, Bouts Lane, Holberrow Green, Worcestershire, B96 6JX | £ 1,300,000 | BUY | 7 / 10 | 0.00 KM |
| Live/Work Building Plot - Bouts Lane, Redditch, B96 6JX | £ 300,000 | BUY | 7 / 10 | 0.05 KM |
| Alcester Road, Inkberrow, Worcester | £ 635,000 | BUY | 6 / 10 | 1.85 KM |
| Edgioake Lane, Astwood Bank, B96 | £ 900,000 | BUY | 7 / 10 | 1.99 KM |
Nearby Properties
| Address | Price | Distance |
|---|---|---|
| The Oaklands | £ 890,000 | 0.08 KM |
| April Cottage | £ 540,000 | 0.74 KM |
| Orchard House | £ 795,000 | 0.74 KM |
| Stable Cottage | £ 200,000 | 0.74 KM |
| Manor Farm | £ 1,130,000 | 0.74 KM |