Gascoigne Halman says ..
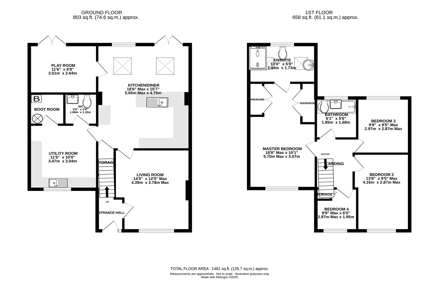
This beautifully maintained four-bedroom, two-bathroom detached family home is perfectly positioned in a cul-de-sac location, which is within convenient reach of Altrincham centre, John Leigh Park, and sought-after schools. The ground floor offers an inviting entrance hallway, two beautifully pre...
Property Oracle says ..
This is a well-presented, modern detached property in a sought-after location in Altrincham. The house benefits from a modern kitchen and bathrooms, a well-maintained garden, and off-street parking. The property is conveniently located near schools and transportation links, making it suitable for families and commuters. The price is reasonable for the area and the condition of the property.
Therefore, we give this property 7 / 10. *Disclaimer: This is our option and does constitute a recommendation or financial advice. Do your own research. *
- Price
- 7
- Condition
- 8
- Location
- 7
- Land
- 7
- Bedrooms
- 4
- Bathrooms
- 2
- Sqft (est)
- 1,496.40
The heatmap indicates the level of crime in the area. The color of the heatmap indicates the crime severity and recency.
Metrics Year-on-Year
- Average area value
- 722,500.00 £Increased by 54.20 %
- Est sale value
- 790,099.20 £Increased by 14.29 %
- Average area rental value
- 1,848.00 £/moIncreased by 23.12 %
- Est letting value
- 1,496.40 £/moUnchanged by 0.00 %
- Est rental Yield
- 3.07 %Decreased by 20.05 %
- Crime Rate
- 0.00 %
Agent Activity
Gascoigne Halman created the listing.
Nearby Schools
| Name | Type | Ofsted | Distance |
|---|---|---|---|
| Loreto Grammar School | Academy Converter | 0.68 KM | |
| Altrincham Cofe (Aided) Primary School | Voluntary Aided School | Requires improvement | 0.71 KM |
| North Cestrian School | Free Schools | Good | 0.72 KM |
| Loreto Preparatory School | Other Independent School | 0.72 KM | |
| Hale Barns Children'S Centre | Children's Centre Linked Site | 1.08 KM |
Images
Nearby Streets
| Name | Average Price | Average Sqft | Distance |
|---|---|---|---|
| Spey Close | £ 399,950 | 0 | 0.00 KM |
| Jubilee Way | £ 0 | 0 | 0.00 KM |
| Pilgrim Drive | £ 0 | 0 | 0.00 KM |
| Holset Close | £ 750,000 | 0 | 0.00 KM |
| Gorsey Lane | £ 0 | 0 | 0.00 KM |
Nearby Transport
| Name | NLC | TLC | Distance |
|---|---|---|---|
| Altrincham | 2806 | ALT | 1.46 KM |
| Navigation Road | 2940 | NVR | 1.65 KM |
| Hale (Manchester) | 2845 | HAL | 2.11 KM |
| Ashley | 2850 | ASY | 4.67 KM |
| Chassen Road | 2947 | CSR | 5.88 KM |
Nearby Listings
| Address | Price | Type | Score | Distance |
|---|---|---|---|---|
| Spey Close, Altrincham | £ 615,000 | BUY | 7 / 10 | 0.00 KM |
| Waveney Drive, Altrincham | £ 625,000 | BUY | Unknown | 0.08 KM |
| Tweed Close, Altrincham | £ 399,950 | BUY | 7 / 10 | 0.08 KM |
| Medway Crescent, Altrincham | £ 575,000 | BUY | 8 / 10 | 0.09 KM |
| Waveney Drive, Altrincham | £ 475,000 | BUY | 7 / 10 | 0.10 KM |
Nearby Properties
| Address | Price | Distance |
|---|---|---|
| 3 Tweed Close | £ 110,000 | 0.04 KM |
| 10 Tweed Close | £ 386,000 | 0.04 KM |
| 4 Tweed Close | £ 392,500 | 0.04 KM |
| 40 Waveney Drive | £ 415,000 | 0.08 KM |
| 18 Waveney Drive | £ 280,000 | 0.08 KM |