Northwood says ..
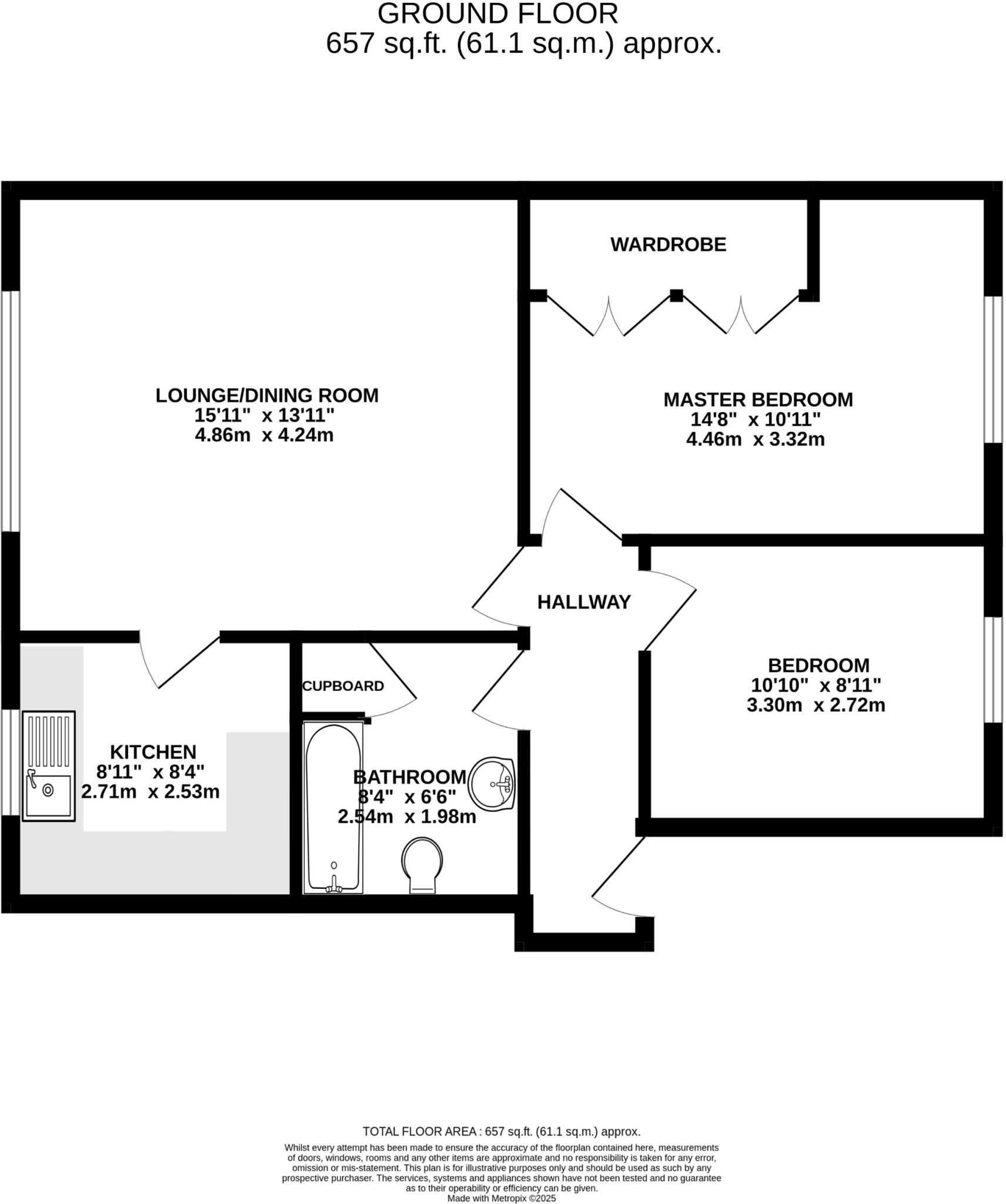
An elegant two-bedroom ground floor flat in sought-after Coombe Dingle, offering spacious living, a garage, and excellent transport links — ideal for professionals, families, or investors. No onward chain.
Property Oracle says ..
This is a well-presented 2-bedroom flat in the desirable BS9 area of Bristol. The property boasts a modern interior, a large garden, and a garage, making it an attractive offering. While the kitchen could use some updating, the overall condition is good. The price appears competitive, falling below the average price per square foot for the locality. Its proximity to schools and transportation further enhances its appeal, making it a potentially sound investment or a comfortable home.
Therefore, we give this property 7 / 10. *Disclaimer: This is our option and does constitute a recommendation or financial advice. Do your own research. *
- Price
- 8
- Condition
- 7
- Location
- 7
- Land
- 8
- Bedrooms
- 2
- Bathrooms
- 1
- Sqft (est)
- 1,041.41
The heatmap indicates the level of crime in the area. The color of the heatmap indicates the crime severity and recency.
Metrics Year-on-Year
- Average area value
- 314,285.00 £Decreased by 23.82 %
- Est sale value
- 358,245.04 £Increased by 13.53 %
- Average area rental value
- 1,470.00 £/moIncreased by 11.20 %
- Est letting value
- 1,041.41 £/mo
- Est rental Yield
- 5.61 %Increased by 45.71 %
- Crime Rate
- 2.00 %Unchanged by 0.00 %
Agent Activity
Northwood created the listing.
Nearby Schools
| Name | Type | Ofsted | Distance |
|---|---|---|---|
| Grace Garden School | Other Independent Special School | 0.75 KM | |
| Stoke Bishop Church Of England Primary School | Academy Converter | Good | 1.21 KM |
| Sea Mills Primary School And Children'S Centre | Children's Centre | 1.39 KM | |
| Sea Mills Primary School | Community School | Good | 1.59 KM |
| North Star 82� | Academy Special Converter | 1.77 KM |
Images
Nearby Streets
| Name | Average Price | Average Sqft | Distance |
|---|---|---|---|
| Briercliffe Road | £ 0 | 0 | 0.00 KM |
| Weston Close | £ 400,000 | 0 | 0.00 KM |
| Ashcroft Road | £ 0 | 0 | 0.00 KM |
| Bell Barn | £ 0 | 0 | 0.00 KM |
| East Parade | £ 395,000 | 0 | 0.00 KM |
Nearby Transport
| Name | NLC | TLC | Distance |
|---|---|---|---|
| Sea Mills | 3254 | SML | 1.94 KM |
| Shirehampton | 3206 | SHH | 4.50 KM |
| Clifton Down | 3202 | CFN | 4.53 KM |
| Redland | 3247 | RDA | 5.34 KM |
| Montpelier | 3203 | MTP | 6.34 KM |
Nearby Listings
| Address | Price | Type | Score | Distance |
|---|---|---|---|---|
| Grove Road, Bristol, BS9 | £ 260,000 | BUY | 7 / 10 | 0.00 KM |
| Pitchcombe Gardens, Bristol, BS9 | £ 1,300,000 | BUY | 7 / 10 | 0.14 KM |
| Long Acres Close, Bristol, BS9 | £ 725,000 | BUY | 6 / 10 | 0.20 KM |
| Long Acres Close, Coombe Dingle, Bristol | £ 725,000 | BUY | 7 / 10 | 0.21 KM |
| Stylish detached home on Grove Road, Coombe Dingle moments from Blaise Estate | £ 875,000 | BUY | 7 / 10 | 0.24 KM |
Nearby Properties
| Address | Price | Distance |
|---|---|---|
| 8 Pitchcombe Gardens | £ 490,000 | 0.12 KM |
| 3 Pitchcombe Gardens | £ 390,000 | 0.12 KM |
| 6 Pitchcombe Gardens | £ 395,250 | 0.12 KM |
| 1a Pitchcombe Gardens | £ 340,000 | 0.12 KM |
| 1b Grove Road | £ 970,000 | 0.14 KM |