DM
Rushcliffe Rise, Nottingham
By DMW Property Services
£ 265,000
Reviews
3 out of 5 stars
DMW Property Services says ..
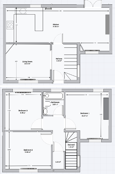
This 3 bedroom family home has recently undergone a complete schedule of renovation. Including a new roof, UPVC windows, boiler and central heating system, complete rewire, new plaster and professional decoration throughout, hard flooring on the ground floor with carpets in the bedrooms, new kitc...
Property Oracle says ..
Therefore, we give this property 7 / 10. *Disclaimer: This is our option and does constitute a recommendation or financial advice. Do your own research. *
- Price
- 8
- Condition
- 9
- Location
- 7
- Land
- 7
- Bedrooms
- 3
- Bathrooms
- 1
- Sqft (est)
- 848.30
The heatmap indicates the level of crime in the area. The color of the heatmap indicates the crime severity and recency.
Metrics Year-on-Year
- Average area value
- 311,591.00 £Decreased by 0.19 %
- Est sale value
- 259,579.80 £Increased by 17.69 %
- Average area rental value
- 1,151.00 £/moIncreased by 9.51 %
- Est letting value
- 848.30 £/mo
- Est rental Yield
- 4.43 %Increased by 9.65 %
- Crime Rate
- 9.00 %Unchanged by 0.00 %
from 312,184.00 £
from 220,558.00 £
from 1,051.00 £/mo
from 0.00 £/mo
from 4.04 %
from 9.00 %
Agent Activity
DMW Property Services created the listing.
Nearby Schools
| Name | Type | Ofsted | Distance |
|---|---|---|---|
| Burford Primary And Nursery School | Academy Converter | Good | 1.12 KM |
| Sherwood And Edwards Lane Children'S Centre | Children's Centre | 1.26 KM | |
| Hospital And Home Education Pru | Pupil Referral Unit | Good | 1.27 KM |
| Seely Primary School | Community School | Good | 1.30 KM |
| Arnbrook Primary School | Academy Sponsor Led | Requires improvement | 1.44 KM |
Images
Nearby Streets
| Name | Average Price | Average Sqft | Distance |
|---|---|---|---|
| The Cedars | £ 0 | 0 | 0.00 KM |
| Dean Road | £ 400,000 | 0 | 0.00 KM |
| Park Avenue | £ 0 | 0 | 0.00 KM |
| Portland Street | £ 0 | 0 | 0.00 KM |
| Weston Close | £ 0 | 0 | 0.00 KM |
Nearby Transport
| Name | NLC | TLC | Distance |
|---|---|---|---|
| Nottingham | 1826 | NOT | 4.91 KM |
| Bulwell | 1865 | BLW | 6.22 KM |
| Carlton | 6201 | CTO | 7.43 KM |
| Netherfield | 6241 | NET | 7.48 KM |
| Hucknall | 1862 | HKN | 8.07 KM |
Nearby Listings
| Address | Price | Type | Score | Distance |
|---|---|---|---|---|
| Rushcliffe Rise, Nottingham | £ 265,000 | BUY | 7 / 10 | 0.00 KM |
| Rushcliffe Rise, Nottingham, Nottinghamshire, NG5 | £ 100,000 | BUY | 7 / 10 | 0.04 KM |
| Rushcliffe Rise, Nottingham, Nottinghamshire, NG5 | £ 125,000 | BUY | 7 / 10 | 0.04 KM |
| Joyce Avenue, Nottingham, NG5 | £ 255,000 | BUY | 7 / 10 | 0.08 KM |
| Rushcliffe Rise, Sherwood, Nottinghamshire, NG5 3HJ | £ 220,000 | BUY | 7 / 10 | 0.12 KM |
Nearby Properties
| Address | Price | Distance |
|---|---|---|
| 18 Rushcliffe Rise | £ 125,000 | 0.07 KM |
| 17 Rushcliffe Rise | £ 115,000 | 0.07 KM |
| 25 Rushcliffe Rise | £ 113,000 | 0.07 KM |
| 13 Rushcliffe Rise | £ 112,000 | 0.07 KM |
| 3 Rushcliffe Rise | £ 130,000 | 0.07 KM |