Station Road, North Wingfield
MA

Station Road, North Wingfield

By Martin & Co

£ 179,950

Reviews

2 out of 5 stars

Martin & Co says ..

In need of some REFURBISHMENT this deceptively large house on a corner plot is a great opportunity to create a lovely, quirky family home. DRIVE, GARAGE and TWO STOREY WORKSHOP. Two reception rooms.

Property Oracle says ..

This three-bedroom end-of-terrace house in North Wingfield, Derbyshire, presents a mixed bag of pros and cons. The property’s location is a definite plus, being situated near a train station and primary schools. However, the condition of the property requires considerable work. The interior images show a need for a comprehensive renovation, including updating the kitchen and bathroom, replacing flooring and fixtures, and addressing some minor wall damage. While the property comes with a small garden and the added benefit of a drive, garage, and two-story workshop, these areas also seem to be in need of repair and are not exceptionally large. The list price seems fair considering the need for refurbishment, the location, and the presence of the outbuildings. Potential buyers should factor in the costs of renovation. This property would likely appeal to those comfortable with a renovation project and who appreciate the area’s location and nearby amenities. The lack of specific details on some aspects, such as the school ratings and train service, makes a full assessment harder; it’s crucial for potential buyers to conduct their due diligence before making an offer.

Therefore, we give this property 4 / 10. *Disclaimer: This is our option and does constitute a recommendation or financial advice. Do your own research. *

Price
7
Condition
4
Location
6
Land
2
Bedrooms
3
Bathrooms
1
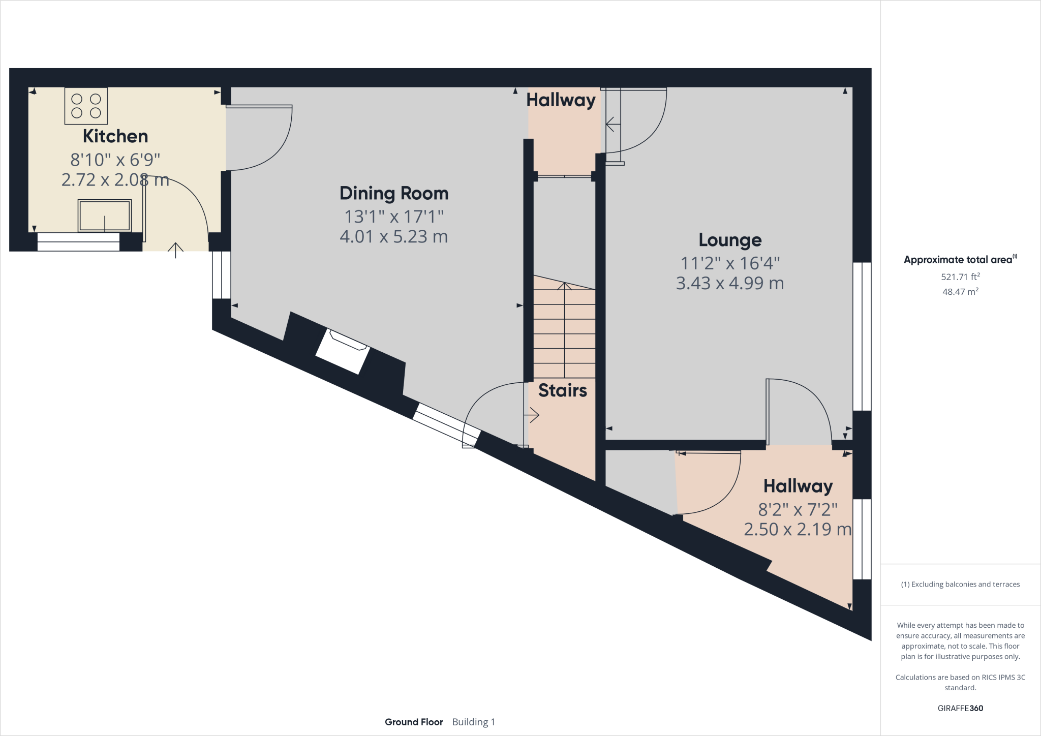
Sqft (est)
521.73

The heatmap indicates the level of crime in the area. The color of the heatmap indicates the crime severity and recency.

Metrics Year-on-Year

Average area value
284,983.00 £
Increased by 36.66 %
from 208,534.00 £
Est sale value
205,039.89 £
Increased by 51.74 %
from 135,128.07 £
Average area rental value
863.00 £/mo
Increased by 3.23 %
from 836.00 £/mo
Est letting value
521.73 £/mo
Unchanged by 0.00 %
from 521.73 £/mo
Est rental Yield
3.63 %
Decreased by 24.53 %
from 4.81 %
Crime Rate
5.00 %
Unchanged by 0.00 %
from 5.00 %

Agent Activity

  • Martin & Co created the listing.

Nearby Schools

NameTypeOfstedDistance
North Wingfield Primary And Nursery AcademyAcademy Converter1.13 KM
Tupton Hall SchoolAcademy Sponsor Led1.34 KM
Alice'S View Children'S CentreChildren's Centre1.38 KM
Tupton Primary And Nursery AcademyAcademy Sponsor Led1.74 KM
Grassmoor Primary SchoolCommunity SchoolGood1.81 KM

Images

CAM04273G0-PR0038... CAM04273G0-PR0038... CAM04273G0-PR0038... CAM04273G0-PR0038... CAM04273G0-PR0038... CAM04273G0-PR0038... CAM04273G0-PR0038... CAM04273G0-PR0038... CAM04273G0-PR0038... CAM04273G0-PR0038... CAM04273G0-PR0038... CAM04273G0-PR0038... CAM04273G0-PR0038... CAM04273G0-PR0038... CAM04273G0-PR0038... CAM04273G0-PR0038... CAM04273G0-PR0038... CAM04273G0-PR0040... CAM04273G0-PR0040... CAM04273G0-PR0038...

Nearby Streets

NameAverage PriceAverage SqftDistance
John Street £ 220,00000.00 KM
Manor Croft £ 000.00 KM
Devonshire Mews £ 000.00 KM
Foundry Drive £ 000.00 KM
Howard Drive £ 250,00000.00 KM

Nearby Transport

NameNLCTLCDistance
Chesterfield6615CHD6.87 KM
Alfreton1805ALF9.45 KM

Nearby Listings

AddressPriceTypeScoreDistance
Station Road, North Wingfield £ 145,000BUY5 / 100.00 KM
Station Road, North Wingfield £ 179,950BUY4 / 100.00 KM
Station Road, North Wingfield £ 179,950BUYUnknown0.00 KM
George Street, North Wingfield, Chesterfield, Derbyshire S42 £ 175,950BUYUnknown0.05 KM
George Street, Chesterfield, S42 £ 185,000BUY6 / 100.07 KM

Nearby Properties

AddressPriceDistance
129 Station Road £ 174,0000.00 KM
127 Station Road £ 42,0000.00 KM
143 Station Road £ 121,0000.00 KM
125 Station Road £ 123,0000.00 KM
149 Station Road £ 179,2500.02 KM